
To see more images,
try asking the advertiser
try asking the advertiser
Shed hamlet Bargellino, Calderara di Reno
€ 470.000 BARGELLINO: CAPANNONE CON UFFICI ED AREA CORTILIVA Bargelli
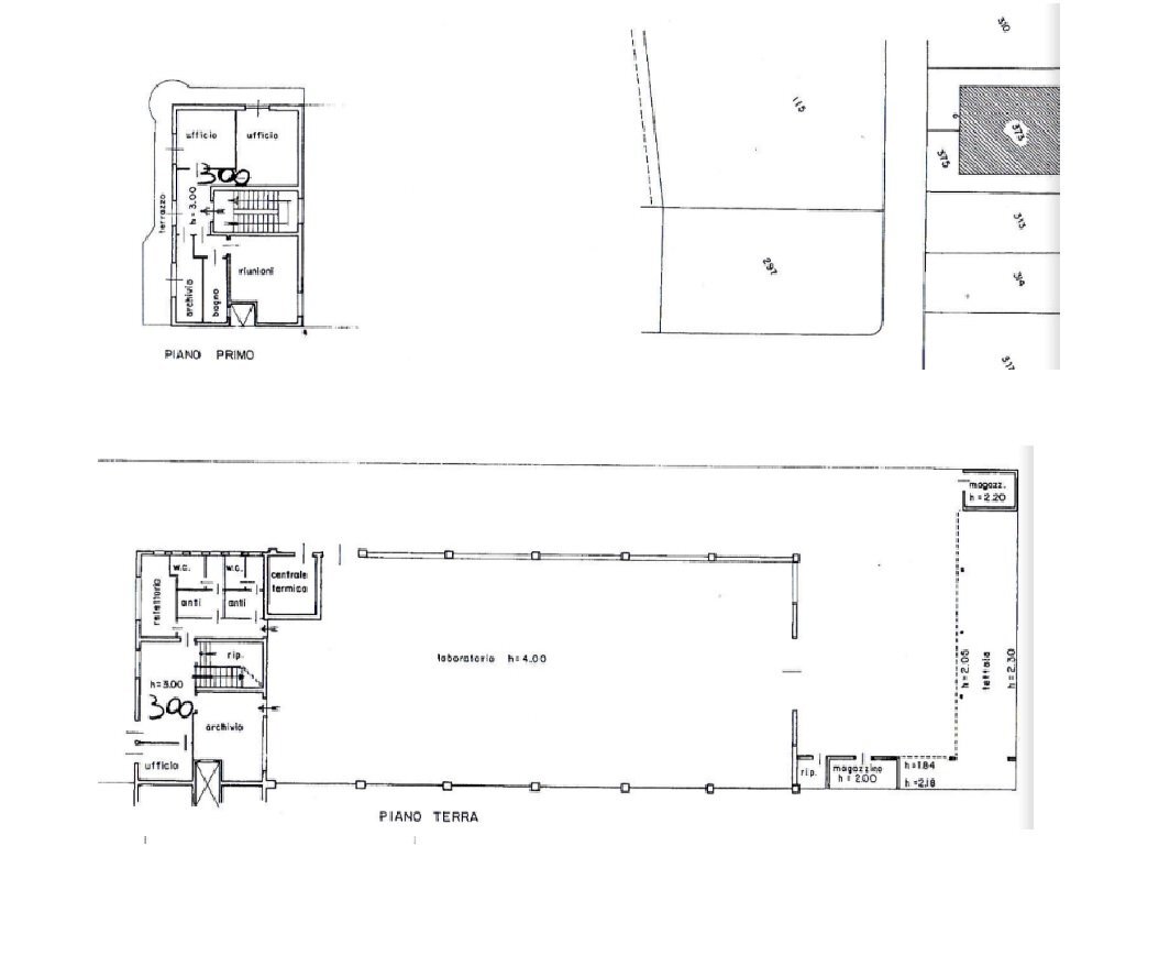
Bargellino: in ottima posizione, vendesi capannone di circa 400 mq, piu' uffici ed ulteriore fabbricato, area cortiliva privata. Classe en. in redazione. Euro 470.000
Main data
| Reference | INI 37 |
| Ad date | 08/07/2022 |
| Contract | Sale |
| Typology | Shed |
| Surface | 400 m2 |
| Locals | 2 bathrooms |
| Plan | On several levels |
| Construction type | Signorile |
| Real estate use | Commercial |
| Mq Offices | 100 |
Costs
| Price | 470.000 € |
| Price per m2 | 1.175 €/m2 |
Energy efficiency
| Status | Good |
| Heating | Autonomous |
| Energy rating | In the calculation phase |
Floor plans
Address and map
Calderara di Reno - hamlets Bargellino
Ad without map,
try asking the advertiser for the position
try asking the advertiser for the position
Mortgage calculation
Selling price:
Advance
20,00
Mortgage
80,00
Rate: -+
Payment: 1.344 per month
The results are an indicative estimate based on the data entered and do not constitute a financial offer.
Advertiser
Call
CONTACT
