Apartment Nonantola
€ 309.000
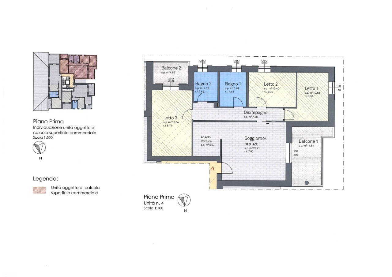
Appartamento di ampio respiro, con ingresso in soggiorno, cucina abitabile, tre balconi loggiati, tre camere, due bagni entrambi finestrati, ottima esposizione.
Main data
| Reference | STN064 |
| Ad date | 16/04/2021 |
| Contract | Sale |
| Typology | Apartment |
| Surface | 134 m2 |
| Locals | 2 bathrooms |
Costs
| Price | 309.000 € |
| Price per m2 | 2.306 €/m2 |
Energy efficiency
| Energy rating | A+ |
| Energy Performance Index (IPE) | - |
Floor plans
Address and map
Nonantola
Mortgage calculation
Selling price:
Advance
20,00
Mortgage
80,00
Rate: -+
Payment: 884 per month
The results are an indicative estimate based on the data entered and do not constitute a financial offer.
Advertiser
Call
CONTACT

