

Negozio via Virginio Arzani, Tortona
€ 95.000LOCALE COMMERCIALE IN VENDITA A TORTONA - VIA ARZANI
PEDEMONTE MASSIMO VENDE NEGOZIO A TORTONA IN VIA ARZANI L'immobile è situato in Via Arzani nei pressi di Via Emilia E' posizionato sul fronte strada in una zona di con un buon passaggio pedonale Ha una metratura di circa 100 mq dispone di 2 vetrine, di un piccolo ufficio interno e di 1 bagno Riscaldamento centralizzato Spese condominiali minime Prezzo di vendita € 95.000 TRATTABILI VISITATE IL NOSTRO SITO: www.pedemontemassimomediatore.com CONTATTATECI per avere tutte le informazioni che desiderate: tel. 0131/868477 e-mail: [email protected] CI TROVATE: a Tortona in Via Emilia n. 54 (Piazza Malaspina) dal lunedì al venerdì dalle 9.00 alle 13.00 e dalle 15.00 alle 19.00
Dati principali
| Riferimento | 661-5 - (1451705) |
| Data annuncio | 11/03/2021 |
| Contratto | Vendita |
| Tipologia | Negozio |
| Superficie | 100 m2 |
| Piano | 6 totali |
| Tipo di costruzione | Media |
| Uso immobile | Commerciale |
Costi
| Prezzo | 95.000 € |
| Prezzo al m2 | 950 €/m2 |
Efficienza energetica
| Riscaldamento | Centralizzato |
| Classe energetica | Immobile esente da certificazione energetica |
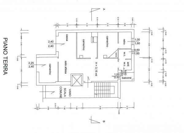
Planimetrie
Indirizzo e mappa
via Virginio Arzani, Tortona
Calcolo mutuo
Prezzo di vendita:
Anticipo
20,00
Mutuo
80,00
Tasso: -+
Rata: 272 al mese
I risultati sono una stima indicativa basata sui dati inseriti e non costituiscono un’offerta finanziaria.
Inserzionista
Chiama
CONTATTA
