Magazzino via Roma, 19, Settimo Torinese
€ 69.000Il Magazzino - Laboratorio - Showroom di Via Roma
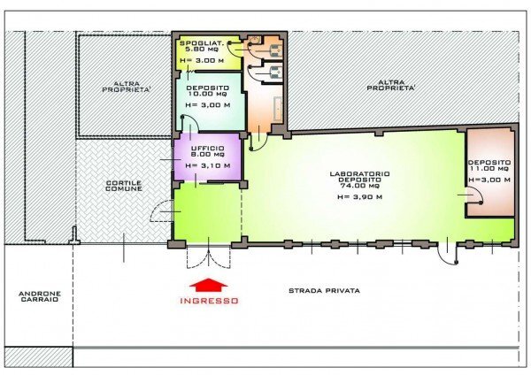
Laboratorio/Magazzino di 117mq ubicato in posizione strategica, nel pieno centro di Settimo Torinese, in prossimità della stazione ferroviaria. Unità immobiliari dalle grandi potenzialità a ridosso della zona pedonale, il cui unico limite è l'immaginazione dell'ipotetico acquirente. Grande luminosità, possibilità di eventuale trasformazione in "loft". Il locale comprende un ampio “open space” di circa 90mq, molto luminoso, con un’altezza di 5,50mt circa al colmo (3,90 alla controsoffittatura), una camera di dimensioni più ridotte facente funzione di deposito, ed una zona dedicata ad uffici, spogliatoi e servizi igienici con altezza leggermente inferiore (3,80m circa). Non ha praticamente spese di natura condominiale, se non quelle a consumo (come l'acqua potabile) che sono contabilizzate.
Dati principali
| Riferimento | Via Roma 19 |
| Data annuncio | 19/02/2021 |
| Contratto | Vendita |
| Tipologia | Magazzino |
| Superficie | 117 m2 |
| Piano | 1 totali |
| Uso immobile | Commerciale ed Industriale |
Costi
| Prezzo | 69.000 € |
| Prezzo al m2 | 590 €/m2 |
Efficienza energetica
| Classe energetica | Immobile esente da certificazione energetica |
Planimetrie
Indirizzo e mappa
via Roma, 19, Settimo Torinese
Calcolo mutuo
Prezzo di vendita:
Anticipo
20,00
Mutuo
80,00
Tasso: -+
Rata: 197 al mese
I risultati sono una stima indicativa basata sui dati inseriti e non costituiscono un’offerta finanziaria.
Inserzionista
Chiama
CONTATTA


