Bilocale via San Francesco d'Assisi, 35, Torino (zona Centro)
€ 239.000PIAZZA SOLFERINO CON TERRAZZO VIA SAN FRANCESCO D'ASSISI
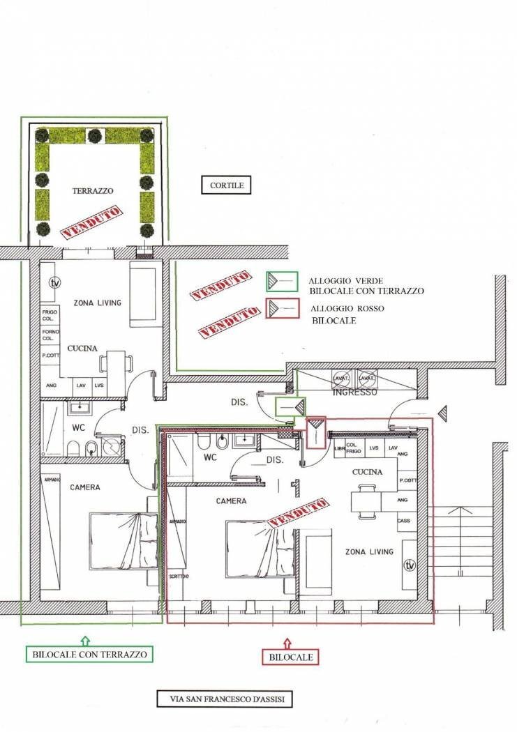
Bilocale via San Francesco d'Assisi 35, Torino Bilocale via San Francesco d'Assisi 35, Torino PIAZZA SOLFERINO CON TERRAZZO VIA SAN FRANCESCO D'ASSISI piazza solferino via san francesco d'assisi impresa propone nuova realizzazione di ultimi 2 appartamenti da mq 42 a mq 55 e terrazzo mq 20 in palazzina signorile anni '80 dotato di portineria, riscaldamento centralizzato, ed impianto di climatizzazione. i locali sono tutti ubicati al piano rialzato (molto alto) decisamente luminosi e volendo eventualmente abbinabili; il progetto prevede la creazione di 2 appartamenti suddivisi in: il primo in ingresso, ampio soggiorno living con angolo cucina, disimpegno, e camera da letto oltre ad una lavanderia, mentre il secondo bilocale sara' suddiviso in ingresso, soggiorno con accesso ad un ampio terrazzo di circa mq 20 pertinenziale ed ad uso esclusivo, disimpegno, camera da letto e servizi e lavanderia. tutti gli interventi saranno eseguiti con materiali e finiture di pregio, la consegna e' prevista per fine MARZO 2026; i prezzi proposti delle singole unita' immobiliari finiti e consegnati chiavi in mano sono rispettivamente di € 239.000, 00 (mq 40 ) (VENDUTO! ) e di € 295.000 (mq 50 oltre il terrazzo mq 20) (IN TRATTATIVA! ). - IN ALTERNATIVA a breve inizierà un nuovo cantiere in CIT TURIN piazza Benefica in palazzo storico del 1837 ove realizzeremo nuovi alloggi da mq 50 a mq 125 (LUXURY HOME ) consegna prevista MARZO/APRILE 2026 (alloggi arredati primarie griffes di design e con materiali e finiture di Lusso ). prezzi a partire da € 240.000, 00 inclusi arredi; - IN ALTERNATIVA a metà MARZO inizierà altro nuovo cantiere in CIT TURIN Palazzo storico del 1887 corso Vittorio Emanuele II N 108 pressi stazione Porta Susa e Metro ove realizzeremo 10 nuovi alloggi di elevato standard abitativo (LUXURY HOME), anche con terrazzi pertinenziali da mq 55 a mq 140 comprensivi di arredi importanti Griffes e finiture di elevato pregio. La consegna è prevista OTTOBRE 2026. prezzi a partire da € 259.000, 00 Comprensivi di arredi. Proposte progettuali e realizzazione VERDE MATTONE SRL - EUNOE' SRL. Realizzazioni. I locali in considerazione della favorevole posizione (Metro e Stazione Porta Susa) viene garantita ai nostri clienti una elevata redditività, offrendo un servizio locativo gratuito continuativo ed a costo zero. Caratteristiche specifiche Palazzi di rilevanza e di elevato pregio storico.
Dati principali
| Riferimento | 98 |
| Data annuncio | 05/01/2021 |
| Contratto | Vendita |
| Tipologia | Appartamento |
| Superficie | 40 m2 |
| Locali | 2 (1 camera da letto, 1 altro), 1 bagno, cucina abitabile |
| Piano | 5 totali |
| Tipo di costruzione | Signorile |
| Numero di terrazzi | 1 |
| Arredamento | Assente |
Caratteristiche
Costi
| Prezzo | 239.000 € |
| Prezzo al m2 | 5.975 €/m2 |
| Spese condominiali | € 70,00/mese |
Efficienza energetica
| Anno costruzione | 1980 |
| Stato | Nuovo |
| Riscaldamento | Centralizzato |
| Classe energetica | Immobile esente da certificazione energetica |
Planimetrie
Indirizzo e mappa
via San Francesco d'Assisi, 35, Torino - quartiere Centro
Calcolo mutuo
Prezzo di vendita:
Anticipo
20,00
Mutuo
80,00
Tasso: -+
Rata: 684 al mese
I risultati sono una stima indicativa basata sui dati inseriti e non costituiscono un’offerta finanziaria.
Inserzionista

valter zucchetto
via brenta 27, Rivalta di Torino
Mostra Telefono
Chiama
CONTATTA

