Capannone via Ulisse Nurzia, L'Aquila
Trattativa riservataAffittasi Palazzo direzionale - Anche solo parti
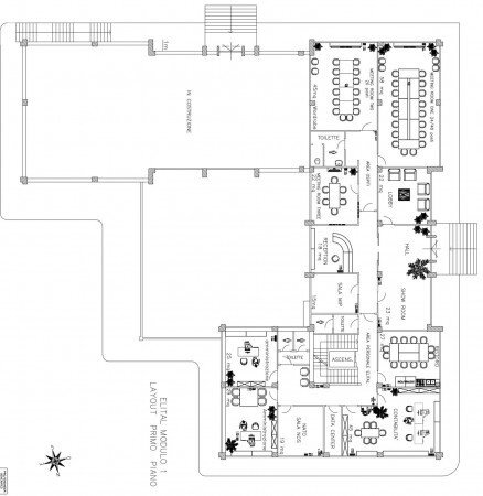
Si affitta Palazzo direzionale, composto da Piano Seminterrato 600mq, Piano Rialzato 500mq, Piano 1° 500mq. Possibilità di affittare porzione o interezza, stabile recintato, con passo carrabile ed ampio spazio di pertinenza. Ottima l'esposizione, molto luminoso per il consistente uso di superfici vetrate. Prezzo Trattabile Per Info: Sergio Adriani 3388617782 (Responsabile) Ufficio 0862690035 ( anche WhatsApp )
Dati principali
| Riferimento | ID754996 |
| Data annuncio | 11/11/2020 |
| Contratto | Affitto |
| Tipologia | Capannone |
| Superficie | 1600 m2 |
| Piano | 3 totali |
| Uso immobile | Commerciale ed Industriale |
Caratteristiche
Costi
| Prezzo | Trattativa riservata |
Efficienza energetica
| Riscaldamento | Autonomo |
| Classe energetica | Immobile esente da certificazione energetica |
Planimetrie
Indirizzo e mappa
via Ulisse Nurzia, L'Aquila
Inserzionista

Aia di Adriani Sergio
Via Cardinale Mazzarino 71, L'Aquila
Mostra Telefono
Chiama
CONTATTA

