Ristorante Frazione Veglia, 93, Cherasco
Trattativa riservataAffittasi locale ricettivo ristoro
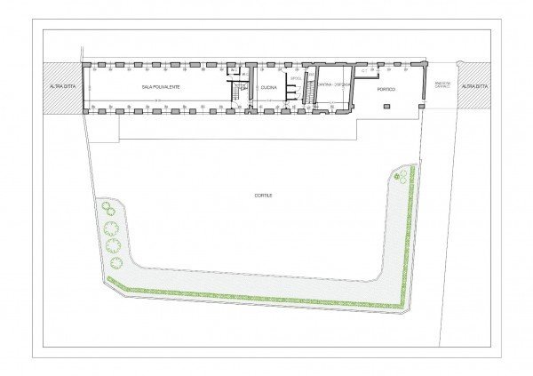
Per conto di proprio cliente affittasi fabbricato sito in Cherasco, Fraz. Veglia. Trattasi di immobile ex agricolo, attualmente in fase di prossima ultimazione, da adibire a locale ricettivo generico, con destinazione sala polivalente ovvero: sala ristorazione, sala conferenze, sala mostre, ecc. Il fabbricato ultimato prevede la presenza al piano terra di ampio locale ricettivo/sala polivalente, doppi servizi igienici, cucina con relativa cantina-dispensa e spogliatoi in modo tale da poter eventualmente anche ospitare un catering, porticato adiacente. Completano la proprietà cortile interno di superficie di circa 1400 mq e area parcheggio ad ovest del fabbricato.
Dati principali
| Riferimento | ID61136 |
| Data annuncio | 19/09/2019 |
| Contratto | Affitto |
| Tipologia | Ristorante |
| Superficie | 350 m2 |
| Piano | 2 totali |
Costi
| Prezzo | Trattativa riservata |
Efficienza energetica
| Riscaldamento | Autonomo |
| Classe energetica | Immobile esente da certificazione energetica |
Planimetrie
Indirizzo e mappa
Frazione Veglia, 93, Cherasco
Inserzionista

Studio Associato Str
Via Stefano Gallina 36, Marene
Mostra Telefono
Chiama
CONTATTA

