Casa indipendente Via Torino, San Benedetto del Tronto
€ 290.000
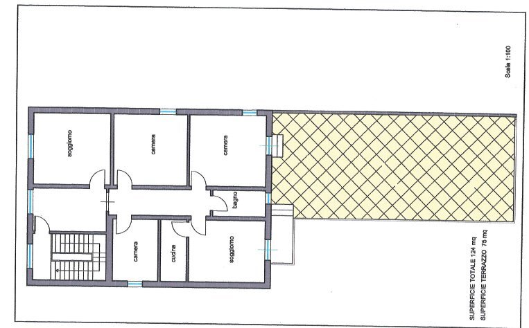
Classe energetica: G - EPgl,nren: 56,80 kWh/m² - Casa indipendente di mq 320 circa divisa su tre livelli dove al piano primo si trova un appartamento di mq 124 composto da ingresso su disimpegno, salotto, tre camere da letto di cui due matrimoniali e una doppia, tinello con cucinino e bagno. Nel lato sud, con accesso dal tinello e da una delle camere, si trova un grande terrazzo di mq 75 circa ampiamente abitabile e ottimamente esposto .
Al Piano terra c'è un grande garage di mq 124 con doppio accesso e con altezza interna che varia dai 3,60m ai 6,05m. Questo ambiente, ideale per laboratori artigianali di vario genere, può essere trasformato in abitativo realizzando uno o più appartamenti.
Sempre al piano terra si trovano una cantina ed un garage di mq 70 circa accessibili dal lato sud della palazzina.
Completa la proprietà un'ampia area esterna di 125 mq circa per gran parte coperta che, esposta sul lato sud della palazzina, offre la possibilità di parcheggio a numerose autovetture o mezzi pesanti.
Posizionato sulla strada Salaria, non distante dalla chiesa Dell'Annunziata, l'edificio si presenta in condizioni di manutenzione medie, ben tenuto e perfettamente funzionante ma con rifiniture risalenti all'epoca costruttiva.
Date le sue specifiche caratteristiche e la sua visibilità è una soluzione ideale per chi cerca una struttura dove poter abitare e installare un laboratorio artigianale ai piani sottostanti oppure, con una adeguata ristrutturazione, per chi cerca una abitazione dove ospitare più nuclei familiari.
Al Piano terra c'è un grande garage di mq 124 con doppio accesso e con altezza interna che varia dai 3,60m ai 6,05m. Questo ambiente, ideale per laboratori artigianali di vario genere, può essere trasformato in abitativo realizzando uno o più appartamenti.
Sempre al piano terra si trovano una cantina ed un garage di mq 70 circa accessibili dal lato sud della palazzina.
Completa la proprietà un'ampia area esterna di 125 mq circa per gran parte coperta che, esposta sul lato sud della palazzina, offre la possibilità di parcheggio a numerose autovetture o mezzi pesanti.
Posizionato sulla strada Salaria, non distante dalla chiesa Dell'Annunziata, l'edificio si presenta in condizioni di manutenzione medie, ben tenuto e perfettamente funzionante ma con rifiniture risalenti all'epoca costruttiva.
Date le sue specifiche caratteristiche e la sua visibilità è una soluzione ideale per chi cerca una struttura dove poter abitare e installare un laboratorio artigianale ai piani sottostanti oppure, con una adeguata ristrutturazione, per chi cerca una abitazione dove ospitare più nuclei familiari.
Dati principali
| Riferimento | 22918 |
| Data annuncio | 28/03/2020 |
| Contratto | Vendita |
| Tipologia | Casa indipendente |
| Superficie | 320 m2 |
| Locali | più di 5 (3 camere da letto, 3 altro), 1 bagno |
| Piano | 2 totali |
Caratteristiche
Costi
| Prezzo | 290.000 € |
| Prezzo al m2 | 906 €/m2 |
Efficienza energetica
| Anno costruzione | 1954 |
| Riscaldamento | Autonomo |
| Classe energetica | Immobile esente da certificazione energetica |
Indirizzo e mappa
Via Torino, San Benedetto del Tronto
Calcolo mutuo
Prezzo di vendita:
Anticipo
20,00
Mutuo
80,00
Tasso: -+
Rata: 829 al mese
I risultati sono una stima indicativa basata sui dati inseriti e non costituiscono un’offerta finanziaria.
Inserzionista

La Mer
Via Dei Mille n.73, San Benedetto del Tronto
Mostra Telefono
Chiama
CONTATTA

