Villa via Romagna, Galatina
€ 110.000
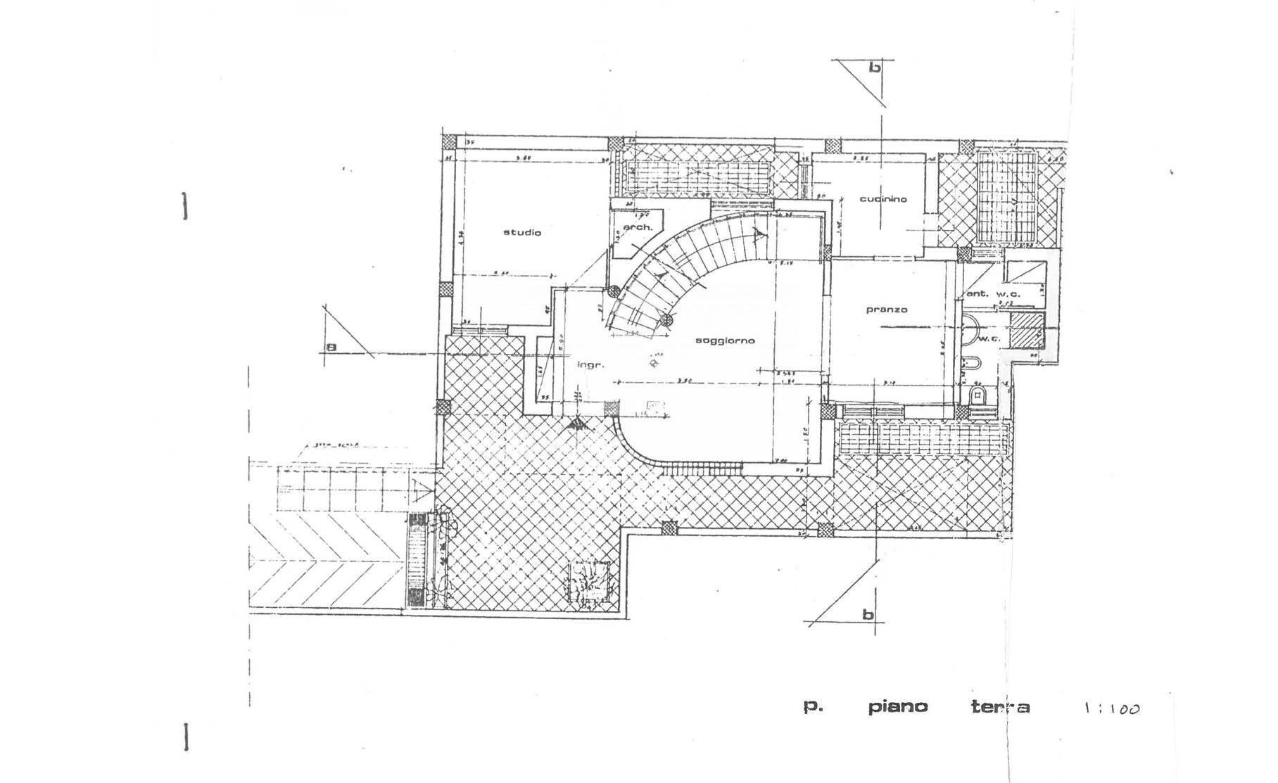
GALATINA - Via Romagna Villetta allo stato rustico con taverna, mansarda, giardino e terrazzo. A Galatina, in un contesto residenziale tranquillo e ben servito, proponiamo in vendita una villetta indipendente allo stato rustico, ideale per chi desidera realizzare unabitazione su misura, personalizzando spazi e finiture secondo le proprie esigenze. Limmobile si sviluppa su più livelli per una superficie complessiva di circa 350 mq, caratterizzandosi per ambienti ampi, razionali e facilmente modulabili. Il piano terra accoglie una generosa zona giorno, ideale per la realizzazione di un living contemporaneo con cucina e soggiorno open space, studio e bagno. Il primo piano è destinato alla zona notte, con la possibilità di ricavare più camere da letto e relativi servizi. Larea solare è dotata di vano lavanderia e di un ampio terrazzo di circa 80 mq, perfetto per momenti di relax e convivialità allaperto. Completa la proprietà un piano seminterrato composto da una spaziosa cantina, un comodo garage e un'area deposito, perfetti come spazi accessori e di servizio. Balconi e un gradevole giardino di pertinenza contribuiscono a garantire luminosità, vivibilità e funzionalità agli ambienti. La soluzione rappresenta unopportunità di sicuro interesse sia come residenza principale sia come investimento, grazie alla posizione strategica e allelevato potenziale di valorizzazione. Galatina dista circa 20 km da Lecce, 15 km da Gallipoli, 20 km da Otranto e 50 km dall'aeroporto di Brindisi.
Dati principali
| Riferimento | LE380-GA |
| Data annuncio | 30/04/2026 |
| Contratto | Vendita |
| Tipologia | Villa |
| Superficie | 350 m2 |
| Locali | più di 5 (3 camere da letto, 4 altro), 4 bagni |
| Piano | Su più livelli, 3 totali |
| Tipo di costruzione | Signorile |
| Occupato | Libero |
| Box auto | Singolo |
Caratteristiche
Costi
| Prezzo | 110.000 € |
| Prezzo al m2 | 314 €/m2 |
Efficienza energetica
| Stato | Scarso |
| Riscaldamento | Assente |
| Tipo Alimentazione Riscaldamento | Altro |
| Classe energetica | Immobile esente da certificazione energetica |
Planimetrie
Indirizzo e mappa
via Romagna, Galatina
Annuncio senza mappa,
prova a chiedere la posizione all'inserzionista
prova a chiedere la posizione all'inserzionista
Calcolo mutuo
Prezzo di vendita:
Anticipo
20,00
Mutuo
80,00
Tasso: -+
Rata: 315 al mese
I risultati sono una stima indicativa basata sui dati inseriti e non costituiscono un’offerta finanziaria.
Inserzionista

Coldwell Banker Gruppo Bodini
Piazza Dante Alighieri, 43, Galatina
Mostra Telefono
Mostra Cellulare
Chiama
CONTATTA

