Appartamento via Giordani, Sori
€ 148.000Sori appartamento con posto auto e fascia di terreno
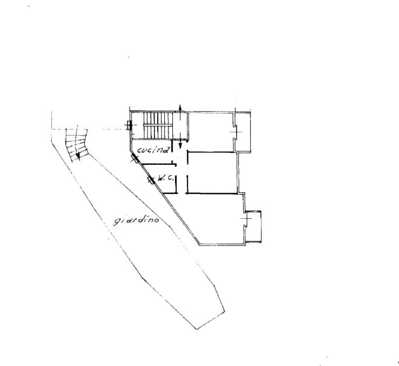
SORI vicinissimo al centro paese e a poche centinaia di metri dal mare, vendiamo liberi 6 comodi vani, composti da ingresso, ampio soggiorno, due camere da letto, cucina e bagno. L'appartamento è esposto al sole dalla mattinata al primo pomeriggio; possiede due ampi balconi e una piccola fascia di terreno ideale per uso orto; un prezioso posto auto di proprietà a pochi metri dallo stabile rappresenta un importante valore aggiunto. Il riscaldamento è autonomo, bassissime le spese di amministrazione , pronto da abitare comprensivo di arredo cucina e bagno completo. Occasione esclusiva Coccarello e Pittore Immobiliare Classe G Ipe 174,00 Kwh/mq. annuo.
Dati principali
| Riferimento | Via Giordani |
| Data annuncio | 27/04/2026 |
| Contratto | Vendita |
| Tipologia | Appartamento |
| Superficie | 70 m2 |
| Locali | 3 (2 camere da letto, 1 altro), 1 bagno, cucina semi abitabile |
| Piano | 1 di 3 totali |
| Tipo di costruzione | Popolare |
| Numero di balconi | 2 |
| Box auto | Assente |
| Numero posti auto | 1 |
| Arredamento | Parziale |
Costi
| Prezzo | 148.000 € |
| Prezzo al m2 | 2.114 €/m2 |
| Spese condominiali | € 35,00/mese |
Efficienza energetica
| Stato | Buono |
| Riscaldamento | Autonomo |
| Tipo Alimentazione Riscaldamento | Metano |
| Classe energetica | G |
| Indice di prestazione energetica (IPE) | 174 kWh/m2 anno |
Planimetrie
Indirizzo e mappa
via Giordani, Sori
Calcolo mutuo
Prezzo di vendita:
Anticipo
20,00
Mutuo
80,00
Tasso: -+
Rata: 423 al mese
I risultati sono una stima indicativa basata sui dati inseriti e non costituiscono un’offerta finanziaria.
Inserzionista

Coccarello e Pittore Immobiliare
Piazza Sturla 17R, Genova
Mostra Telefono
Chiama
CONTATTA

