Quadrilocale viale delle Palme, 64, Ravenna (zona Porto Corsini)
€ 290.000MARINA ROMEA (RA), Appartamento al piano terra con giardino
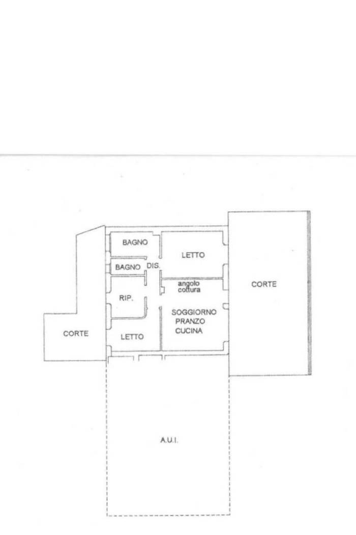
MARINA ROMEA (RA), Viale delle Palme, Vicinanze centro in posizione comoda ai servizi e a pochi minuti dalla spiaggia, in recente palazzina moderna e di pregio, costruzione 2010, proponiamo in vendita appartamento ben curato e accessoriato sito al piano terra con due ampi giardini fronte e retro, composto da: soggiorno con angolo cottura ed ampia vetrata con affaccio sul giardino dotato di pavimentazione in legno ideale per vivere momenti di relax e convivialità per pranzi e cene all'aperto, reparto notte con disimpegno, tre camere da letto di cui una matrimoniale, due bagni finestrati di cui uno con doccia e box in cristallo da 6 mm con miscelatore "Grohe" termostatico e vasca idromassaggio. L'abitazione viene ceduta completa di arredi ed è dotata di impianti tecnologici di ultima generazione: riscaldamento a pavimento, aria condizionata con pompa di calore, impianto di ventilazione igroregolabile, antifurto, impianto aspirazione polveri centralizzato, domotica con oscuranti motorizzati all'interno dei vetri a camera, pavimento in parquet in ogni stanza, zanzariere integrate nell'infisso, irrigazione automatica in giardino, posto auto privato coperto vicino all'ingresso della casa. L'abitazione è ideale sia come residenza annuale sia come casa vacanza. APE: "A1". €. 290.000,00
Dati principali
| Riferimento | ID3035801 |
| Data annuncio | 27/04/2026 |
| Contratto | Vendita |
| Tipologia | Appartamento |
| Superficie | 108 m2 |
| Locali | 4 (3 camere da letto, 1 altro), 2 bagni, cucina angolo cottura |
| Piano | 4 totali |
| Tipo di costruzione | Lusso |
| Numero posti auto | 1 |
| Arredamento | Completo |
Caratteristiche
Costi
| Prezzo | 290.000 € |
| Prezzo al m2 | 2.685 €/m2 |
| Spese condominiali | € 45,00/mese |
Efficienza energetica
| Anno costruzione | 2010 |
| Stato | Ottimo |
| Riscaldamento | Autonomo |
| Classe energetica | A1 |
Planimetrie
Indirizzo e mappa
viale delle Palme, 64, Ravenna - quartiere Porto Corsini
Calcolo mutuo
Prezzo di vendita:
Anticipo
20,00
Mutuo
80,00
Tasso: -+
Rata: 829 al mese
I risultati sono una stima indicativa basata sui dati inseriti e non costituiscono un’offerta finanziaria.
Inserzionista
Chiama
CONTATTA


