Villa Cassia, Viterbo
Trattativa riservata
Residenza di prestigio con parco privato, piscina infinity e SPA a Viterbo Nel cuore della Tuscia, a soli due chilometri dal centro storico di Viterbo e a breve distanza dalle celebri Terme dei Papi, sorge una proprietà straordinaria, dove eleganza, riservatezza e natura si fondono in perfetta armonia. Immersa in un parco privato di oltre 17.000 mq, la villa è circondata da un giardino paesaggistico di circa 5.000 mq, impreziosito da alberi monumentali, essenze ornamentali e raffinati spazi outdoor pensati per il relax e la convivialità: area barbecue con forno a legna, serra solare attrezzata a palestra e lounge en plein air. Protagonista assoluta degli esterni è la scenografica piscina infinity con acqua salata e zona idromassaggio, affacciata sul verde, accanto a un esclusivo uliveto di circa 130 piante che completa questa oasi privata di rara bellezza. Interni Eleganza senza tempo. La residenza si distingue per ambienti ampi e luminosi, impreziositi da materiali nobili e dettagli architettonici unici. Lingresso introduce a un maestoso salone dominato da un portale in peperino e da una suggestiva fontana depoca celata, elemento scenico di grande fascino. Un secondo living con travi in legno a vista e camino crea unatmosfera calda e sofisticata. Completano la zona giorno: sala da pranzo formale elegante sala lettura studio riservato cucina di design firmata Ernesto Meda, con affacci sul verde Il piano terra ospita inoltre una raffinata suite per ospiti con ingresso indipendente, oltre a unulteriore ala privata con camera e bagno en suite. La zona notte, al primo piano, accoglie una suite padronale con balcone coperto, due ampie cabine armadio (facilmente riconvertitili in camere), due bagni finestrati e un terrazzo coperto che invita al relax. Area wellness privata. Al piano seminterrato, un ambiente dedicato al tempo libero e al benessere: sala hobby con camino, area bar e spazio cinema esclusiva SPA privata con piscina idromassaggio, bagno turco e doccia emozionale. Un vero rifugio sensoriale, pensato per unesperienza quotidiana di lusso. Tecnologia e comfort Dotazioni di alto livello garantiscono efficienza e sicurezza: impianto fotovoltaico da 11 kW con sistema di accumulo da 15 kW climatizzazione evoluta Daikin, Stylish sistema di sicurezza integrato con videosorveglianza infissi in frassino spazzolato con triplo vetro pavimentazioni in cotto artigianale e parquet .Mardegan finiture bagno di altissima qualità. infissi in legno con doppio vetro e grate alle finestre. La proprietà è termo-autonoma GPL . Un territorio unico. La proprietà si inserisce in un contesto ricco di storia e fascino, tra borghi iconici e paesaggi senza tempo: il quartiere medievale di San Pellegrino, il Palazzo dei Papi, la spettacolare Macchina di Santa Rosa, Civita di Bagnoregio, Bolsena e il suo lago vulcanico, Villa Lante, Palazzo Farnese ect. Distanze strategiche Roma: 107 km Orvieto: 47 km Mare: 45 km
Dati principali
| Riferimento | CBI034-30-297 |
| Data annuncio | 29/04/2026 |
| Contratto | Vendita |
| Tipologia | Villa |
| Superficie | 494 m2 |
| Locali | più di 5 (5 camere da letto, 11 altro), 5 bagni, cucina abitabile |
| Piano | Su più livelli |
| Tipo di costruzione | Signorile |
| Occupato | Libero |
| Box auto | Doppio |
Caratteristiche
Costi
| Prezzo | Trattativa riservata |
Efficienza energetica
| Stato | Ottimo |
| Riscaldamento | Autonomo |
| Tipo Alimentazione Riscaldamento | Gpl |
| Classe energetica | A1 |
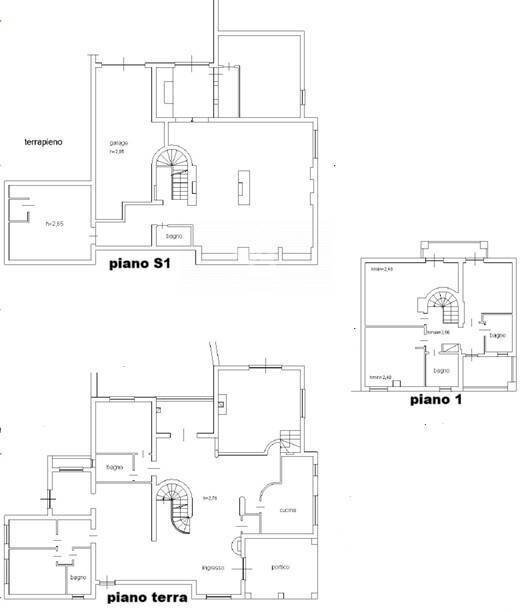
Planimetrie
Indirizzo e mappa
Cassia, Viterbo
Annuncio senza mappa,
prova a chiedere la posizione all'inserzionista
prova a chiedere la posizione all'inserzionista
Inserzionista

Coldwell Banker Blasi & Partners
Via Vittorio Veneto, 24, Sutri
Mostra Telefono
Mostra Cellulare
Coldwell Banker Immobiliare Blasi
Chiama
CONTATTA

