Appartamento Regione Bricco, Noli
€ 285.000
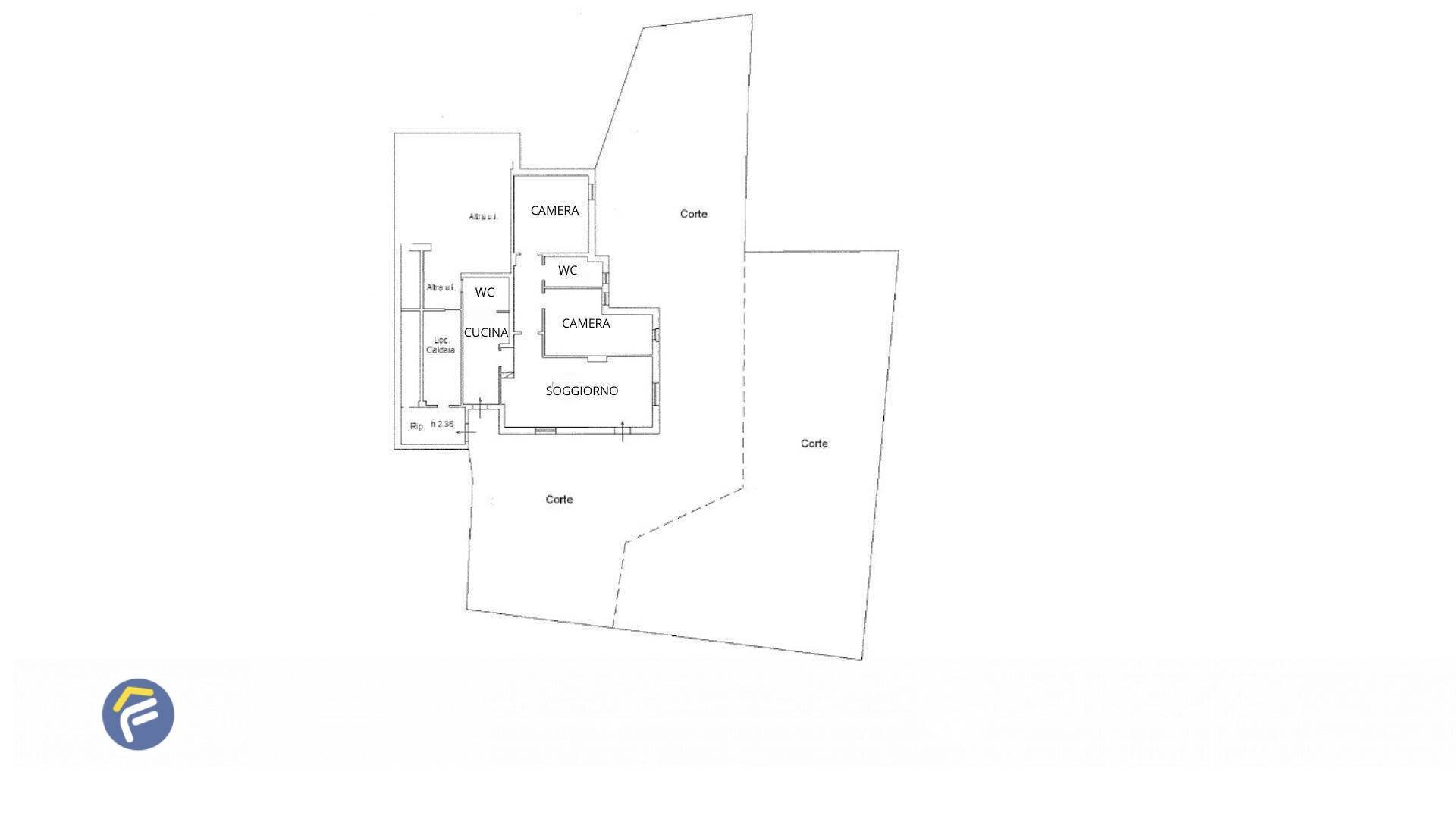
TRILOCALE IN VILLA CON VISTA MARE, GIARDINO E POSTO AUTO A pochi minuti di auto da Noli, appartamento semindipendente con splendida vista panoramica sul mare. La proprietà è caratterizzata da zona giorno, cucinotto, due camere da letto, doppi servizi e ripostiglio. Spazi luminosi e grande potenziale di personalizzazione. Allesterno troviamo un giardino privato su più livelli e corte piastrellata con possibilità di parcheggiare un auto. Unopportunità rara per realizzare una casa dal fascino unico con vista sul blu!
Dati principali
| Riferimento | F10-069 |
| Data annuncio | 26/04/2026 |
| Contratto | Vendita |
| Tipologia | Appartamento |
| Superficie | 85 m2 |
| Locali | 3 (2 camere da letto, 1 altro), 2 bagni, cucina cucinino |
| Piano | Terra, 2 totali |
| Tipo di costruzione | Media |
| Occupato | Libero |
| Box auto | Assente |
| Numero posti auto | 1 |
| Arredamento | Parziale |
Caratteristiche
Costi
| Prezzo | 285.000 € |
| Prezzo al m2 | 3.353 €/m2 |
Efficienza energetica
| Stato | Buono |
| Riscaldamento | Assente |
| Tipo Alimentazione Riscaldamento | Altro |
| Classe energetica | G |
| Indice di prestazione energetica (IPE) | - |
Planimetrie
Indirizzo e mappa
Regione Bricco, Noli
Annuncio senza mappa,
prova a chiedere la posizione all'inserzionista
prova a chiedere la posizione all'inserzionista
Calcolo mutuo
Prezzo di vendita:
Anticipo
20,00
Mutuo
80,00
Tasso: -+
Rata: 815 al mese
I risultati sono una stima indicativa basata sui dati inseriti e non costituiscono un’offerta finanziaria.
Inserzionista

Fondocasa Spotorno
Via mazzini, 5, Spotorno
Mostra Telefono
Chiama
CONTATTA

