Villa a Schiera via fratelli biancoli, Ravenna
€ 148.800Semindipendente - Villa a schiera a Ravenna
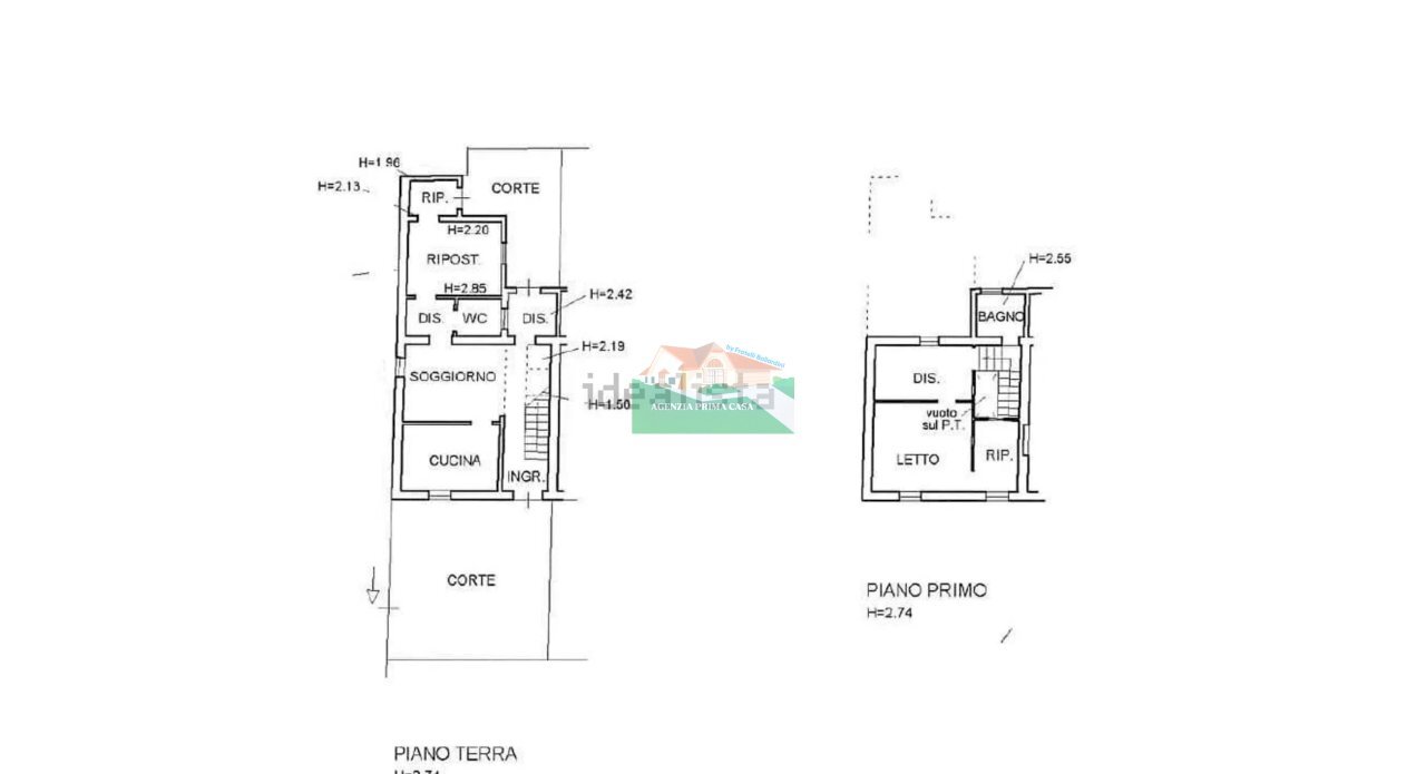
Scopri questa splendida villetta a schiera in vendita nella tranquilla zona di Sant'Alberto, ideale per chi cerca comfort e praticità. Completamente ristrutturata, questa casa si sviluppa su due livelli e offre un'ottima distribuzione degli spazi. Al piano terra, troviamo un accogliente ingresso che conduce a una spaziosa sala, una cucina abitabile perfetta per le cene in famiglia, un disimpegno, un bagno con doccia e una camera da letto. Salendo al primo piano, si trovano due camere da letto luminose e un secondo bagno, rendendo questa soluzione perfetta per famiglie. Gli impianti idraulici ed elettrici sono nuovi, così come gli infissi e i pavimenti, garantendo un'abitabilità immediata. La porta blindata offre ulteriore sicurezza, mentre il giardino privato rappresenta un angolo di relax all'aperto. Con 125 m² commerciali e 5 locali totali, questa villetta è un'opportunità da non perdere! Il riscaldamento è assicurato da una pompa di calore con gas naturale, e l'orientamento a sud-est garantisce luminosità durante tutto il giorno. Non lasciarti sfuggire questa occasione!
Dati principali
| Riferimento | RA/47F-3 |
| Data annuncio | 24/04/2026 |
| Contratto | Vendita |
| Tipologia | Villa a Schiera |
| Superficie | 125 m2 |
| Locali | 5 (1 camera da letto, 4 altro), 1 bagno |
| Piano | 2 totali |
Costi
| Prezzo | 148.800 € |
| Prezzo al m2 | 1.190 €/m2 |
Efficienza energetica
| Classe energetica | In fase di calcolo |
Planimetrie
Indirizzo e mappa
via fratelli biancoli, Ravenna
Calcolo mutuo
Prezzo di vendita:
Anticipo
20,00
Mutuo
80,00
Tasso: -+
Rata: 426 al mese
I risultati sono una stima indicativa basata sui dati inseriti e non costituiscono un’offerta finanziaria.
Inserzionista

Ballardini Luca D.I
Via Romea 147, Ravenna
Mostra Cellulare
Chiama
CONTATTA

