Appartamento Piazza della Costituzione, Firenze (zona Santa Maria Novella)
€ 700.000Appartamento a Statuto, Firenze
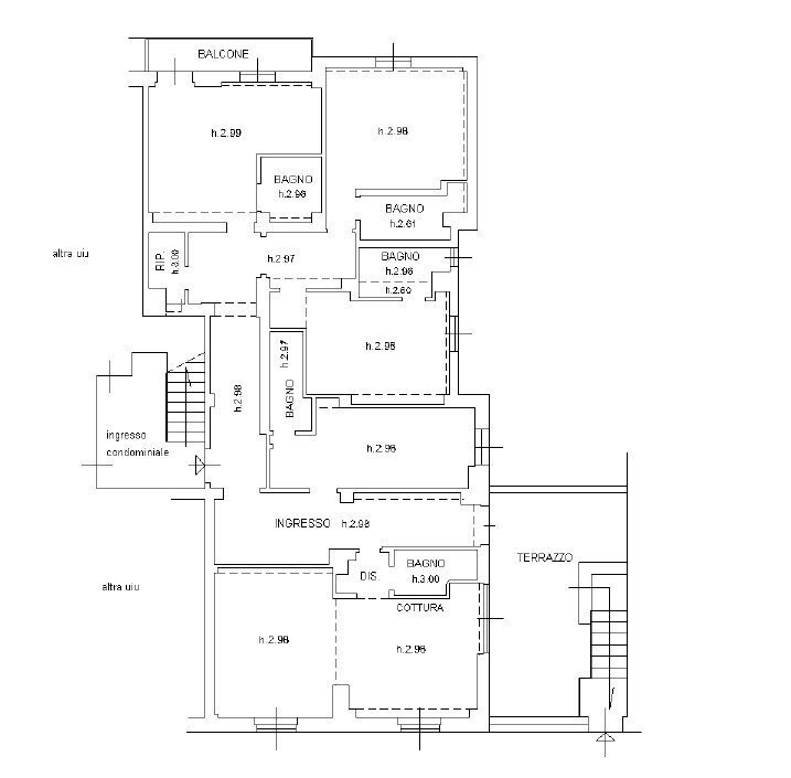
a26160 - Firenze/Statuto - Piazza della Costituzione In elegante contesto residenziale, a pochi passi dalla fermata della tramvia ed in prossimità di tutti i principali servizi, IMMOBILIARE BELVEDERE propone in vendita ampio e luminoso appartamento (170 mq ca) situato al piano parzialmente seminterrato composto da: ingresso, soggiorno doppio con angolo cottura, quattro camere da letto matrimoniali con molteplici servizi, piacevole balcone, pratici ripostigli e terrazza abitabile di 30 mq. L'immobile è stato oggetto di integrale ristrutturazione con rifiniture di pregio, gode di tripla esposizione ed è composto da video citofono, aria condizionata, infissi in legno con doppi vetri e piano cottura ad induzione. Termocentralizzato classe energetica E. Ideale come forma di investimento visto che è già presente su tutti i principali siti di B&B
Dati principali
| Riferimento | a26160 |
| Data annuncio | 24/04/2026 |
| Contratto | Vendita |
| Tipologia | Appartamento |
| Superficie | 170 m2 |
| Locali | più di 5 (4 camere da letto, 2 altro), 5 bagni |
| Piano | 1 totali |
| Numero di terrazzi | 1 |
| Numero di balconi | 1 |
Costi
| Prezzo | 700.000 € |
| Prezzo al m2 | 4.118 €/m2 |
| Spese condominiali | € 50,00/mese |
Efficienza energetica
| Anno costruzione | 1900 |
| Classe energetica | E |
Planimetrie
Indirizzo e mappa
Piazza della Costituzione, Firenze - quartiere Santa Maria Novella
Calcolo mutuo
Prezzo di vendita:
Anticipo
20,00
Mutuo
80,00
Tasso: -+
Rata: 2.002 al mese
I risultati sono una stima indicativa basata sui dati inseriti e non costituiscono un’offerta finanziaria.
Inserzionista
Immobiliare Belvedere
Via Il Prato 61r, Firenze
Mostra Telefono
Chiama
CONTATTA

