Bilocale via Argentesi, Medicina
€ 148.000Corte Argentesi, appartamento al secondo piano con ascensore
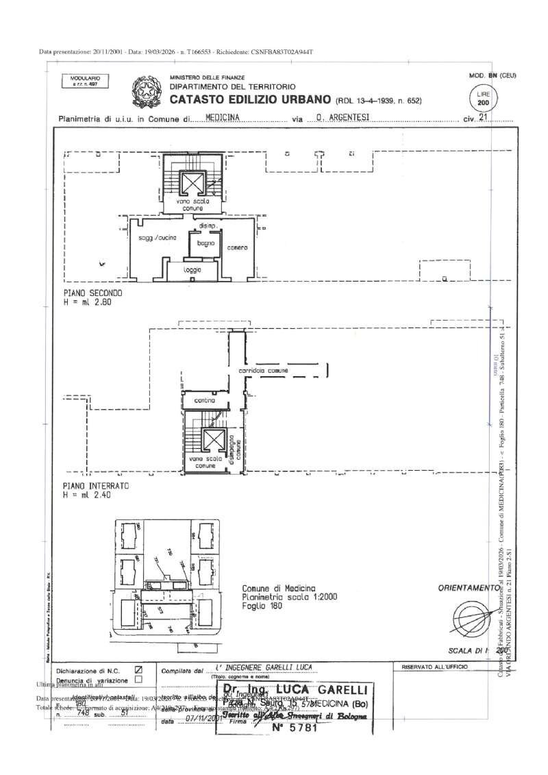
In zona Corte Argentesi, proponiamo in vendita un accogliente appartamento situato al secondo piano di una palazzina servita da ascensore, ideale per chi cerca comfort e funzionalità in un contesto tranquillo e ben collegato. L’ingresso si apre su un luminoso soggiorno con angolo cottura, arricchito da un comodo balcone perfetto per momenti di relax. Un pratico disimpegno conduce alla zona notte, composta da una camera matrimoniale e un bagno. Completano la proprietà, al piano interrato, una cantina e un garage, soluzioni ideali per soddisfare ogni esigenza di spazio e praticità. Un’opportunità perfetta sia come prima casa che come investimento. Da vedere! Rif. MD2114 € 148.000 Tel. 051-85.73.11 Cel. 366-72.05.938 oppure WhatsApp 366/7205938 Guarda il Virtual Tour 3D su Immobiliare.it e seguici su Facebook e sul nostro sito www.mediocasaweb.it
Dati principali
| Riferimento | MD2114 |
| Data annuncio | 23/04/2026 |
| Contratto | Vendita |
| Tipologia | Appartamento |
| Superficie | 58 m2 |
| Locali | 2 (1 camera da letto, 1 altro), 1 bagno, cucina angolo cottura |
| Piano | 2 di 3 totali |
| Tipo di costruzione | Media |
| Numero di balconi | 1 |
| Box auto | Singolo |
| Arredamento | Parziale |
Caratteristiche
Costi
| Prezzo | 148.000 € |
| Prezzo al m2 | 2.552 €/m2 |
| Spese condominiali | € 1100,00/mese |
Efficienza energetica
| Riscaldamento | Autonomo |
| Tipo Alimentazione Riscaldamento | Metano |
| Classe energetica | Immobile esente da certificazione energetica |
Planimetrie
Indirizzo e mappa
via Argentesi, Medicina
Calcolo mutuo
Prezzo di vendita:
Anticipo
20,00
Mutuo
80,00
Tasso: -+
Rata: 423 al mese
I risultati sono una stima indicativa basata sui dati inseriti e non costituiscono un’offerta finanziaria.
Inserzionista

Mediocasa S.N.C.
Via A. Saffi 184, Medicina
Mostra Cellulare
Chiama
CONTATTA

