Bilocale Fiume Veneto
€ 215.000
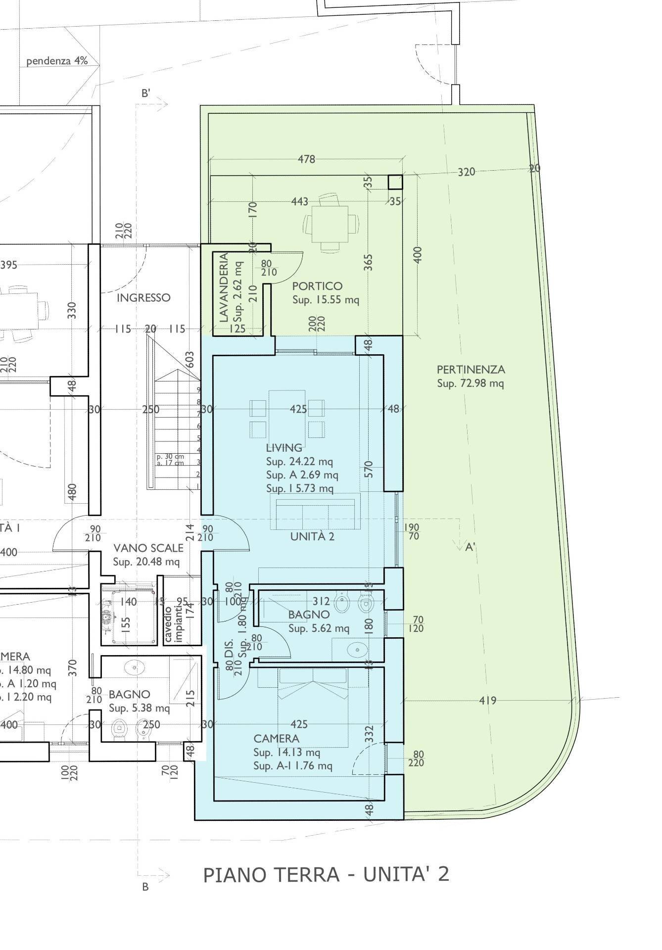
NUOVI ESCLUSIVI APPARTAMENTI IN FASE DI REALIZZAZIONE FIUME VENETO In zona residenziale tranquilla e ben collegata di Fiume Veneto, dove la comodità incontra la serenità del vivere quotidiano, nasce "Residenza La Brezza: un progetto moderno pensato per chi desidera una casa nuova, efficiente e a misura di vita. L'edificio, composto da sole 6 unità abitative, offre un contesto riservato e curato, ideale per chi cerca privacy senza rinunciare alla vicinanza ai principali servizi. Ogni abitazione è stata progettata per valorizzare gli spazi e la luce naturale, creando ambienti accoglienti e funzionali, dove immaginare la propria quotidianità diventa semplice e naturale. Mini appartamento e bicamere al piano terra, con giardino esclusivo Bicamere al primo e secondo piano, con ampi terrazzi abitabili Mini appartamento al secondo piano con ampio terrazzo abitabile Ogni unità dispone di posto auto coperto e cantina già inclusi nel prezzo. Caratteristiche che fanno la differenza: Contesto di poche unità, sinonimo di tranquillità e riservatezza Classe energetica A4, per il massimo risparmio e benessere abitativo Spazi esterni vivibili, tra giardini privati e terrazze abitabili Progettazione moderna orientata al comfort e alla qualità costruttiva Possibilità di personalizzare le finiture secondo il proprio stile Studio di interior design personalizzato Consegna prevista chiavi in mano per autunno 2027. Una proposta ideale per chi desidera costruire il proprio futuro in una casa nuova, in un contesto elegante e a dimensione familiare, oppure per chi cerca un investimento sicuro e di valore nel tempo. Per maggiori informazioni, planimetrie e dettagli, contattaci allo 0434 921788 e scopri le nostre proposte sul sito www.gruppolaprecisa.com
Dati principali
| Riferimento | LPP08-1390 |
| Data annuncio | 25/04/2026 |
| Contratto | Vendita |
| Tipologia | Appartamento |
| Superficie | 90 m2 |
| Locali | 2 (1 camera da letto, 1 altro), 1 bagno |
| Piano | Terra, 2 totali |
| Box auto | Assente |
| Numero posti auto | 1 |
Caratteristiche
Costi
| Prezzo | 215.000 € |
| Prezzo al m2 | 2.389 €/m2 |
Efficienza energetica
| Riscaldamento | Semi-autonomo |
| Tipo Impianto Di Riscaldamento | a pavimento |
| Tipo Alimentazione Riscaldamento | Fotovoltaico |
| Classe energetica | A4 |
Planimetrie
Indirizzo e mappa
Fiume Veneto
Annuncio senza mappa,
prova a chiedere la posizione all'inserzionista
prova a chiedere la posizione all'inserzionista
Calcolo mutuo
Prezzo di vendita:
Anticipo
20,00
Mutuo
80,00
Tasso: -+
Rata: 615 al mese
I risultati sono una stima indicativa basata sui dati inseriti e non costituiscono un’offerta finanziaria.
Inserzionista
Chiama
CONTATTA


