Appartamento Via Rossaghe 30, Lumezzane
€ 129.000
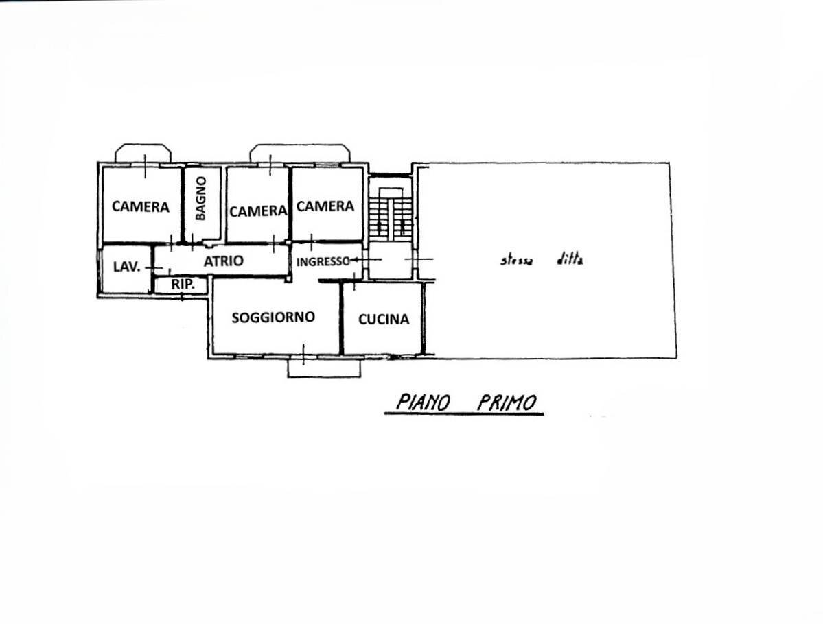
PENTALOCALE LUMINOSO CON AMPIA SOFFITTA FINESTRATA LUMEZZANE In contesto tranquillo di sole sei unità, proponiamo in vendita ricercato pentalocale che si distingue per la reale ampiezza degli ambienti, sempre più rari da trovare oggi. Lappartamento, posto al primo piano, si sviluppa a partire da un generoso ingresso che accompagna alla zona giorno, dove troviamo un soggiorno di dimensioni importanti, valorizzato dalla doppia e luminosa vetrata esposta a sud e dotato di balcone, suddiviso in una zona soggiorno e una zona da pranzo ben definite allinterno dello stesso ambiente. La cucina è separata e abitabile, comoda per lutilizzo quotidiano, anche quest'ultima doppiamente finestrata. La zona giorno è inoltre dotata di climatizzazione, per garantire comfort in ogni stagione. La zona notte si articola lungo un ampio disimpegno, comodamente attrezzabile con armadiature che collega ben tre camere matrimoniali tutte con balcone. Grazie alle generose metrature complessive, vi è la possibilità concreta e facilmente realizzabile di ricavare una quarta camera matrimoniale, adattando gli spazi alle proprie esigenze. Completano il piano un bagno finestrato con doccia, una spaziosa lavanderia e un pratico ripostiglio. Elemento distintivo della proprietà è la soffitta esclusiva, della stessa metratura dellappartamento sopra descritto, completamente finestrata lungo tutto il suo perimetro. Un ambiente di dimensioni difficilmente reperibili, oggi utilizzabile come spazio accessorio ma con caratteristiche che lo rendono particolarmente interessante per diversi utilizzi, da valutare in base alle proprie necessità. La posizione è comoda per la vita quotidiana: nelle immediate vicinanze si trovano scuole, fermate dei mezzi, negozi, supermercati e tutti i principali servizi, facilmente raggiungibili anche a piedi. Una soluzione ideale per chi è alla ricerca di ambienti ampi, versatili e in grado di adattarsi nel tempo a esigenze abitative in evoluzione. Si informa la gentile clientela che l'indirizzo è indicativo, l'ubicazione motivi di privacy serve solo per identificare la zona del paese. Per maggiori info e appuntamenti: IMMOBILIARE VIVA CASA Tel. 0306377606
Dati principali
| Riferimento | VPL578 |
| Data annuncio | 25/04/2026 |
| Contratto | Vendita |
| Tipologia | Appartamento |
| Superficie | 160 m2 |
| Locali | 5 (4 camere da letto, 1 altro), 1 bagno, cucina abitabile |
| Piano | 1 di 3 totali |
| Tipo di costruzione | Signorile |
| Occupato | Libero |
| Box auto | Assente |
| Arredamento | Assente |
Caratteristiche
Costi
| Prezzo | 129.000 € |
| Prezzo al m2 | 806 €/m2 |
Efficienza energetica
| Stato | Ottimo |
| Riscaldamento | Semi-autonomo |
| Classe energetica | G |
| Indice di prestazione energetica (IPE) | 255 kWh/m2 anno |
Planimetrie
Indirizzo e mappa
Via Rossaghe
30, Lumezzane
Annuncio senza mappa,
prova a chiedere la posizione all'inserzionista
prova a chiedere la posizione all'inserzionista
Calcolo mutuo
Prezzo di vendita:
Anticipo
20,00
Mutuo
80,00
Tasso: -+
Rata: 369 al mese
I risultati sono una stima indicativa basata sui dati inseriti e non costituiscono un’offerta finanziaria.
Inserzionista
Chiama
CONTATTA


