Trilocale Via dei girasoli, Gatteo
€ 300.000Trilocale in vendita
GATTEO
Nel nuovo quartiere residenziale di Gatteo proponiamo appartamento di recente construzione fronte parco, in classe energetica 'A', con ingresso indipendente e giardino.
La soluzione si sviluppa su due livelli, entrando nella proprietà tramite cancello pedonale veniamo accolti dal giardino, da qui tramite una comoda scala accediamo al balcone dove troviamo l'ingresso principale.
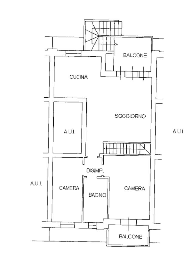
Una volta entrati ci ritroviamo nella luminosa e ampia zona giorno composta da soggiorno e cucina abitabile.
Tramite il disimpegno passiamo alla zona notte dove abbiamo due camere da letto, di cui una servita da balcone, un bagno dalle generose metrature finestrato con box doccia.
Attraverso una scala interna accediamo al piano terra, qui abbiamo una comoda taverna con attacchi per una seconda cucina. L'ambiente affaccia direttamente sul portico perfetto per pranzi e cene all'aria aperta, serve il piano anche un bagno con box doccia.
Collegato internamente alla taverna abbiamo il garage.
La soluzione è dotata di pannelli fotovoltaici da 3kwatt e grazie all'ottima classe energetica godi un'elevata efficienza e risparmio.
Se stai cercando una soluzione indipendente, di recente costruzione e in quartiere residenziale tranquillo e ben servito, questa potrebbe essere la casa giusta per te!
Per maggiori informazioni non esitare a contattarci allo 0541.932794 o al 348.8876115!
Nel nuovo quartiere residenziale di Gatteo proponiamo appartamento di recente construzione fronte parco, in classe energetica 'A', con ingresso indipendente e giardino.
La soluzione si sviluppa su due livelli, entrando nella proprietà tramite cancello pedonale veniamo accolti dal giardino, da qui tramite una comoda scala accediamo al balcone dove troviamo l'ingresso principale.
Una volta entrati ci ritroviamo nella luminosa e ampia zona giorno composta da soggiorno e cucina abitabile.
Tramite il disimpegno passiamo alla zona notte dove abbiamo due camere da letto, di cui una servita da balcone, un bagno dalle generose metrature finestrato con box doccia.
Attraverso una scala interna accediamo al piano terra, qui abbiamo una comoda taverna con attacchi per una seconda cucina. L'ambiente affaccia direttamente sul portico perfetto per pranzi e cene all'aria aperta, serve il piano anche un bagno con box doccia.
Collegato internamente alla taverna abbiamo il garage.
La soluzione è dotata di pannelli fotovoltaici da 3kwatt e grazie all'ottima classe energetica godi un'elevata efficienza e risparmio.
Se stai cercando una soluzione indipendente, di recente costruzione e in quartiere residenziale tranquillo e ben servito, questa potrebbe essere la casa giusta per te!
Per maggiori informazioni non esitare a contattarci allo 0541.932794 o al 348.8876115!
Dati principali
| Riferimento | 61212064 |
| Data annuncio | 24/04/2026 |
| Contratto | Vendita |
| Tipologia | Appartamento |
| Superficie | 103 m2 |
| Locali | 3 (3 altro), 2 bagni |
| Piano | 3 totali |
Costi
| Prezzo | 300.000 € |
| Prezzo al m2 | 2.913 €/m2 |
Efficienza energetica
| Anno costruzione | 2013 |
| Riscaldamento | Autonomo |
| Classe energetica | A1 |
Planimetrie
Indirizzo e mappa
Via dei girasoli, Gatteo
Calcolo mutuo
Prezzo di vendita:
Anticipo
20,00
Mutuo
80,00
Tasso: -+
Rata: 858 al mese
I risultati sono una stima indicativa basata sui dati inseriti e non costituiscono un’offerta finanziaria.
Inserzionista
Chiama
CONTATTA

