Appartamento Via paradiso, Genova (zona Cornigliano)
€ 65.000Quadrilocale in vendita
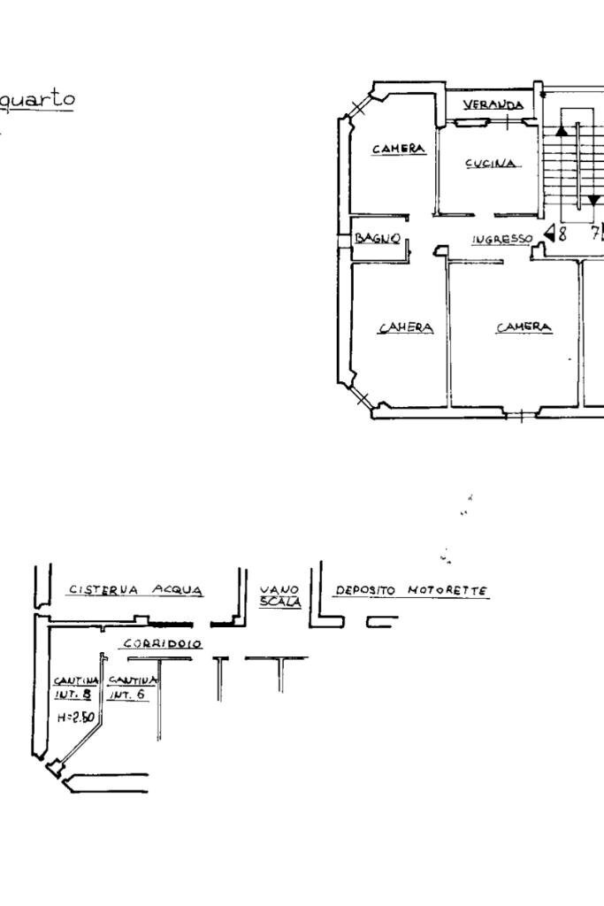
Nella parte alta di Coronata a Genova, si trova un appartamento di 115 mq situato in un piano alto di una palazzina recentemente ristrutturata, con facciate e tetto nuovi. L'immobile offre una vista aperta e una luminosità che pervade ogni ambiente. La disposizione interna comprende due camere da letto, una sala accogliente e una cucina con balcone verandato, ideale per momenti di relax. Il riscaldamento autonomo garantisce comfort in ogni stagione. Situato in Via Paradiso, l'appartamento beneficia di posti auto condominiali, una comodità rara nella zona. Completa la proprietà una cantina, utile per lo stoccaggio. Questa soluzione abitativa rappresenta un'opportunità interessante per chi cerca un'abitazione spaziosa e ben collegata, in un contesto urbano vivace e ricco di servizi.
Dati principali
| Riferimento | 61210157 |
| Data annuncio | 24/04/2026 |
| Contratto | Vendita |
| Tipologia | Appartamento |
| Superficie | 115 m2 |
| Locali | 5 (5 altro), 1 bagno |
| Piano | 4 di 4 totali |
| Numero posti auto | 1 |
Costi
| Prezzo | 65.000 € |
| Prezzo al m2 | 565 €/m2 |
| Spese condominiali | € 58,00/mese |
Efficienza energetica
| Anno costruzione | 1960 |
| Riscaldamento | Autonomo |
| Tipo Alimentazione Riscaldamento | Metano |
| Classe energetica | F |
| Indice di prestazione energetica (IPE) | - |
Planimetrie
Video
Indirizzo e mappa
Via paradiso, Genova - quartiere Cornigliano
Calcolo mutuo
Prezzo di vendita:
Anticipo
20,00
Mutuo
80,00
Tasso: -+
Rata: 186 al mese
I risultati sono una stima indicativa basata sui dati inseriti e non costituiscono un’offerta finanziaria.
Inserzionista
Chiama
CONTATTA

