Trilocale Via Ortica, Milano (zona Ortica)
€ 450.000Trilocale in vendita
Nel cuore autentico di Via Ortica, uno dei quartieri più vivaci e in trasformazione di Milano, dove storia industriale e creatività contemporanea si incontrano tra murales iconici, botteghe di quartiere e locali dal sapore unico, proponiamo una soluzione abitativa che unisce carattere e comfort.
All’interno di una tranquilla mini palazzina dei primi anni ’90, questo appartamento su due livelli, posto al 3° e 4° piano, accoglie con spazi ampi e luminosi pensati per essere vissuti.
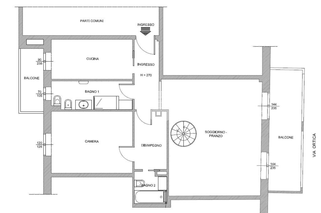
L’ingresso si apre su un elegante soggiorno doppio, ideale per momenti di convivialità o relax, impreziosito dall’affaccio su una grande loggia: uno spazio prezioso dove godersi un caffè al mattino o una serata all’aperto. La cucina abitabile invita a vivere la casa in modo autentico e quotidiano, mentre la prima ampia camera e i doppi servizi – uno finestrato con doccia e uno con vasca – garantiscono praticità e comfort.
Salendo al piano superiore si viene accolti da una spaziosa camera matrimoniale, un ambiente intimo e riservato, completato da un comodo bagno di servizio/lavanderia.
La proprietà è completata da una cantina e dalla possibilità di un box nello stabile (€ 35.000), un valore aggiunto importante in zona.
Le ottime finiture, la distribuzione su due livelli e la posizione in un quartiere dinamico e sempre più ricercato rendono questa casa una soluzione ideale per chi cerca qualcosa di unico, capace di raccontare una storia e offrire qualità della vita.
Non perdere questa occasione unica! Prenota subito una visita inviando un messaggio WhatsApp al numero: 344.1530629 o chiamando direttamente al 02.84961200.
Le immagini e la descrizione dell’immobile presenti sul sito web sono puramente indicative e non costituiscono elemento contrattuale.
All’interno di una tranquilla mini palazzina dei primi anni ’90, questo appartamento su due livelli, posto al 3° e 4° piano, accoglie con spazi ampi e luminosi pensati per essere vissuti.
L’ingresso si apre su un elegante soggiorno doppio, ideale per momenti di convivialità o relax, impreziosito dall’affaccio su una grande loggia: uno spazio prezioso dove godersi un caffè al mattino o una serata all’aperto. La cucina abitabile invita a vivere la casa in modo autentico e quotidiano, mentre la prima ampia camera e i doppi servizi – uno finestrato con doccia e uno con vasca – garantiscono praticità e comfort.
Salendo al piano superiore si viene accolti da una spaziosa camera matrimoniale, un ambiente intimo e riservato, completato da un comodo bagno di servizio/lavanderia.
La proprietà è completata da una cantina e dalla possibilità di un box nello stabile (€ 35.000), un valore aggiunto importante in zona.
Le ottime finiture, la distribuzione su due livelli e la posizione in un quartiere dinamico e sempre più ricercato rendono questa casa una soluzione ideale per chi cerca qualcosa di unico, capace di raccontare una storia e offrire qualità della vita.
Non perdere questa occasione unica! Prenota subito una visita inviando un messaggio WhatsApp al numero: 344.1530629 o chiamando direttamente al 02.84961200.
Le immagini e la descrizione dell’immobile presenti sul sito web sono puramente indicative e non costituiscono elemento contrattuale.
Dati principali
| Riferimento | 61211483 |
| Data annuncio | 24/04/2026 |
| Contratto | Vendita |
| Tipologia | Appartamento |
| Superficie | 102 m2 |
| Locali | 3 (3 altro), 2 bagni |
| Piano | 3 di 4 totali |
Costi
| Prezzo | 450.000 € |
| Prezzo al m2 | 4.412 €/m2 |
| Spese condominiali | € 146,00/mese |
Efficienza energetica
| Anno costruzione | 1990 |
| Riscaldamento | Autonomo |
| Tipo Alimentazione Riscaldamento | Altro |
| Classe energetica | F |
| Indice di prestazione energetica (EP GL, REN) | 247.96 kWh/m3 anno |
| Indice di prestazione energetica (EP GL, NREN) | 247.96 kWh/m3 anno |
Planimetrie
Indirizzo e mappa
Via Ortica, Milano - quartiere Ortica
Calcolo mutuo
Prezzo di vendita:
Anticipo
20,00
Mutuo
80,00
Tasso: -+
Rata: 1.287 al mese
I risultati sono una stima indicativa basata sui dati inseriti e non costituiscono un’offerta finanziaria.
Inserzionista
Chiama
CONTATTA

