Attico via Caudana, 38, Castiglione Torinese
€ 165.000Ampio Attico con terrazzo coperto
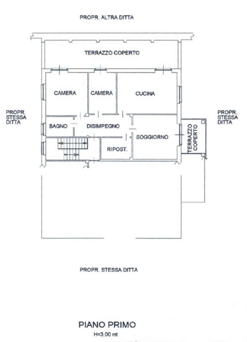
A Castiglione Torinese, in centro, in posizione comoda ai principali servizi, immersa nel verde e lontana da inquinamento acustico, proponiamo in vendita Attico in villa quadrifamiliare. L’immobile si apre su un funzionale disimpegno che distribuisce in modo armonioso tutti gli ambienti della casa. La zona giorno è composta da un ampio salone reso estremamente luminoso con vetrata scorrevole comunicante con il grande terrazzo coperto, ideale per essere vissuto in ogni stagione, e da una comoda cucina abitabile, anch'essa con accesso al terrazzo. La zona notte è composta da due camere da letto matrimoniali, una con affaccio sul terrazzo coperto e la seconda dotata di accesso ad un ulteriore terrazzino, sempre coperto. Completano l'appartamento il comodo bagno con doccia e uno spazioso ripostiglio. Al piano seminterrato, una pratica cantina e all'interno del cortile comune, due posti auto. Box auto singolo a parte al prezzo di € 15.000. La villa è circondata da un ampio giardino comune, arricchito da zona barbecue e pergolato, perfetto per godere di momenti all’aperto in un contesto tranquillo e curato. Soluzione ideale per famiglie o per chi cerca spazi generosi in un contesto riservato ma ben collegato, con bassissimi costi di gestione condominiale. Possibilità di acquistare anche l'appartamento confinante e realizzare un'unica unità sul piano. Per info e appuntamento potete contattarci tel. 0119602644 o inviare mail a [email protected]. La Corten&Grey Immobiliare si propone come consulente ideale per chi vuole offrire o cercare un immobile, segue il cliente in ogni fase offrendo servizio di intermediazione per acquisizione, vendita o locazione; consulenza tecnico legale, assistenza alla gestione dei mutui, consulenza di architetti, ingegneri, professionisti per la ristrutturazione o l'arredamento servizio di pratiche amministrative edilizie.
Dati principali
| Riferimento | ID3032446 |
| Data annuncio | 22/04/2026 |
| Contratto | Vendita |
| Tipologia | Attico |
| Superficie | 129 m2 |
| Locali | 4 (2 camere da letto, 2 altro), 1 bagno, cucina abitabile |
| Piano | 1 di 2 totali |
| Tipo di costruzione | Civile |
| Numero di terrazzi | 2 |
| Box auto | Singolo |
| Numero posti auto | 2 |
| Arredamento | Assente |
Caratteristiche
Costi
| Prezzo | 165.000 € |
| Prezzo al m2 | 1.279 €/m2 |
Efficienza energetica
| Stato | Buono |
| Riscaldamento | Autonomo |
| Tipo Alimentazione Riscaldamento | Metano |
| Classe energetica | Immobile esente da certificazione energetica |
Planimetrie
Indirizzo e mappa
via Caudana, 38, Castiglione Torinese
Calcolo mutuo
Prezzo di vendita:
Anticipo
20,00
Mutuo
80,00
Tasso: -+
Rata: 472 al mese
I risultati sono una stima indicativa basata sui dati inseriti e non costituiscono un’offerta finanziaria.
Inserzionista

CORTEN & GREY S.A.S.
Via Torino 269, Castiglione Torinese
Mostra Telefono
Chiama
CONTATTA

