Rustico San Niceta, Melendugno
€ 1.800.000
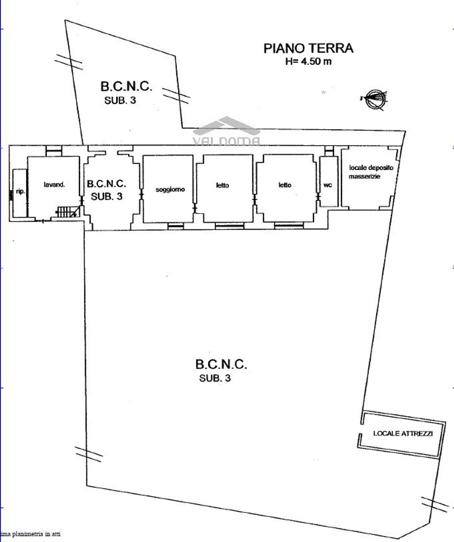
Valdoma Immobiliare propone in esclusiva, nel cuore del Salento, a soli 3 km dal porto turistico di San Foca, una masseria autentica con volte a stella, immersa nel silenzio e nella luce della campagna. Qui la terra respira. La proprietà si estende per circa 20 ettari, abbracciati da 2 km di muretto a secco con rete superiore. Un confine solido, che custodisce privacy e bellezza. Il corpo centrale risale al XIV secolo. È stato reso abitabile nel 2014, rispettando l'anima originaria. Gli ambienti si dispongono a L: 10 vani ampi, volte alte fino a 4,5 metri, due bagni, per circa 358 mq coperti. Gli impianti elettrico, idraulico e di riscaldamento sono funzionanti. Il lastricato solare è in perfetto stato. Accanto alla masseria, un capannone di 300 mq con altezze fino a 6,5 metri. Spazio ideale per attività agricole, deposito o nuovi progetti. La terra è già produttiva: 3.500 ulivi Leccino reimpiantati nel 2023, ficheto e seminativo. All'esterno, un giardino di 800 mq con irrigazione automatica accoglie la casa. Tra gli angoli più suggestivi si trovano antiche arnie in tufo, presenza tipica delle masserie più antiche, memoria viva di un tempo in cui ogni angolo aveva una funzione. Completano la proprietà un frutteto di 3.000 mq e un'area di 1.500 mq con strutture per quattro serre, già dotate di impianti idrici ed elettrici. La masseria è autonoma: energia elettrica da rete, pozzo artesiano certificato, riscaldamento con caldaia a policombustibile con radiatori. Possibilità di installare serbatoio GPL. Tre cancelli scorrevoli garantiscono accessi distinti e riservatezza. All'interno, tre strade asfaltate rendono ogni spostamento semplice. Si raggiunge con facilità: 45 minuti dall'aeroporto di Aeroporto di Brindisi, 15 km dalla stazione ferroviaria di Lecce. Non è solo una proprietà. È un luogo con radici profonde. È terra, luce, silenzio. Perfetta per chi sogna una residenza privata di charme o una struttura turistico-ricettiva di livello. Una visita basta per capire cosa può diventare. Chiama ora per dare vita al tuo nuovo sogno!
Dati principali
| Riferimento | MLD232703 |
| Data annuncio | 24/04/2026 |
| Contratto | Vendita |
| Tipologia | Rustico |
| Superficie | 200000 m2 |
| Locali | più di 5 (3 camere da letto, 14 altro), 3 bagni, cucina abitabile |
| Piano | 1 totali |
| Box auto | Singolo |
| Numero posti auto | 10 |
Caratteristiche
Costi
| Prezzo | 1.800.000 € |
| Prezzo al m2 | 9 €/m2 |
Efficienza energetica
| Stato | Discreto |
| Riscaldamento | Autonomo |
| Tipo Alimentazione Riscaldamento | Pellet |
| Classe energetica | E |
| Indice di prestazione energetica (IPE) | 126 kWh/m2 anno |
Planimetrie
Virtual tour
Indirizzo e mappa
San Niceta, Melendugno
Annuncio senza mappa,
prova a chiedere la posizione all'inserzionista
prova a chiedere la posizione all'inserzionista
Calcolo mutuo
Prezzo di vendita:
Anticipo
20,00
Mutuo
80,00
Tasso: -+
Rata: 5.148 al mese
I risultati sono una stima indicativa basata sui dati inseriti e non costituiscono un’offerta finanziaria.
Inserzionista

VALDOMA
VIA OTRANTO 42, Maglie
Mostra Telefono
Mostra Cellulare
Chiama
CONTATTA

