Quadrilocale Giovanni Verga 18, Cesano Maderno
€ 327.000
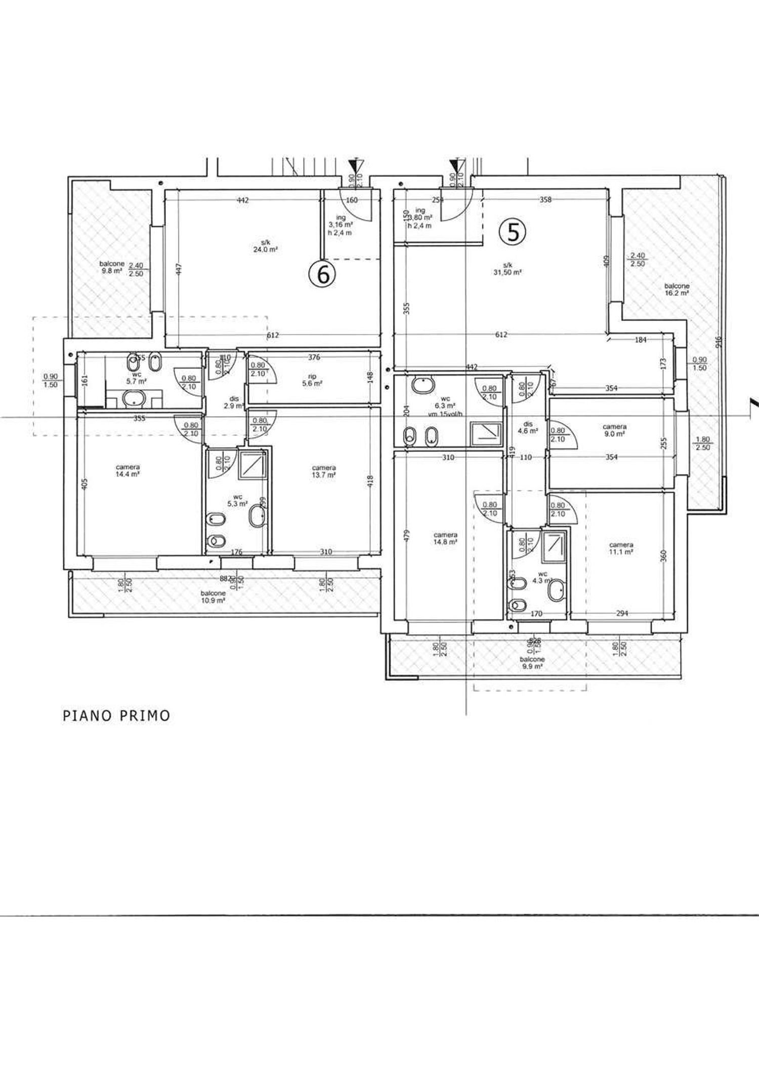
Residenza Chantal a Cesano Maderno (San Bernardo) - In corso di realizzazione, zona tranquilla e verde, servita dall'ingresso al parco del Grugnotorto. Comoda con le principali vie di comunicazione, la zona è fornita di tutti i servizi essenziali (asili, scuole, etc. ), attività commerciali e di ristorazione. Il progetto prevede la realizzazione di una palazzina composta da 12 appartamenti dotati di impianti autonomi ad alta efficienza energetica (Classe A4) con il massimo confort abitativo. Disponiamo di bilocali, trilocali e quadrilocali con terrazzi e giardini privati. Cantine. Box di varie metrature. Possibilità di personalizzazione interna e scelta delle finiture da ampio capitolato. L'edificio sarà caratterizzato da linee pulite e moderne e sarà dotati di spazi funzionali ed eleganti caratterizzati dall'impiego di materiali di alta qualità. L'utilizzo di tecnologie all'avanguardia, conferirà alla casa comfort ambientale, termico ed acustico. I consumi energetici saranno ridotti al minimo grazie a soluzioni ad alta efficienza. Appartamento n. 5 quadrilocale al piano primo di 102,8 mq. oltre 29 mq. di terrazzi composto da: ingresso, soggiorno con cucina a vista, 3 camere e 2 bagni, terrazzo e balcone Lo Studio Ca'Bella è l'ufficio vendita esclusivo della Residenza Chantal. Progettazione Studio Architetto Gatti. Se avete un'immobile da vendere o da affittare contattateci, Vi forniremo una VALUTAZIONE GRATUITA e vi illustreremo come potremmo aiutarVi, attraverso i nostri servizi, a vendere o affittare il Vostro immobile al miglior prezzo e nel minor tempo possibile. Rimani aggiornato sulle nostre offerte cliccando "MI PIACE" alla nostra pagina Facebook: Studio Ca'Bella Seguici su Instagram: studiocabella Da 40 anni camminiamo insieme nel mercato immobiliare per esaudire ogni sogno, ogni ideale di casa, promuovendo e offrendo servizi di consulenza ed intermediazione immobiliare per ogni esigenza: abitativa, commerciale, industriale. Studio Ca'Bella s. a. s. Via Ronzoni, 10 20811 Cesano Maderno (MB) Tel. 0362/508494.
Dati principali
| Riferimento | 01-Chantal app 5 |
| Data annuncio | 24/04/2026 |
| Contratto | Vendita |
| Tipologia | Appartamento |
| Superficie | 115 m2 |
| Locali | 4 (3 camere da letto, 1 altro), 2 bagni |
| Piano | 1 |
| Tipo di costruzione | Media |
| Occupato | Libero |
| Arredamento | Assente |
Caratteristiche
Costi
| Prezzo | 327.000 € |
| Prezzo al m2 | 2.843 €/m2 |
Efficienza energetica
| Stato | Ottimo |
| Riscaldamento | Autonomo |
| Tipo Impianto Di Riscaldamento | a pavimento |
| Tipo Alimentazione Riscaldamento | Fotovoltaico |
| Classe energetica | A4 |
Planimetrie
Indirizzo e mappa
Giovanni Verga
18, Cesano Maderno
Annuncio senza mappa,
prova a chiedere la posizione all'inserzionista
prova a chiedere la posizione all'inserzionista
Calcolo mutuo
Prezzo di vendita:
Anticipo
20,00
Mutuo
80,00
Tasso: -+
Rata: 935 al mese
I risultati sono una stima indicativa basata sui dati inseriti e non costituiscono un’offerta finanziaria.
Inserzionista

Studio Ca Bella srl
via giuseppe ronzoni 10, Cesano Maderno
Mostra Telefono
Mostra Cellulare
Chiama
CONTATTA

