Negozio Via XX Settembre 13, San Nicola la Strada
€ 400.000
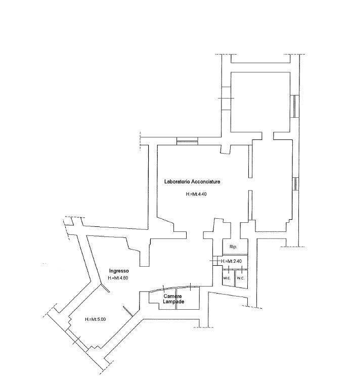
Ampio locale commerciale in zona centrale vendita Nel pieno centro di San Nicola la Strada, precisamente in Via XX Settembre, proponiamo in vendita locale commerciale al piano terra di circa 280 mq. La soluzione, caratterizzata da una posizione strategica e ad elevata visibilità, si sviluppa in un ampio ingresso e quattro spaziosi vani, facilmente modulabili in base alle esigenze dellattività. Completano limmobile due bagni e un pratico ripostiglio. La generosa metratura e la versatilità degli ambienti rendono il locale ideale per molteplici destinazioni commerciali, studi professionali o attività di rappresentanza. Ottima opportunità per chi desidera investire o avviare la propria attività in una delle zone più centrali e servite della città.
Dati principali
| Riferimento | LCV14 |
| Data annuncio | 24/04/2026 |
| Contratto | Vendita |
| Tipologia | Negozio |
| Superficie | 280 m2 |
| Locali | 5 (5 altro), 2 bagni, cucina non presente |
| Piano | Terra, 1 totali |
| Occupato | Libero |
| Box auto | Assente |
| Arredamento | Assente |
Caratteristiche
Costi
| Prezzo | 400.000 € |
| Prezzo al m2 | 1.429 €/m2 |
Efficienza energetica
| Stato | Buono |
| Tipo Impianto Di Riscaldamento | ad aria |
| Tipo Alimentazione Riscaldamento | Elettrico |
| Classe energetica | G |
| Indice di prestazione energetica (IPE) | - |
Planimetrie
Indirizzo e mappa
Via XX Settembre
13, San Nicola la Strada
Annuncio senza mappa,
prova a chiedere la posizione all'inserzionista
prova a chiedere la posizione all'inserzionista
Calcolo mutuo
Prezzo di vendita:
Anticipo
20,00
Mutuo
80,00
Tasso: -+
Rata: 1.144 al mese
I risultati sono una stima indicativa basata sui dati inseriti e non costituiscono un’offerta finanziaria.
Inserzionista

L'immobiliare.com Caserta
Via Ferrarecce 129/133, Caserta
Mostra Telefono
Mostra Cellulare
Chiama
CONTATTA

