Casa semi indipendente Via Grandi, Olgiate Olona
€ 445.000
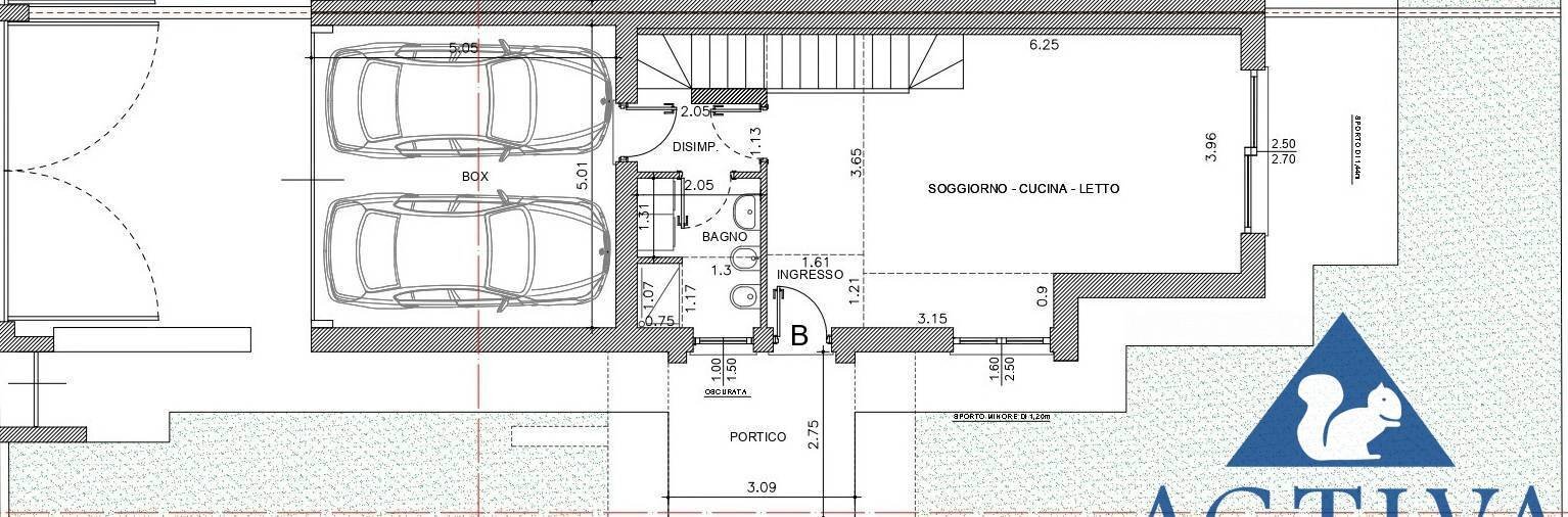
NUOVA COSTRUZIONE VILLE CENTRALI IN CLASSE A In una delle zone più richieste e verdi di Olgiate Olona, proponiamo in prossima realizzazione esclusive ville bifamiliari centrali con giardino privato di 135 mq, tre camere da letto e box doppio. Soluzioni moderne, ad alta efficienza energetica e completamente personalizzabili, introvabili oggi sul mercato locale. Un progetto pensato per chi desidera indipendenza, comfort e qualità della vita a pochi minuti da tutti i servizi principali. A Olgiate Olona, in via Grandi, zona Buon Gesù, nascerà un raffinato complesso di sole quattro porzioni di villa bifamiliare dal design contemporaneo, immerse in un contesto residenziale tranquillo, adiacente a parco pubblico e area verde boscata con percorso vita. La posizione è ideale per famiglie: scuole, asili, supermercati e negozi di vicinato sono comodamente raggiungibili, così come la stazione Nord di Castellanza e lingresso autostradale di Busto Arsizio, perfetti per chi si sposta verso Milano o Malpensa. Le due ville centrali, oggetto di questo annuncio, si sviluppano su due livelli perfettamente distribuiti. Al piano terra troviamo una luminosa zona giorno con soggiorno e cucina, studiata per offrire funzionalità e convivialità, oltre a un bagno di servizio e un elegante portico di 9 mq, perfetto per vivere momenti allaperto in totale privacy. Il giardino, disposto su tre lati, rappresenta uno spazio prezioso per famiglie con bambini o per chi ama la natura e la tranquillità. Al piano primo si sviluppa la zona notte con tre camere da letto, bagno, cabina armadio, terrazzo e balcone, ambienti progettati per garantire comfort e riservatezza. Completa la proprietà un comodo box doppio in larghezza collegato direttamente allabitazione. Le abitazioni saranno realizzate in classe energetica A, con soluzioni tecnologiche allavanguardia: cappotto ad alte prestazioni, riscaldamento a pavimento con pompa di calore, impianto fotovoltaico, serramenti di ultima generazione, tapparelle motorizzate e finiture di alto livello. Ogni dettaglio è pensato per garantire efficienza, risparmio energetico e benessere abitativo, con la possibilità di personalizzare gli interni secondo il proprio stile. Si tratta di unopportunità rara, con disponibilità limitata a sole due unità centrali: una soluzione perfetta per chi cerca una casa nuova, indipendente, immersa nel verde ma senza rinunciare alla comodità dei servizi. Contattaci oggi stesso per ricevere maggiori informazioni, visionare il progetto e prenotare la tua futura casa: scegliere ora significa garantirsi una soluzione unica e su misura.
Dati principali
| Riferimento | villagrandic |
| Data annuncio | 24/04/2026 |
| Contratto | Vendita |
| Tipologia | Casa semi indipendente |
| Superficie | 142 m2 |
| Locali | 4 (3 camere da letto, 1 altro), 2 bagni, cucina angolo cottura |
| Piano | Terra, 2 totali |
| Tipo di costruzione | Signorile |
| Arredamento | Assente |
Caratteristiche
Costi
| Prezzo | 445.000 € |
| Prezzo al m2 | 3.134 €/m2 |
Efficienza energetica
| Riscaldamento | Autonomo |
| Tipo Impianto Di Riscaldamento | a pavimento |
| Classe energetica | A2 |
Planimetrie
Indirizzo e mappa
Via Grandi, Olgiate Olona
Annuncio senza mappa,
prova a chiedere la posizione all'inserzionista
prova a chiedere la posizione all'inserzionista
Calcolo mutuo
Prezzo di vendita:
Anticipo
20,00
Mutuo
80,00
Tasso: -+
Rata: 1.273 al mese
I risultati sono una stima indicativa basata sui dati inseriti e non costituiscono un’offerta finanziaria.
Inserzionista

ACTIVA IMMOBILIARE
Busto Fagnano, Olgiate Olona
Mostra Telefono
Mostra Cellulare
Chiama
CONTATTA

