Bilocale via del remo, Ravenna (zona Punta Marina)
€ 105.000Bilocale in vendita
PUNTA MARINA- VIA DEL REMO
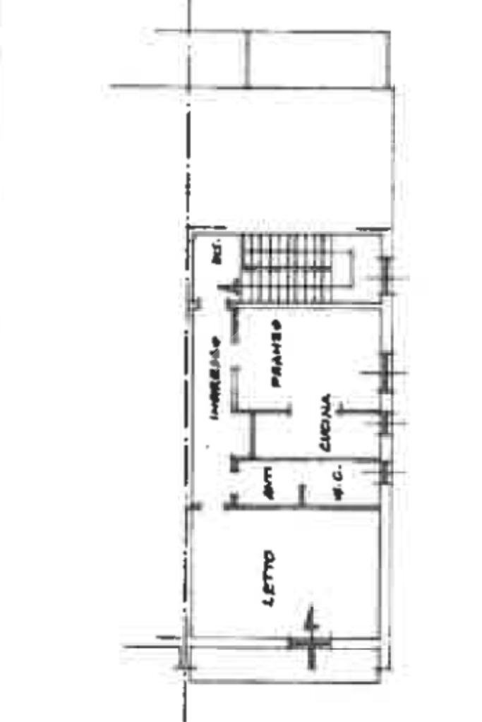
Proponiamo in vendita, in zona residenziale, appartamento al terzo piano senza ascensore.
L'immobile è composto da soggiorno con angolo cottura, antibagno e bagno finestrato e una camera matrimoniale ampia con balcone.
L'immobile dispone di impianti centralizzati, saranno a carico dell'acquirente i costi per la divisione.
No condominio
Proponiamo in vendita, in zona residenziale, appartamento al terzo piano senza ascensore.
L'immobile è composto da soggiorno con angolo cottura, antibagno e bagno finestrato e una camera matrimoniale ampia con balcone.
L'immobile dispone di impianti centralizzati, saranno a carico dell'acquirente i costi per la divisione.
No condominio
Dati principali
| Riferimento | 61210477 |
| Data annuncio | 23/04/2026 |
| Contratto | Vendita |
| Tipologia | Appartamento |
| Superficie | 63 m2 |
| Locali | 2 (2 altro), 1 bagno |
| Piano | 3 di 3 totali |
Costi
| Prezzo | 105.000 € |
| Prezzo al m2 | 1.667 €/m2 |
Efficienza energetica
| Anno costruzione | 1970 |
| Riscaldamento | Autonomo |
| Tipo Alimentazione Riscaldamento | Metano |
| Classe energetica | G |
| Indice di prestazione energetica (IPE) | - |
Planimetrie
Indirizzo e mappa
via del remo, Ravenna - quartiere Punta Marina
Calcolo mutuo
Prezzo di vendita:
Anticipo
20,00
Mutuo
80,00
Tasso: -+
Rata: 300 al mese
I risultati sono una stima indicativa basata sui dati inseriti e non costituiscono un’offerta finanziaria.
Inserzionista
Chiama
CONTATTA

