Villa via cavatorti, Campegine
€ 500.000Bifamiliare in vendita
CAMPEGINE - Immersa nella quiete e nella riservatezza di un contesto esclusivo, proponiamo in vendita una prestigiosa villa indipendente dei primi anni 2000, dove comfort contemporaneo e ampi spazi si fondono in un equilibrio perfetto.
Circondata da un’elegante area cortiliva privata di circa 1.000 mq, la proprietà si distingue per la sua architettura armoniosa e per la presenza di due unità abitative indipendenti, pensate per offrire massima versatilità e privacy.
Residenza principale:
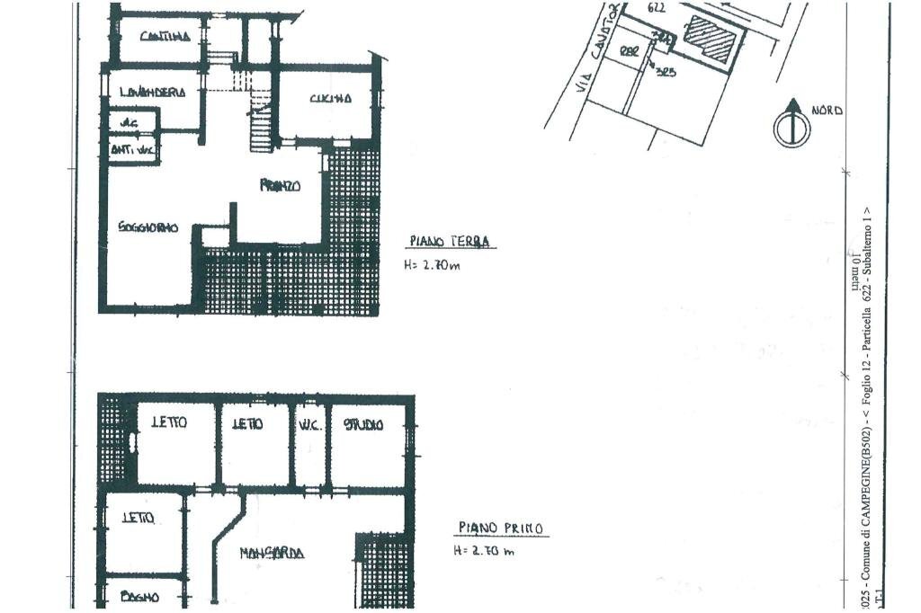
Distribuita su due livelli, accoglie con un importante soggiorno arricchito da camino, ambiente caldo e scenografico, affiancato da una raffinata sala da pranzo e da una spaziosa cucina abitabile. Gli ambienti di servizio – cantina, lavanderia e bagno – completano il piano terra con funzionalità ed eleganza.
Al piano superiore, un luminoso studio con accesso al terrazzo introduce la zona notte, composta da tre camere matrimoniali, di cui una con balcone privato, e due bagni dal design ricercato.
Seconda unità abitativa:
Situata al piano terra, rappresenta una soluzione indipendente perfetta per ospiti o familiari, composta da soggiorno, cucina con ripostiglio, camera da letto, bagno e lavanderia.
La proprietà è impreziosita da tecnologie e finiture di alto livello:
riscaldamento a pavimento, climatizzazione, inferriate e zanzariere, depuratore, oltre a garage singolo e garage doppio.
Classe energetica: C
Un’abitazione pensata per chi desidera vivere in un ambiente esclusivo, dove ogni dettaglio è studiato per garantire benessere, privacy e qualità della vita.
PER MAGGIORI INFORMAZIONI O FISSARE UN APPUNTAMENTO CHIAMACI AL 333/8467798 O AL 329/5414446 OPPURE MANDACI UNA MAIL ALL'INDIRIZZO: rehna@tecnocasa .it
Circondata da un’elegante area cortiliva privata di circa 1.000 mq, la proprietà si distingue per la sua architettura armoniosa e per la presenza di due unità abitative indipendenti, pensate per offrire massima versatilità e privacy.
Residenza principale:
Distribuita su due livelli, accoglie con un importante soggiorno arricchito da camino, ambiente caldo e scenografico, affiancato da una raffinata sala da pranzo e da una spaziosa cucina abitabile. Gli ambienti di servizio – cantina, lavanderia e bagno – completano il piano terra con funzionalità ed eleganza.
Al piano superiore, un luminoso studio con accesso al terrazzo introduce la zona notte, composta da tre camere matrimoniali, di cui una con balcone privato, e due bagni dal design ricercato.
Seconda unità abitativa:
Situata al piano terra, rappresenta una soluzione indipendente perfetta per ospiti o familiari, composta da soggiorno, cucina con ripostiglio, camera da letto, bagno e lavanderia.
La proprietà è impreziosita da tecnologie e finiture di alto livello:
riscaldamento a pavimento, climatizzazione, inferriate e zanzariere, depuratore, oltre a garage singolo e garage doppio.
Classe energetica: C
Un’abitazione pensata per chi desidera vivere in un ambiente esclusivo, dove ogni dettaglio è studiato per garantire benessere, privacy e qualità della vita.
PER MAGGIORI INFORMAZIONI O FISSARE UN APPUNTAMENTO CHIAMACI AL 333/8467798 O AL 329/5414446 OPPURE MANDACI UNA MAIL ALL'INDIRIZZO: rehna@tecnocasa .it
Dati principali
| Riferimento | 61210448 |
| Data annuncio | 23/04/2026 |
| Contratto | Vendita |
| Tipologia | Villa |
| Superficie | 438 m2 |
| Locali | più di 5 (8 altro), 6 bagni |
| Piano | 2 totali |
Costi
| Prezzo | 500.000 € |
| Prezzo al m2 | 1.142 €/m2 |
Efficienza energetica
| Anno costruzione | 2000 |
| Riscaldamento | Autonomo |
| Classe energetica | C |
| Indice di prestazione energetica (EP GL, NREN) | 116.65 kWh/m3 anno |
Planimetrie
Indirizzo e mappa
via cavatorti, Campegine
Calcolo mutuo
Prezzo di vendita:
Anticipo
20,00
Mutuo
80,00
Tasso: -+
Rata: 1.430 al mese
I risultati sono una stima indicativa basata sui dati inseriti e non costituiscono un’offerta finanziaria.
Inserzionista
Chiama
CONTATTA

