Trilocale Via Partanna, Roma
€ 169.000Appartamento - Trilocale a Due Leoni, Roma
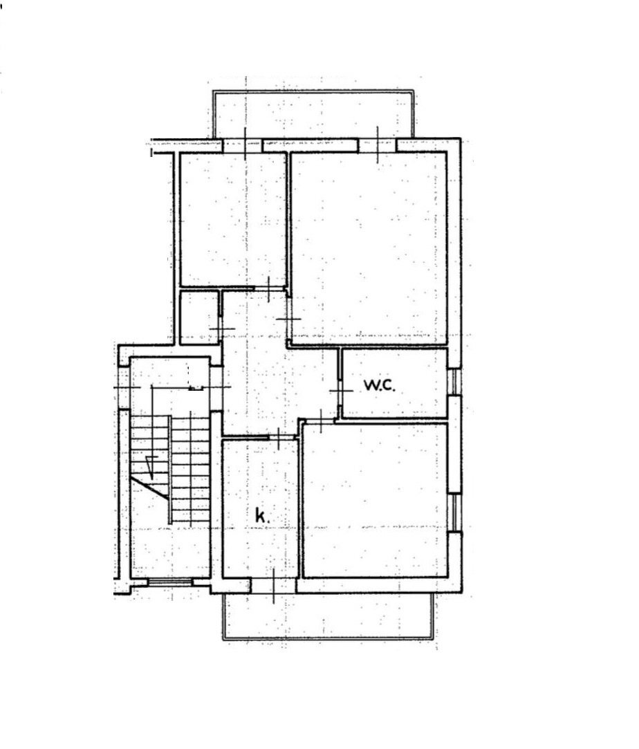
DIMENSIONECASA GOLD | 06.2261999 | [email protected] L'agenzia immobiliare DIMENSIONECASA GOLD propone in vendita in zona Due Leoni, un trilocale sito al piano secondo, in uno stabile esternamente rifinito in cortina, composto da: salone, cucina, disimpegno, una camera da letto, una cameretta , un ripostiglio ed un bagno con vasca e finestra. Completano la proprietà due balconi ed una cantina. Termoautonomo, dotato di serrande. Ottima posizione, situato in una posizione strategica, a circa 1 km dalla fermata Metro C Due Leoni . Vicina al GRA, scuole e attività commerciali, dei servizi di trasporto e servizi di prima necessità. L’immobile è attualmente locato fino al 30 Maggio 2027, risultando ideale per investitori o per chi non ha necessità immediata di utilizzo. Per maggiori info contattateci ai seguenti numeri: 06.2261999 - 3884627678 (anche tramite WhatsApp) *Le presenti informazioni e planimetrie sono meramente indicative e non costituiscono vincolo contrattuale.
Dati principali
| Riferimento | dueleoni169 |
| Data annuncio | 21/04/2026 |
| Contratto | Vendita |
| Tipologia | Appartamento |
| Superficie | 80 m2 |
| Locali | 3 (2 camere da letto, 1 altro), 1 bagno |
| Piano | 1 totali |
| Numero di balconi | 1 |
Caratteristiche
Costi
| Prezzo | 169.000 € |
| Prezzo al m2 | 2.113 €/m2 |
Efficienza energetica
| Classe energetica | In fase di calcolo |
Planimetrie
Indirizzo e mappa
Via Partanna, Roma
Calcolo mutuo
Prezzo di vendita:
Anticipo
20,00
Mutuo
80,00
Tasso: -+
Rata: 483 al mese
I risultati sono una stima indicativa basata sui dati inseriti e non costituiscono un’offerta finanziaria.
Inserzionista

Dimensionecasa Gold
Via Fosso Dell'Osa 399, Roma
Mostra Telefono
Chiama
CONTATTA

