Altro via Ludovico Ariosto, Spongano
€ 290.000LOCALE DA RISTRUTTURARE CON ANNESSO TERRENO EDIFICABILE
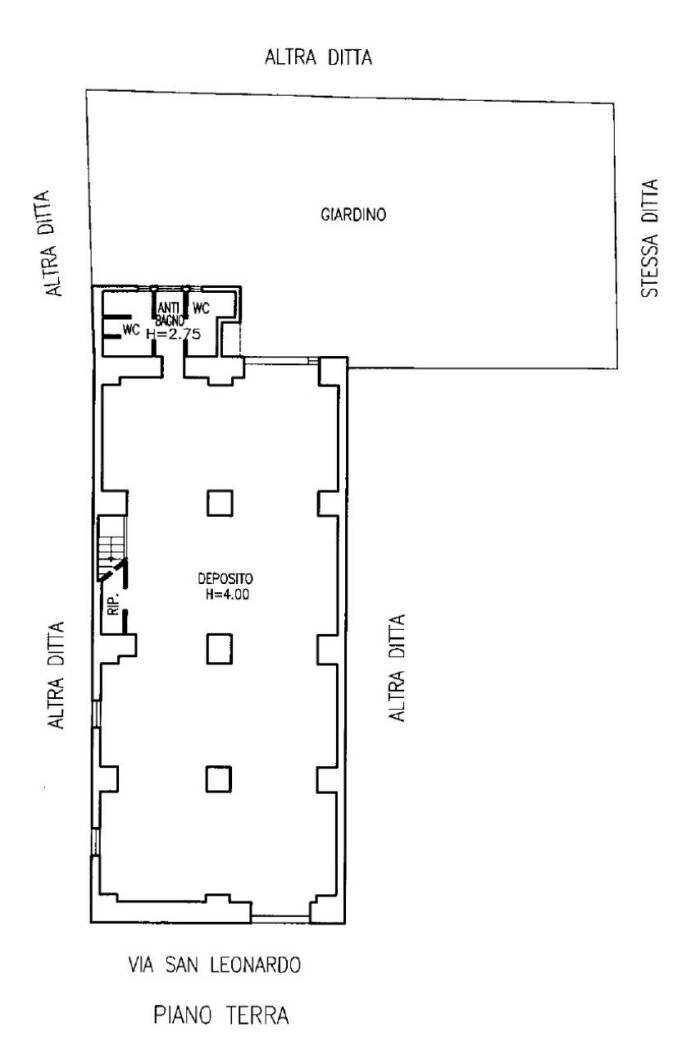
Situato nel tranquillo comune di Spongano, questo immobile si trova in Via Ludovico Ariosto, una zona che offre un contesto sereno e riservato. La posizione è ideale per chi cerca un ambiente lontano dal caos cittadino, pur rimanendo ben collegato alle principali vie di comunicazione. L'immobile è libero su quattro lati, garantendo così una buona luminosità e un'ottima ventilazione naturale. L'immobile, attualmente classificato come magazzino, offre ampi spazi da personalizzare secondo le proprie esigenze infatti è potenzialmente idoneo a molteplici usi sia di tipo ricettivo, commerciale o industriale. L'immobile si sviluppa interamente al piano terra, la superficie utile del locale misura circa 277 mq. Al locale è annesso un corpo servizi comprendenti due wc completi di docce, indispensabili, nel caso di utilizzo del locale a destinazione produttiva, commerciale o altro. La proprietà comprende anche un terreno edificabile confinante dell'estensione di circa 250 mq, utilizzabile per ampliare la struttura esistente o crearne una nuova. Ulteriori dettagli includono la presenza di posti auto, un vantaggio significativo per chi necessita di spazio per veicoli o per ospiti. L'immobile non è arredato, permettendo di arredarlo secondo il proprio stile personale. Non è presente un sistema di riscaldamento né un climatizzatore, aspetti che possono essere considerati durante la ristrutturazione per migliorare il comfort abitativo. L'accesso per disabili è garantito, rendendo l'immobile adatto a tutte le esigenze di mobilità. Questo immobile rappresenta un'opportunità unica per chi desidera investire in una proprietà da personalizzare in una zona tranquilla e ben servita. Punti di forza dell'immobile: - Ubicazione centrale rispetto a servizi e negozi cittadini. - Fabbricato potenzialmente adatto a molteplici destinazioni. - Disponibilità di terreno edificabile per eventuali ampliamenti. L'asilo per bambini più vicino è ASILO FULVIO BACILE (160 m). Parlando di scuole, l'immobile è vicino all'istituto E. DE AMICIS (310 m). Stai pensando di vendere o affittare il tuo locale commerciale? Con RockAgent puoi vendere o affittare il tuo immobile assicurandoti un servizio eccellente, garantito da agenti immobiliari selezionati supportati da un team tecnico, marketing e legale di altissimo livello. Visita il sito RockAgent.it e ottieni una valutazione gratuita del tuo immobile.
Dati principali
| Riferimento | 165332 - 20/04/2026 |
| Data annuncio | 26/02/2026 |
| Contratto | Vendita |
| Tipologia | Altro |
| Superficie | 277 m2 |
| Piano | 1 totali |
| Tipo di costruzione | Media |
| Uso immobile | Commerciale ed Industriale |
Costi
| Prezzo | 290.000 € |
| Prezzo al m2 | 1.047 €/m2 |
Efficienza energetica
| Anno costruzione | 1940 |
| Riscaldamento | Assente |
| Classe energetica | Immobile esente da certificazione energetica |
Planimetrie
Indirizzo e mappa
via Ludovico Ariosto, Spongano
Calcolo mutuo
Prezzo di vendita:
Anticipo
20,00
Mutuo
80,00
Tasso: -+
Rata: 829 al mese
I risultati sono una stima indicativa basata sui dati inseriti e non costituiscono un’offerta finanziaria.
Inserzionista

RockAgent
Via di Santa Costanza 21, Roma
Mostra Telefono
Chiama
CONTATTA

