Appartamento via Cicerone, Santa Marinella
€ 330.000NUOVA COSTRUZIONE TRILOCALE CON SPAZI ESTERNI
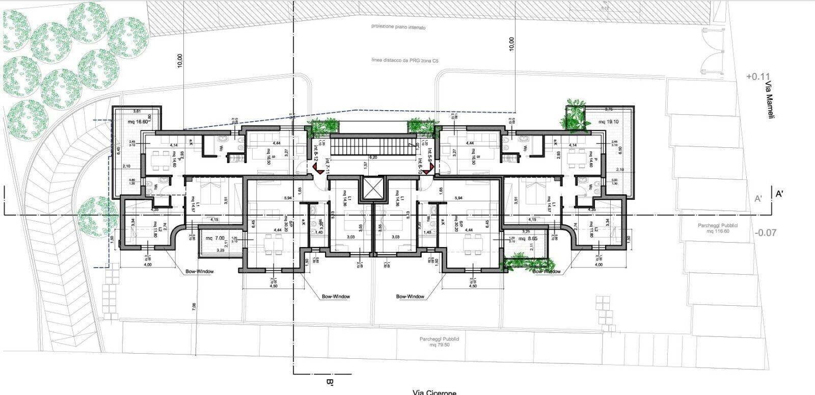
Situato nella tranquilla e affascinante cittadina di Santa Marinella, l'appartamento in vendita si trova in Via Cicerone, una zona che offre un perfetto equilibrio tra serenità e comodità. La posizione è ideale per chi desidera vivere in un contesto residenziale, lontano dal caos cittadino, ma con facile accesso ai servizi essenziali e alle principali vie di comunicazione. L'edificio, in fase di costruzione, si sviluppa su tre piani e l'appartamento è situato al piano secondo garantendo un accesso agevole anche per persone con disabilità. L'appartamento si estende su una superficie commerciale di circa 87 metri quadrati e offre un ambiente accogliente e ben progettato. La disposizione interna comprende due camere da letto, ideali per una famiglia o per chi desidera uno spazio aggiuntivo per ospiti o per un ufficio domestico. La cucina è abitabile, perfetta per chi ama cucinare e trascorrere del tempo in compagnia. Sono presenti due bagni, che offrono comfort e praticità per gli abitanti della casa. Un balcone di 17MQ completa la proprietà, offrendo uno spazio esterno dove rilassarsi . L'immobile è dotato di infissi esterni in doppio vetro e PVC, che garantiscono un ottimo isolamento termico e acustico. Il riscaldamento è autonomo e a pavimento, alimentato da una pompa di calore, assicurando un'efficienza energetica ottimale. L'appartamento è dotato di un impianto fotovoltaico di ultima generazione. La porta blindata offre un ulteriore livello di sicurezza. Inoltre, l'impianto di aria condizionata, che fornisce sia freddo che caldo, assicura un comfort abitativo durante tutto l'anno. Questo appartamento rappresenta un'opportunità unica per chi cerca una nuova casa moderna e funzionale in una delle località più affascinanti della costa laziale. POSSIBILITA' DI POSTI AUTO COPERTI E BOX NEL PIANO SEMINTERRATO Punti di forza dell'immobile: - luminoso - impianti di ultima generazione - ampi spazi esterni Gli asili per bambini nelle vicinanze dell'immobile sono SCUOLA MATERNA S. BENEDETTO (100 m), SCUOLA MATERNA S. TERESA DEL BAMBIN GESU' e altri 3 asili entro il raggio di 480 m. Inoltre, i servizi scolastici comprendono gli istituti: SCUOLA ELEM.PARIT. S.BENEDETTO (100 m), S.MARINELLA - PIRGUS e altre 3 scuole nel raggio di 440 m. È presente nelle vicinanze dell'immobile il servizio sanitario OSPEDALE (470 m). Stai pensando di vendere o affittare casa? Con RockAgent puoi vendere o affittare il tuo immobile assicurandoti un servizio eccellente, garantito da agenti immobiliari selezionati supportati da un team tecnico, marketing e legale di altissimo livello. Visita il sito RockAgent.it e ottieni una valutazione gratuita del tuo immobile.
Dati principali
| Riferimento | 162016 - 20/04/2026 |
| Data annuncio | 20/04/2026 |
| Contratto | Vendita |
| Tipologia | Appartamento |
| Superficie | 86 m2 |
| Locali | 3 (2 camere da letto, 1 altro), 2 bagni, cucina abitabile |
| Piano | 3 totali |
| Tipo di costruzione | Signorile |
| Arredamento | Completo |
Caratteristiche
Costi
| Prezzo | 330.000 € |
| Prezzo al m2 | 3.837 €/m2 |
| Spese condominiali | € 1,00/mese |
Efficienza energetica
| Anno costruzione | 2025 |
| Stato | Nuovo |
| Riscaldamento | Autonomo |
| Classe energetica | Immobile esente da certificazione energetica |
Planimetrie
Indirizzo e mappa
via Cicerone, Santa Marinella
Calcolo mutuo
Prezzo di vendita:
Anticipo
20,00
Mutuo
80,00
Tasso: -+
Rata: 944 al mese
I risultati sono una stima indicativa basata sui dati inseriti e non costituiscono un’offerta finanziaria.
Inserzionista

RockAgent
Via di Santa Costanza 21, Roma
Mostra Telefono
Chiama
CONTATTA

