Villa via Elio De Cupis, Sassari
€ 295.000VILLA INDIPENDENTE CON GIARDINO
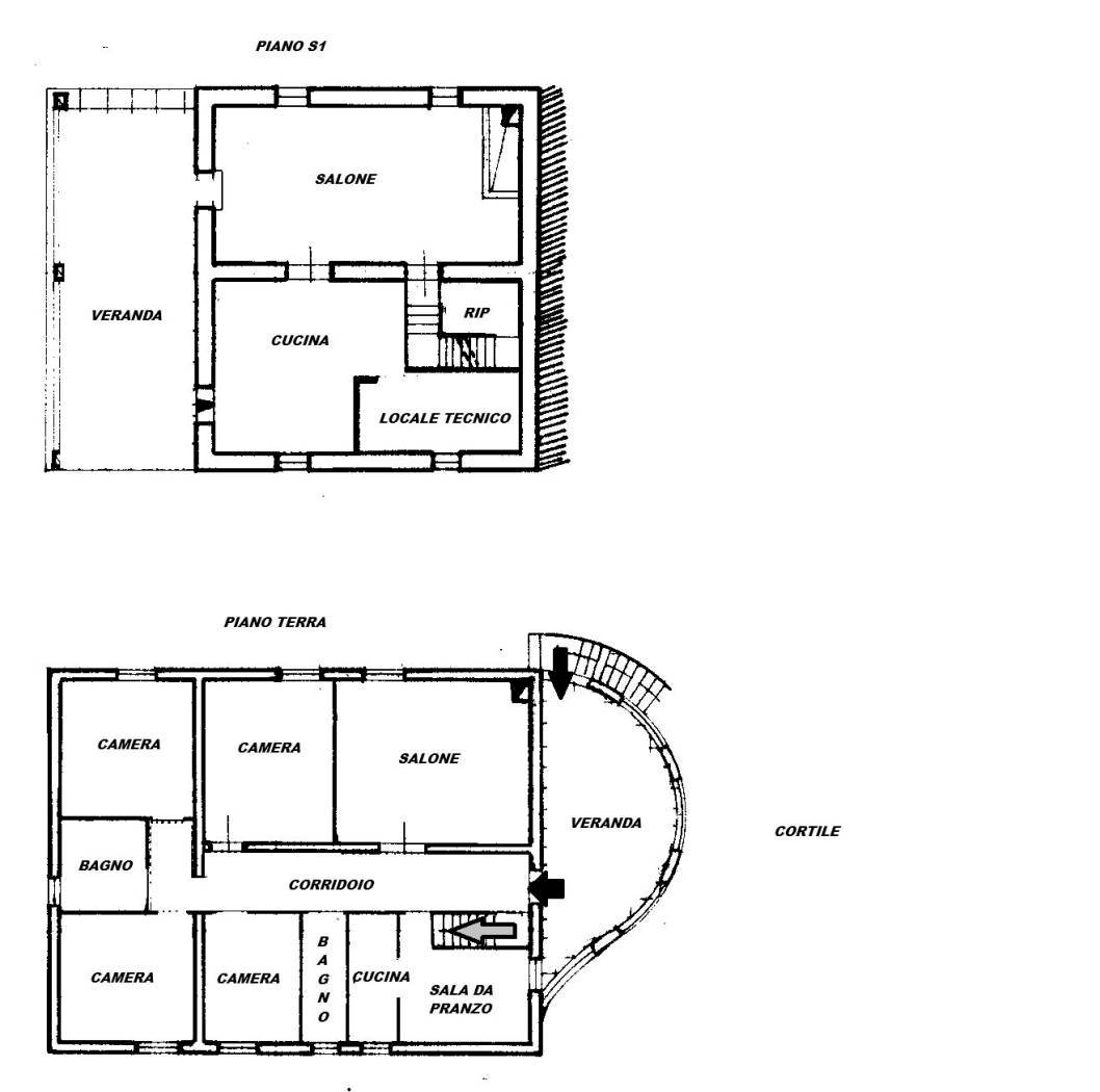
Via de Cupis, zona San Giovanni a Sassari, zona tranquilla e riservata, a pochi minuti dal centro cittadino e a tutti i servizi, proponiamo in vendita una villa indipendente di ampia metratura, circondata dal verde e da un’atmosfera di assoluta quiete. La proprietà si estende su una superficie complessiva di circa 343 mq distribuiti su due livelli, ed è circondata da un ampio terreno privato di circa 1.500 mq, perfetto per chi desidera vivere in uno spazio all’aperto da personalizzare secondo le proprie esigenze. L’accesso avviene tramite un cancello privato che si apre su un viale pavimentato, immerso nella vegetazione. Pochi gradini conducono alla veranda principale, spaziosa e vivibile, ideale per pranzi all’aperto o momenti di relax con vista sul giardino. Al piano principale che si sviluppa su unico livello, ci accoglie una zona giorno luminosa composta da una grande sala, un cucinotto e una comoda zona pranzo abitabile. La zona notte si compone di quattro camere matrimoniali e due bagni finestrati, entrambi completi e funzionali. Scendendo al piano seminterrato, accessibile sia tramite scala interna che da ingresso indipendente sul retro, troviamo ambienti spaziosi e ben organizzati: un' ampia veranda chiusa oggi adibita a zona relax con divani, una seconda ampia sala con camino e una cucina abitabile collegata. Completano il piano un locale caldaia e un comodo ripostiglio. Dal punto di vista impiantistico, la villa è dotata di riscaldamento autonomo tramite caldaia a biomassa (pellet) collegata ai radiatori, camino funzionante, pozzo privato per l’acqua e collegamento alla rete fognaria. Grazie alla sua posizione riservata e alla generosità degli spazi, questa soluzione è ideale per chi cerca indipendenza, tranquillità e la possibilità di vivere a contatto con la natura, senza allontanarsi dai servizi cittadini. Punti di forza dell'immobile: - indipendente - giardino - unico livello L'immobile è situato a pochi metri dalla stazione di S.GIOVANNI (90 m). Le linee autobus più vicine sono VIA DE CUPIS FR. CIVICO 32 (40 m), VIA BALDINCA CIVICO 28 e altre 6 fermate nel raggio di 490 m. Stai pensando di vendere o affittare casa? Con RockAgent puoi vendere o affittare il tuo immobile assicurandoti un servizio eccellente, garantito da agenti immobiliari selezionati supportati da un team tecnico, marketing e legale di altissimo livello. Visita il sito RockAgent.it e ottieni una valutazione gratuita del tuo immobile.
Dati principali
| Riferimento | 160910 - 20/04/2026 |
| Data annuncio | 03/03/2026 |
| Contratto | Vendita |
| Tipologia | Villa |
| Superficie | 343 m2 |
| Locali | più di 5 (4 camere da letto, 3 altro), 2 bagni, cucina abitabile |
| Piano | 1 totali |
| Tipo di costruzione | Signorile |
| Numero di terrazzi | 1 |
| Numero di balconi | 1 |
| Numero posti auto | 4 |
| Arredamento | Assente |
Caratteristiche
Costi
| Prezzo | 295.000 € |
| Prezzo al m2 | 860 €/m2 |
Efficienza energetica
| Anno costruzione | 1980 |
| Stato | Buono |
| Riscaldamento | Autonomo |
| Classe energetica | C |
| Indice di prestazione energetica (IPE) | 175 kWh/m2 anno |
Planimetrie
Indirizzo e mappa
via Elio De Cupis, Sassari
Calcolo mutuo
Prezzo di vendita:
Anticipo
20,00
Mutuo
80,00
Tasso: -+
Rata: 844 al mese
I risultati sono una stima indicativa basata sui dati inseriti e non costituiscono un’offerta finanziaria.
Inserzionista

RockAgent
Via di Santa Costanza 21, Roma
Mostra Telefono
Chiama
CONTATTA

