Quadrilocale via Cicerone, Santa Marinella
€ 351.000NUOVA COSTRUZIONE QUADRILOCALE CON SPAZI ESTERNI
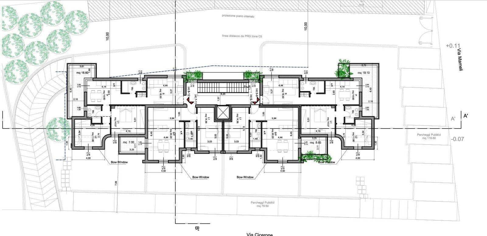
Situato nella tranquilla e affascinante cittadina di Santa Marinella, questo appartamento in vendita si trova in Via Cicerone, una zona residenziale che offre un ambiente sereno e ben collegato. La posizione è ideale per chi desidera vivere lontano dal caos cittadino, pur avendo a disposizione tutti i servizi essenziali nelle vicinanze. L'edificio, attualmente in costruzione, si sviluppa su tre piani e l'appartamento è situato al secondo piano, garantendo una vista piacevole e un ottima luminosità grazie alla triplice esposizione luminosità. L'appartamento si estende su una superficie commerciale di circa 88 metri quadrati e presenta una disposizione interna ben studiata per garantire comfort e funzionalità. L'ingresso si apre su un ampio soggiorno che conduce a una cucina abitabile, perfetta per chi ama cucinare e trascorrere del tempo in famiglia. La zona notte comprende due camere da letto spaziose, ideali per una famiglia o per chi desidera avere una stanza in più per gli ospiti o per un ufficio domestico. Sono presenti due bagni, che offrono praticità e comfort, e un balcone che aggiunge un tocco di spazio esterno privato. L'appartamento è arredato e dotato di infissi esterni in doppio vetro e PVC, che garantiscono un buon isolamento termico e acustico. Tra le caratteristiche aggiuntive dell'immobile, vi è un ampio balcone che rappresenta un valore aggiunto per chi ama gli spazi esterni vivibili. L'edificio è dotato di ascensore, facilitando l'accesso ai piani superiori, e l'appartamento è accessibile anche per persone con disabilità. La sicurezza è garantita da una porta blindata. Il riscaldamento è autonomo e a pavimento, alimentato da una pompa di calore, mentre l'impianto di aria condizionata offre la possibilità di regolare la temperatura sia in modalità freddo che caldo. Questo appartamento rappresenta un'opportunità unica per chi cerca una nuova costruzione moderna e funzionale in una delle località più affascinanti della costa laziale. POSSIBILITA' DI PSTI AUTO COPERTI E BOX Punti di forza dell'immobile: - luminoso - impianti di ultima generazione - ampi spazi esterni Gli asili per bambini nelle vicinanze dell'immobile sono SCUOLA MATERNA S. BENEDETTO (100 m), SCUOLA MATERNA S. TERESA DEL BAMBIN GESU' e altri 3 asili entro il raggio di 480 m. Inoltre, i servizi scolastici comprendono gli istituti: SCUOLA ELEM.PARIT. S.BENEDETTO (100 m), S.MARINELLA - PIRGUS e altre 3 scuole nel raggio di 440 m. È presente nelle vicinanze dell'immobile il servizio sanitario OSPEDALE (470 m). Stai pensando di vendere o affittare casa? Con RockAgent puoi vendere o affittare il tuo immobile assicurandoti un servizio eccellente, garantito da agenti immobiliari selezionati supportati da un team tecnico, marketing e legale di altissimo livello. Visita il sito RockAgent.it e ottieni una valutazione gratuita del tuo immobile.
Dati principali
| Riferimento | 160444 - 20/04/2026 |
| Data annuncio | 03/03/2026 |
| Contratto | Vendita |
| Tipologia | Appartamento |
| Superficie | 88 m2 |
| Locali | 4 (2 camere da letto, 2 altro), 2 bagni, cucina angolo cottura |
| Piano | 2 di 3 totali |
| Tipo di costruzione | Signorile |
| Numero di balconi | 1 |
| Arredamento | Completo |
Caratteristiche
Costi
| Prezzo | 351.000 € |
| Prezzo al m2 | 3.989 €/m2 |
| Spese condominiali | € 1,00/mese |
Efficienza energetica
| Anno costruzione | 2025 |
| Stato | Nuovo |
| Riscaldamento | Autonomo |
| Classe energetica | Immobile esente da certificazione energetica |
Planimetrie
Indirizzo e mappa
via Cicerone, Santa Marinella
Calcolo mutuo
Prezzo di vendita:
Anticipo
20,00
Mutuo
80,00
Tasso: -+
Rata: 1.004 al mese
I risultati sono una stima indicativa basata sui dati inseriti e non costituiscono un’offerta finanziaria.
Inserzionista

RockAgent
Via di Santa Costanza 21, Roma
Mostra Telefono
Chiama
CONTATTA

