Trilocale via Primitivo A., 51, Galatone
€ 69.000APPARTAMENTO A PRIMO PIANO
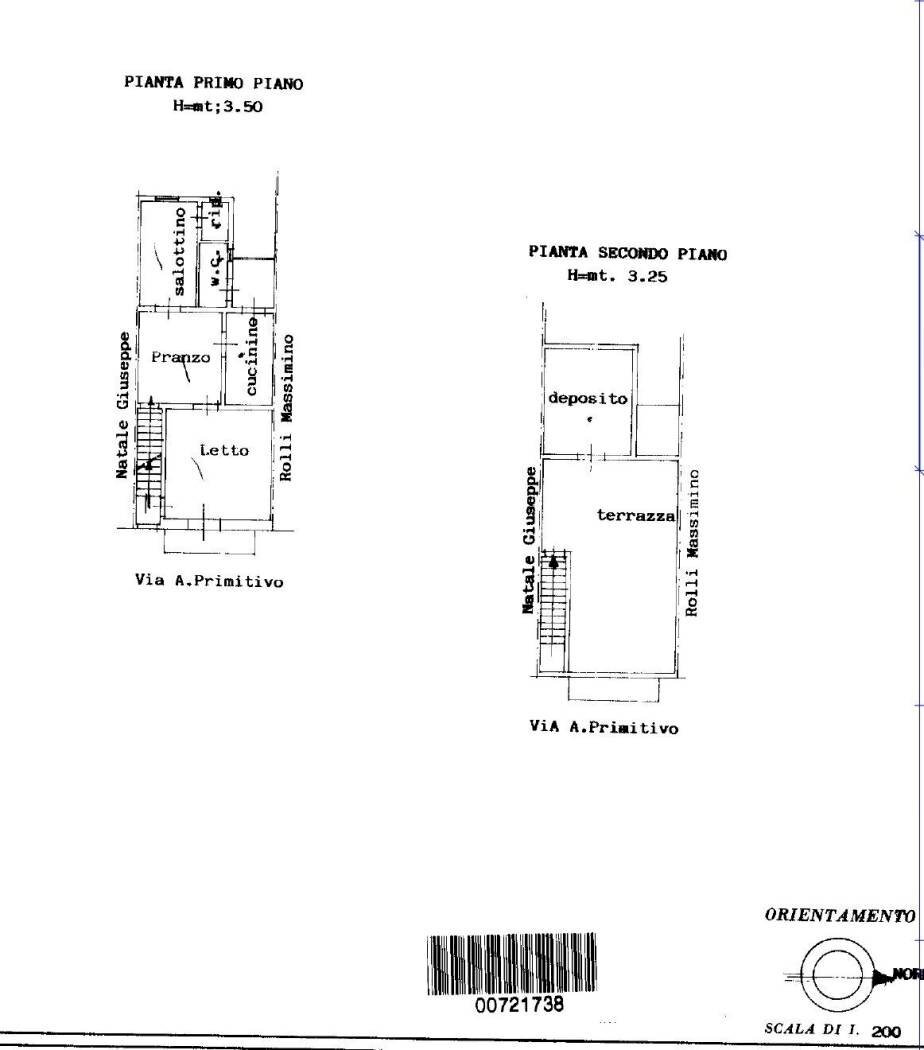
Situato in Via Primitivo A. a Galatone, questo appartamento indipendente, in vendita si trova in una posizione tranquilla e ben collegata, ideale per chi desidera vivere in un contesto residenziale sereno. Galatone è una cittadina che offre tutti i servizi essenziali, rendendo questa proprietà una scelta pratica per chi cerca comodità e accessibilità. L'appartamento è posizionato al primo e ultimo piano di un edificio di soli due piani, con ingresso e scala indipendente, garantendo una certa privacy e tranquillità. L'immobile si estende su una superficie commerciale di circa 89 metri quadrati e presenta una disposizione funzionale degli spazi. L'appartamento è composto da una camera da letto, una cucina abitabile e un bagno. La presenza di un balcone e di un terrazzo a livello del lastrico solare offrono ulteriori spazi esterni dove poter godere di momenti di relax. Sul lastrico solare è presente un locale che può essere utilizzato come lavanderia con secondo bagno, cucina con ampio spazio esterno per momenti di convivialità con parenti e amici. Gli infissi esterni sono in vetro e metallo, contribuendo a un buon isolamento acustico e termico. Un elemento caratteristico dell'appartamento è il camino, che aggiunge un tocco di calore e accoglienza all'ambiente. L'immobile si presenta in buono stato e viene venduto non arredato, permettendo ai nuovi proprietari di personalizzarlo secondo i propri gusti. Il riscaldamento è dotato di climatizzatore caldo/freddo e stufa a legna o carbone, quindi con la possibilità di riscaldare o raffreddare l'ambiente a seconda delle necessità. L'appartamento è indipendente con ingresso e scala indipendente, non dispone di portineria e non è dotato di giardino, ma i due lati liberi paralleli garantiscono una buona luminosità naturale. Questa proprietà rappresenta un'opportunità interessante per chi cerca un'abitazione confortevole e ben posizionata a Galatone. Punti di forza dell'immobile: - Ubicazione centrale rispetto a servizi e negozi cittadini - Posizione ottimale rispetto a famose spiagge salentine - Appartamento indipendente abitabile da subito, non richiede lavori. L'immobile è situato a pochi metri dalla stazione di GALATONE (200 m). Gli asili per bambini nelle vicinanze dell'immobile sono DON BOSCO (380 m) e COLLODI (470 m). Parlando di scuole, l'immobile è vicino all'istituto GIUSEPPE SUSANNA (320 m). Stai pensando di vendere o affittare casa? Con RockAgent puoi vendere o affittare il tuo immobile assicurandoti un servizio eccellente, garantito da agenti immobiliari selezionati supportati da un team tecnico, marketing e legale di altissimo livello. Visita il sito RockAgent.it e ottieni una valutazione gratuita del tuo immobile.
Dati principali
| Riferimento | 185070 - 20/04/2026 |
| Data annuncio | 16/03/2026 |
| Contratto | Vendita |
| Tipologia | Appartamento |
| Superficie | 89 m2 |
| Locali | 3 (1 camera da letto, 2 altro), 1 bagno, cucina abitabile |
| Piano | 1 di 1 totali |
| Tipo di costruzione | Media |
| Numero di terrazzi | 1 |
| Numero di balconi | 1 |
| Arredamento | Assente |
Costi
| Prezzo | 69.000 € |
| Prezzo al m2 | 775 €/m2 |
| Spese condominiali | € 1,00/mese |
Efficienza energetica
| Anno costruzione | 1950 |
| Stato | Buono |
| Riscaldamento | Assente |
| Classe energetica | G |
| Indice di prestazione energetica (IPE) | 241.94 kWh/m2 anno |
Planimetrie
Indirizzo e mappa
via Primitivo A., 51, Galatone
Calcolo mutuo
Prezzo di vendita:
Anticipo
20,00
Mutuo
80,00
Tasso: -+
Rata: 197 al mese
I risultati sono una stima indicativa basata sui dati inseriti e non costituiscono un’offerta finanziaria.
Inserzionista

RockAgent
Via di Santa Costanza 21, Roma
Mostra Telefono
Chiama
CONTATTA

