Terreno agricolo contrada Santa Lucia, Altavilla Silentina
€ 50.000TERRENO AGRICOLO CON PERMESSO A COSTRUIRE APPROVATO
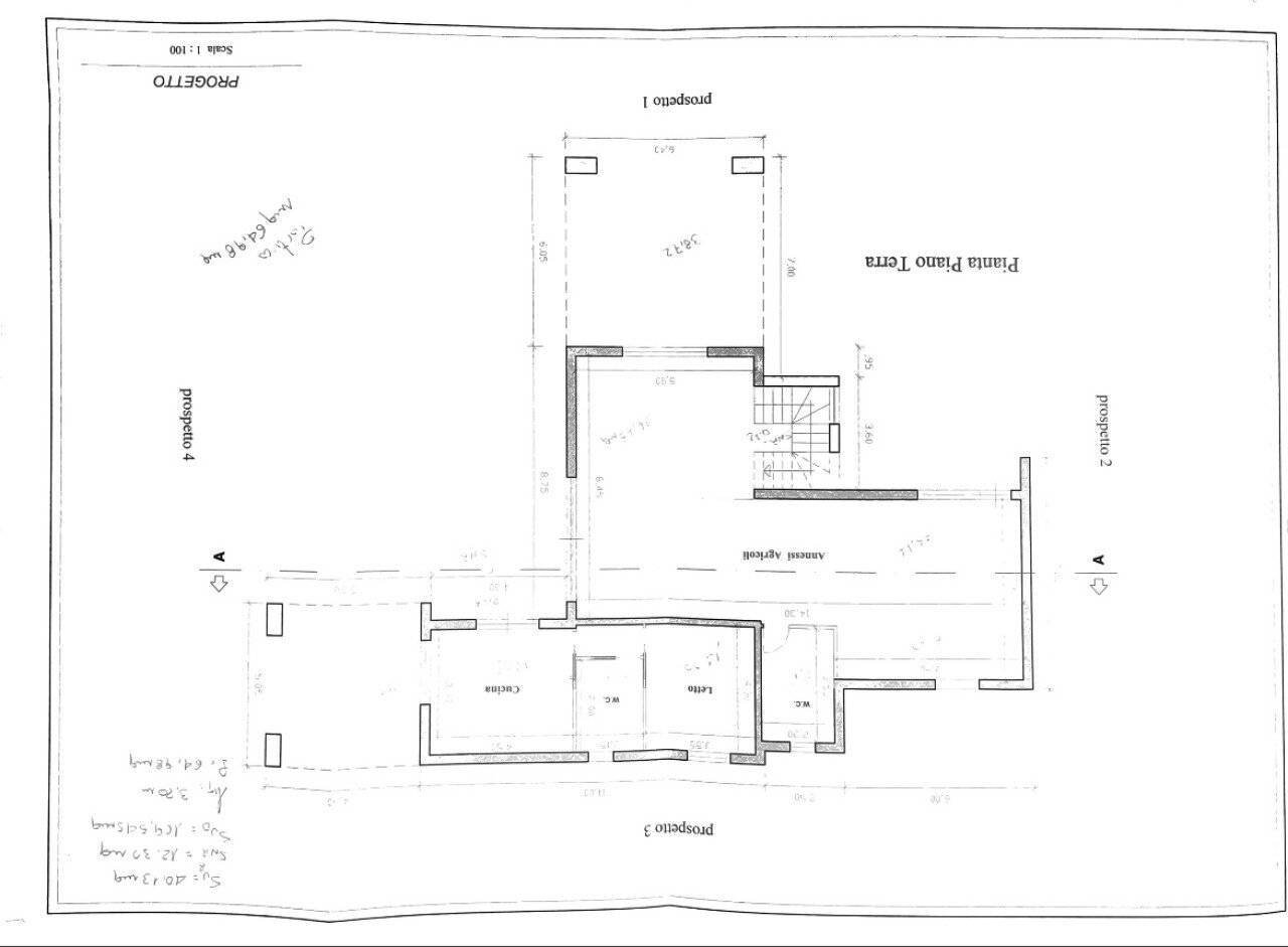
Situato nella tranquilla Contrada Santa Lucia, nel comune di Altavilla Silentina, questo terreno agricolo offre un'opportunità unica per chi desidera investire in un'area caratterizzata da un paesaggio naturale affascinante e da un'atmosfera serena. La posizione è ideale per chi cerca un rifugio lontano dal caos cittadino, pur rimanendo facilmente accessibile dai principali centri abitati della zona. Il terreno agricolo si estende su una superficie commerciale di circa 5375 metri quadrati, offrendo ampio spazio per diverse attività agricole e per la realizzazione di un progetto personale "Realizzazione di un fabbricato rurale con progetto già approvato". Il terreno è libero da vincoli, il che significa che è immediatamente disponibile per l'acquisto e l'utilizzo. La categoria catastale T conferma la sua destinazione agricola, rendendolo un'opzione interessante per agricoltori esperti o per chi desidera iniziare un'attività in questo settore. La vendita di questo terreno rappresenta un'opportunità per chi cerca un investimento nel cuore della campagna campana, con la possibilità di sviluppare un'attività agricola in un contesto naturale e suggestivo. Stai pensando di vendere o affittare casa? Con RockAgent puoi vendere o affittare il tuo immobile assicurandoti un servizio eccellente, garantito da agenti immobiliari selezionati supportati da un team tecnico, marketing e legale di altissimo livello. Visita il sito RockAgent.it e ottieni una valutazione gratuita del tuo immobile.
Dati principali
| Riferimento | 155206 - 20/04/2026 |
| Data annuncio | 20/04/2026 |
| Contratto | Vendita |
| Tipologia | Terreno agricolo |
| Superficie | 5375 m2 |
Costi
| Prezzo | 50.000 € |
| Prezzo al m2 | 9 €/m2 |
Efficienza energetica
| Classe energetica | Immobile esente da certificazione energetica |
Planimetrie
Indirizzo e mappa
contrada Santa Lucia, Altavilla Silentina
Calcolo mutuo
Prezzo di vendita:
Anticipo
20,00
Mutuo
80,00
Tasso: -+
Rata: 143 al mese
I risultati sono una stima indicativa basata sui dati inseriti e non costituiscono un’offerta finanziaria.
Inserzionista

RockAgent
Via di Santa Costanza 21, Roma
Mostra Telefono
Chiama
CONTATTA

