Appartamento via Gaspero Barbera, 30, Torino (zona Mirafiori Sud)
€ 169.000APPARTAMENTO DI CINQUE LOCALI FRAZIONABILE CON DUE BAGNI
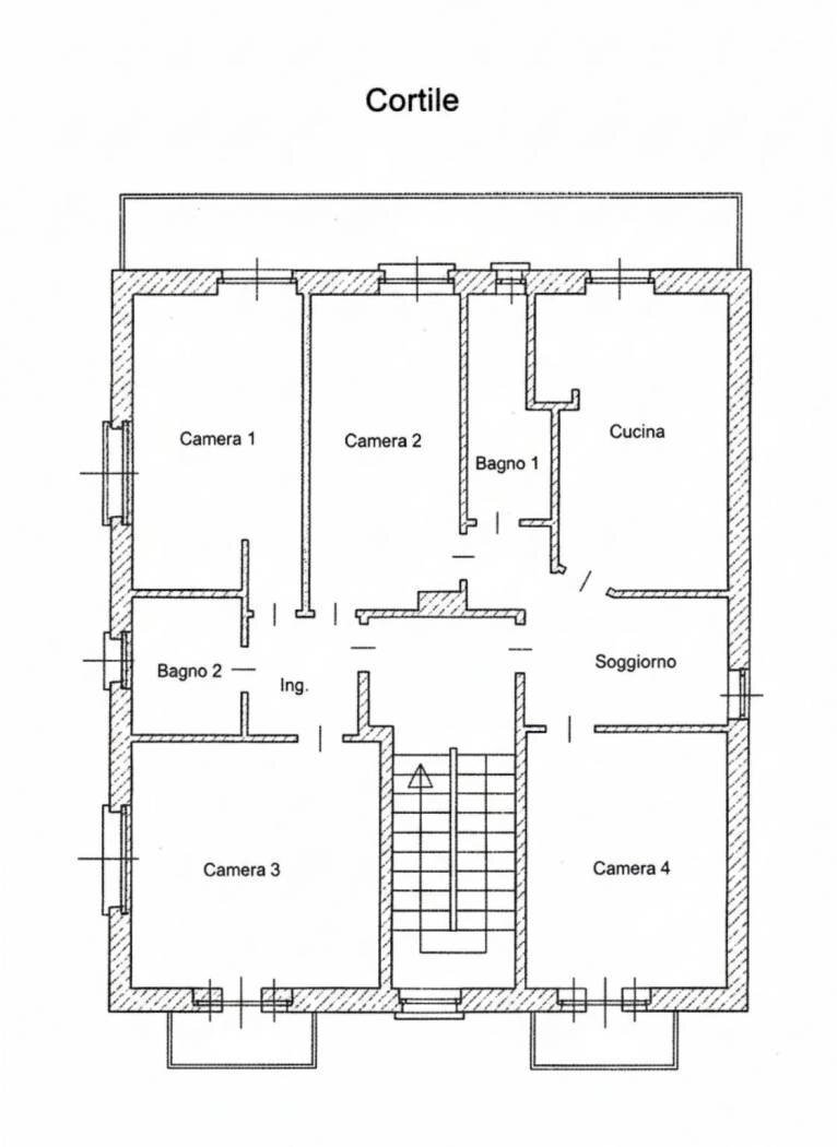
Proponiamo in vendita ampio appartamento di 5 locali, una vera occasione sia per famiglie che per investitori immobiliari alla ricerca di una rendita sicura e immediata. L’immobile si distingue per spazi generosi e versatili ed è composto da: - 5 locali - 2 bagni - 2 cucine - 3 aree ben distribuite - 3 balconi - 2 garage - 2 soffitte opzionali L’appartamento è parzialmente ristrutturato, con importanti interventi già eseguiti: - impianto elettrico nuovo già predisposto per due appartamenti separati con due contatori; - impianto idraulico nuovo; - impianto di riscaldamento autonomo già diviso in due unità immobiliari con due caldaie a metano; - 4 serramenti nuovi in PVC, per maggiore comfort e risparmio energetico. PERCHÉ È UN AFFARE IMPERDIBILE? - Rendita garantita: ideale per l’affitto di 4 camere singole, con incasso immediato. - Frazionabile in due unità abitative indipendenti (un bilocale e un trilocale), perfette da mettere a reddito. - Soluzione perfetta per famiglie che desiderano ampi spazi, indipendenza e il grande valore aggiunto di due garage. - Occasione strategica per investitori, grazie alla flessibilità dell’immobile e all’elevato potenziale di valorizzazione. Un immobile che unisce spazio, funzionalità e redditività, ideale per chi cerca un investimento solido o una casa definitiva senza compromessi. Punti di forza dell'immobile: - Ampio - Luminoso - Versatile Le linee autobus più vicine sono TORINO - CORSO UNIONE SOVIETICA ANGOLO VIA BARBERA (260 m) e TORINO - PIAZZA CAIO MARIO (440 m). La rete tramviaria è accessibile dalle fermate di BARBERA (250 m), BISCARETTI e altre 6 stazioni. L'asilo per bambini più vicino è PAJETTA (210 m). Parlando di scuole, l'immobile è vicino all'istituto LICEO SCIENTIFICO PRIMO LEVI (320 m). È presente nelle vicinanze dell'immobile il servizio sanitario PRESIDIO SANITARIO “VITTORIO VALLETTA” (460 m). Stai pensando di vendere o affittare casa? Con RockAgent puoi vendere o affittare il tuo immobile assicurandoti un servizio eccellente, garantito da agenti immobiliari selezionati supportati da un team tecnico, marketing e legale di altissimo livello. Visita il sito RockAgent.it e ottieni una valutazione gratuita del tuo immobile.
Dati principali
| Riferimento | 183466 - 20/04/2026 |
| Data annuncio | 27/02/2026 |
| Contratto | Vendita |
| Tipologia | Appartamento |
| Superficie | 118 m2 |
| Locali | 5 (4 camere da letto, 1 altro), 2 bagni, cucina abitabile |
| Piano | 2 di 2 totali |
| Tipo di costruzione | Media |
| Numero di balconi | 1 |
| Box auto | Doppio |
| Arredamento | Completo |
Costi
| Prezzo | 169.000 € |
| Prezzo al m2 | 1.432 €/m2 |
| Spese condominiali | € 125,00/mese |
Efficienza energetica
| Anno costruzione | 1953 |
| Stato | Ottimo |
| Riscaldamento | Autonomo |
| Classe energetica | G |
| Indice di prestazione energetica (IPE) | 312 kWh/m2 anno |
Planimetrie
Indirizzo e mappa
via Gaspero Barbera, 30, Torino - quartiere Mirafiori Sud
Calcolo mutuo
Prezzo di vendita:
Anticipo
20,00
Mutuo
80,00
Tasso: -+
Rata: 483 al mese
I risultati sono una stima indicativa basata sui dati inseriti e non costituiscono un’offerta finanziaria.
Inserzionista

RockAgent
Via di Santa Costanza 21, Roma
Mostra Telefono
Chiama
CONTATTA

