Negozio via Marcantonio Carattino, 26, Varazze
€ 780.000LOCALE COMMERCIALE VARAZZE
Situato in una posizione strategica nel cuore di Varazze, questo immobile si trova in Via Marcantonio Carattino, una delle vie più conosciute della città. La zona è ben servita e facilmente accessibile, rendendola ideale per chi desidera essere al centro delle attività commerciali e sociali. L'edificio, di cui fa parte, si sviluppa su quattro piani e l'immobile in questione è situato al primo piano, in una posizione intermedia che garantisce una buona visibilità e accessibilità. L'immobile si estende su una superficie commerciale di circa 200 metri quadrati, offrendo ampi spazi che possono essere personalizzati secondo le proprie esigenze. Attualmente, lo stato dell'immobile è da ristrutturare, il che rappresenta un'opportunità per chi desidera adattarlo ai propri gusti e necessità. Gli interni sono arredati e dotati di infissi esterni in doppio vetro e PVC, che assicurano un buon isolamento termico e acustico. La sicurezza è garantita da una porta blindata. La composizione include due bagni, che aggiungono praticità e funzionalità agli spazi. L'immobile è libero su quattro lati, il che consente un'ottima illuminazione naturale durante tutto il giorno. Tra le altre caratteristiche, l'immobile dispone di un sistema di riscaldamento autonomo ad aria, alimentato da una pompa di calore, che offre un'efficiente gestione della temperatura interna. Inoltre, è presente un climatizzatore autonomo con impianto freddo/caldo, ideale per mantenere un ambiente confortevole in ogni stagione. L'accesso per disabili è garantito, rendendo l'immobile adatto a un'ampia gamma di utilizzi. Non è presente un servizio di portineria, ma la posizione e le caratteristiche dell'immobile compensano ampiamente questa mancanza. Questo spazio rappresenta un'opportunità unica per chi cerca un immobile versatile e ben posizionato nel vivace contesto di Varazze. Punti di forza dell'immobile: - centralità - ingresso indipendente - termoautonomo Le linee autobus più vicine sono CORSO GIACOMO MATTEOTTI 66 (130 m), VIALE NAZIONI UNITE 3 e altre 6 fermate nel raggio di 490 m. L'asilo per bambini più vicino è SCUOLA MATERNA SAN NAZARIO (440 m). Tra i servizi scolastici sono presenti gli istituti IST. TECN. COMM. EUGENIO PERTINI (90 m) e VARAZZE - GIUSEPPE MASSONE (270 m). Molteplici le offerte di servizi sanitari e ospedalieri nella zona dell'immobile: AMBULATORIO EBINOBI (90 m), POLIAMBULATORIO MEDICO SANITA' 2000 e altri 3 servizi nel raggio di 390 m. Stai pensando di vendere o affittare il tuo locale commerciale? Con RockAgent puoi vendere o affittare il tuo immobile assicurandoti un servizio eccellente, garantito da agenti immobiliari selezionati supportati da un team tecnico, marketing e legale di altissimo livello. Visita il sito RockAgent.it e ottieni una valutazione gratuita del tuo immobile.
Dati principali
| Riferimento | 162332 - 20/04/2026 |
| Data annuncio | 03/03/2026 |
| Contratto | Vendita |
| Tipologia | Negozio |
| Superficie | 200 m2 |
| Piano | 4 totali |
| Uso immobile | Commerciale |
Costi
| Prezzo | 780.000 € |
| Prezzo al m2 | 3.900 €/m2 |
| Spese condominiali | € 1,00/mese |
Efficienza energetica
| Anno costruzione | 1960 |
| Riscaldamento | Autonomo |
| Classe energetica | G |
| Indice di prestazione energetica (IPE) | 175 kWh/m2 anno |
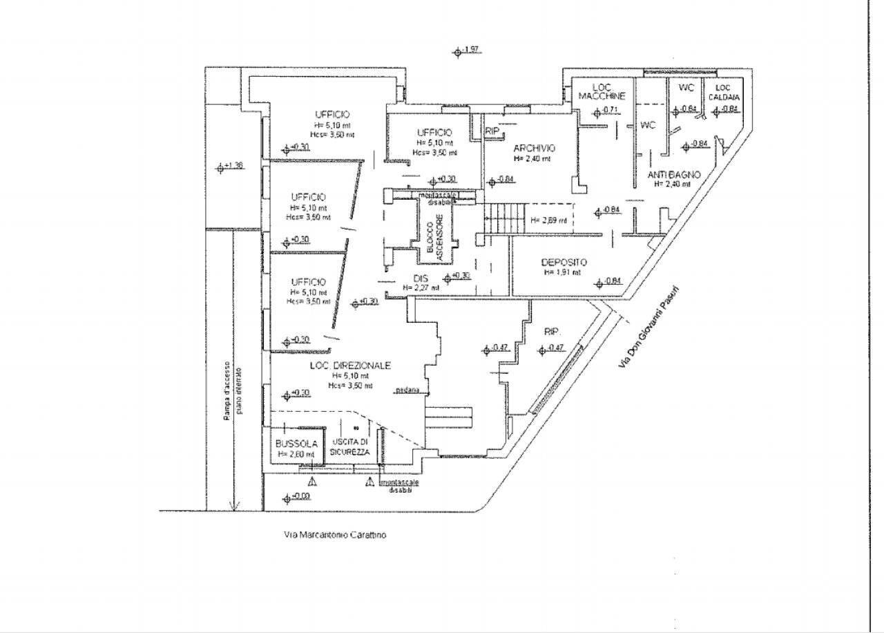
Planimetrie
Indirizzo e mappa
via Marcantonio Carattino, 26, Varazze
Calcolo mutuo
Prezzo di vendita:
Anticipo
20,00
Mutuo
80,00
Tasso: -+
Rata: 2.231 al mese
I risultati sono una stima indicativa basata sui dati inseriti e non costituiscono un’offerta finanziaria.
Inserzionista

RockAgent
Via di Santa Costanza 21, Roma
Mostra Telefono
Chiama
CONTATTA

