Ufficio via Nona Strada, 23, Padova
€ 800 al meseUFFICIO IN ZONA INDUSTRIALE
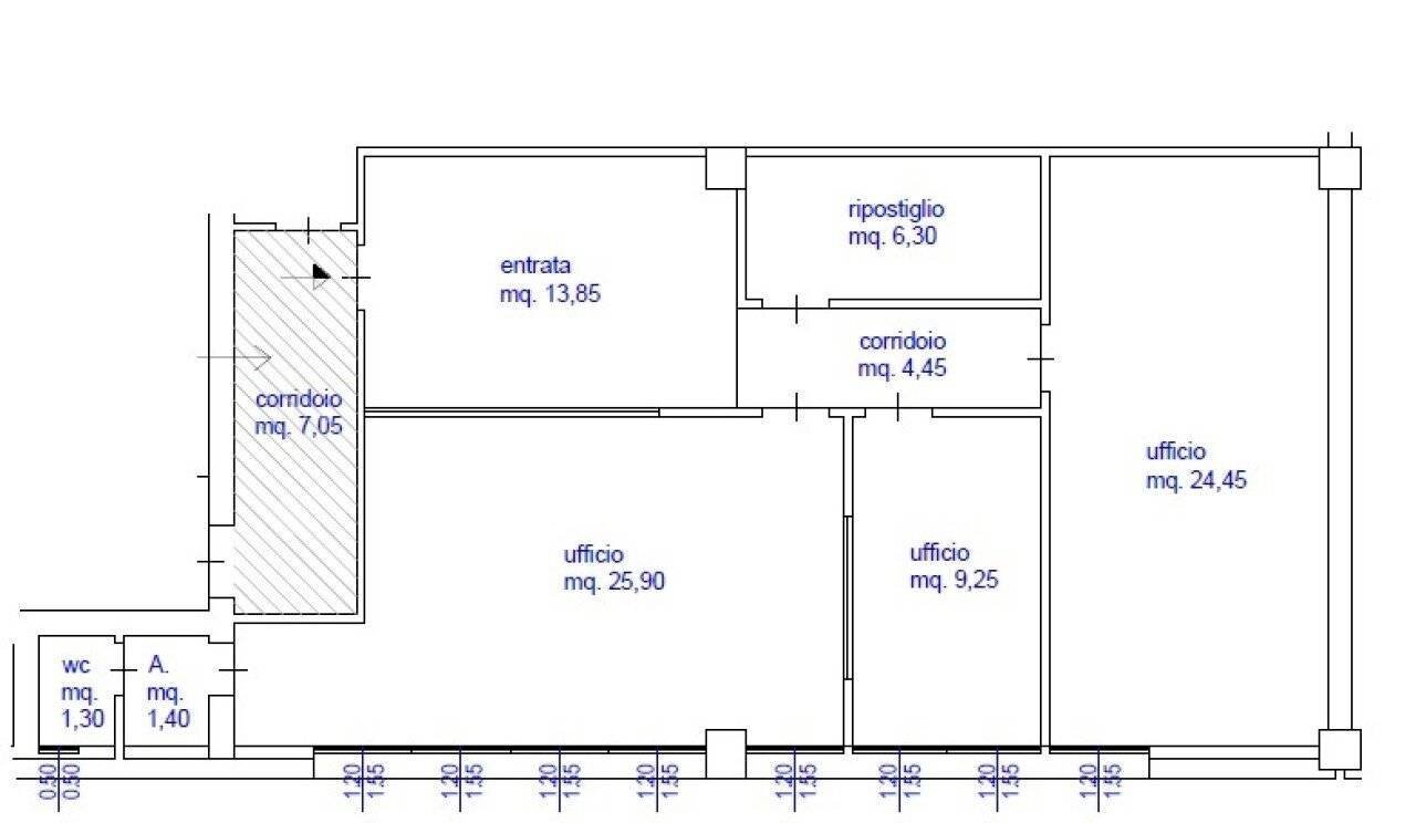
A Padova, in zona industriale, proponiamo in locazione un ufficio con due posti auto. L'immobile si trova in Via Nona Strada, ed è situato al secondo e ultimo piano di un edificio di tre piani, in un contesto direzionale servito da bar e ristorante. La posizione è facilmente accessibile e ben collegata, rendendola ideale per chi cerca un ufficio in una zona strategica della città, comodo alla tangenziale e al casello autostradale di Padova Est. L'edificio è dotato di ascensore, garantendo comodità e praticità. L'ufficio ha una superficie commerciale di circa 105 metri quadrati e si presenta in buono stato. È composto da un ingresso-reception, tre uffici, un ripostiglio e due posti auto. Subito disponibile Punti di forza dell'immobile: - Ottima posizione - Luminoso - Buone condizioni La linea di autobus più vicina è VIALE INDUSTRIA / ARGENTINA (450 m). Stai pensando di vendere o affittare il tuo locale commerciale? Con RockAgent puoi vendere o affittare il tuo immobile assicurandoti un servizio eccellente, garantito da agenti immobiliari selezionati supportati da un team tecnico, marketing e legale di altissimo livello. Visita il sito RockAgent.it e ottieni una valutazione gratuita del tuo immobile.
Dati principali
| Riferimento | 158920 - 20/04/2026 |
| Data annuncio | 20/04/2026 |
| Contratto | Affitto |
| Tipologia | Ufficio |
| Superficie | 105 m2 |
| Piano | 3 totali |
| Tipo di costruzione | Media |
| Uso immobile | Commerciale |
Caratteristiche
Costi
| Prezzo | 800 € al mese |
| Spese condominiali | € 100,00/mese |
Efficienza energetica
| Anno costruzione | 1990 |
| Riscaldamento | Autonomo |
| Classe energetica | D |
| Indice di prestazione energetica (IPE) | 105.53 kWh/m2 anno |
Planimetrie
Indirizzo e mappa
via Nona Strada, 23, Padova
Inserzionista

RockAgent
Via di Santa Costanza 21, Roma
Mostra Telefono
Chiama
CONTATTA

