Negozio via del Triumvirato, 89/A, Bologna (zona Borgo Panigale)
€ 535.000C1 IMMOBILE A REDDITO – BOLOGNA, VIA TRIUMVIRATO
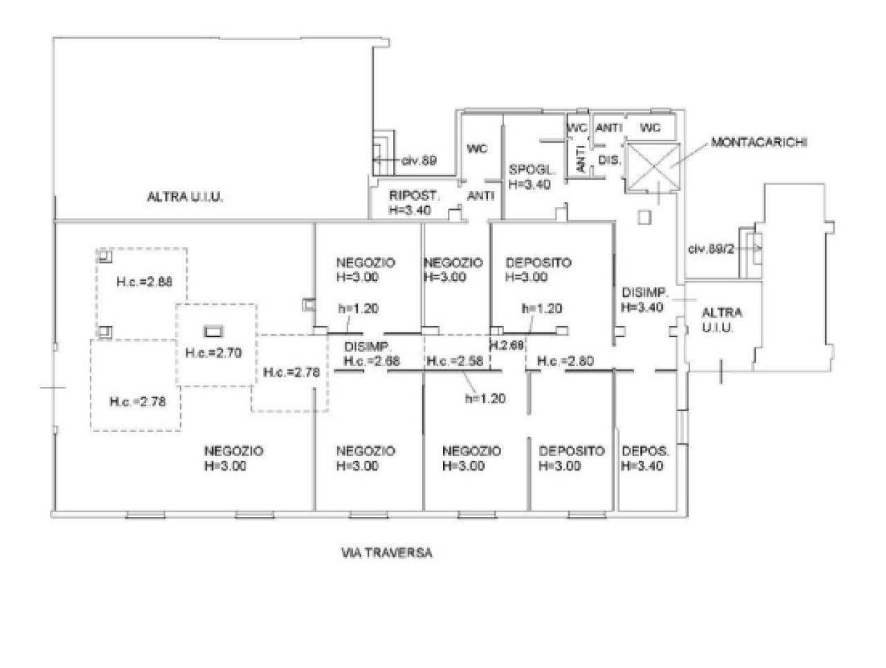
Investimento a reddito – Via Triumvirato 89, Bologna In vendita mura di immobile commerciale di oltre 400 mq, completamente ristrutturato, situato in posizione strategica e con ottima redditività garantita da un inquilino con credenziali solide e storicità consolidata di attività. - Posizione unica: Vicinanza all’Aeroporto Marconi Collegamento immediato con la tangenziale uscita 4bis Fermate autobus a pochi passi Alta visibilità grazie alla tripla esposizione e alle oltre 8 vetrine/punti luce su strada ad alto passaggio pedonale e carrabile. - Caratteristiche dell’immobile: Superficie di oltre 400 mq Spazi suddivisi in area espositiva, studi medici, palestre, spogliatoi e servizi igienici Struttura moderna e completamente ristrutturata, pronta all’uso - Punto di forza: Acquisto delle mura a reddito, con contratto di locazione già in essere e rendita stabile con redditività superiore alla media. Un’opportunità ideale per chi cerca un investimento sicuro e ad alta visibilità a Bologna, in una zona in continua crescita e strategica per i flussi di persone e mezzi. Investimento “chiavi in mano” con ritorno immediato Visibilità eccellente in una delle zone più dinamiche di Bologna Flessibilità futura: la soluzione si presta ad essere trasformata o riconvertita secondo le esigenze del mercato Un’opportunità unica per chi cerca un immobile solido, redditizio e con prospettiva di rivalutazione nel tempo. Punti di forza dell'immobile: - rendita superiore alla media - grande metratura 417mq - supervisibilità con oltre 8 vetrine Le linee autobus più vicine sono DUE PONTI (140 m) e BIRRA (160 m). L'asilo per bambini più vicino è ALDO MORO INFANZIA (90 m). Parlando di scuole, l'immobile è vicino all'istituto ALDO MORO (100 m). Stai pensando di vendere o affittare il tuo locale commerciale? Con RockAgent puoi vendere o affittare il tuo immobile assicurandoti un servizio eccellente, garantito da agenti immobiliari selezionati supportati da un team tecnico, marketing e legale di altissimo livello. Visita il sito RockAgent.it e ottieni una valutazione gratuita del tuo immobile.
Dati principali
| Riferimento | 162356 - 20/04/2026 |
| Data annuncio | 05/03/2026 |
| Contratto | Vendita |
| Tipologia | Negozio |
| Superficie | 417 m2 |
| Piano | 7 totali |
| Uso immobile | Commerciale |
Caratteristiche
Costi
| Prezzo | 535.000 € |
| Prezzo al m2 | 1.283 €/m2 |
| Spese condominiali | € 230,00/mese |
Efficienza energetica
| Anno costruzione | 1970 |
| Riscaldamento | Centralizzato |
| Classe energetica | C |
| Indice di prestazione energetica (IPE) | 256.48 kWh/m2 anno |
Planimetrie
Indirizzo e mappa
via del Triumvirato, 89/A, Bologna - quartiere Borgo Panigale
Calcolo mutuo
Prezzo di vendita:
Anticipo
20,00
Mutuo
80,00
Tasso: -+
Rata: 1.530 al mese
I risultati sono una stima indicativa basata sui dati inseriti e non costituiscono un’offerta finanziaria.
Inserzionista

RockAgent
Via di Santa Costanza 21, Roma
Mostra Telefono
Chiama
CONTATTA

