Terreno edificabile strada Provinciale Sassari - Argentiera, 77, Sassari
€ 63.000TERRENO EDIFICABILE CATEGORIA C2 CON PROGETTO APPROVATO
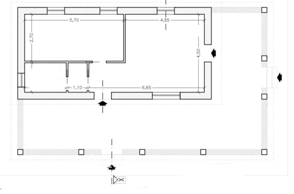
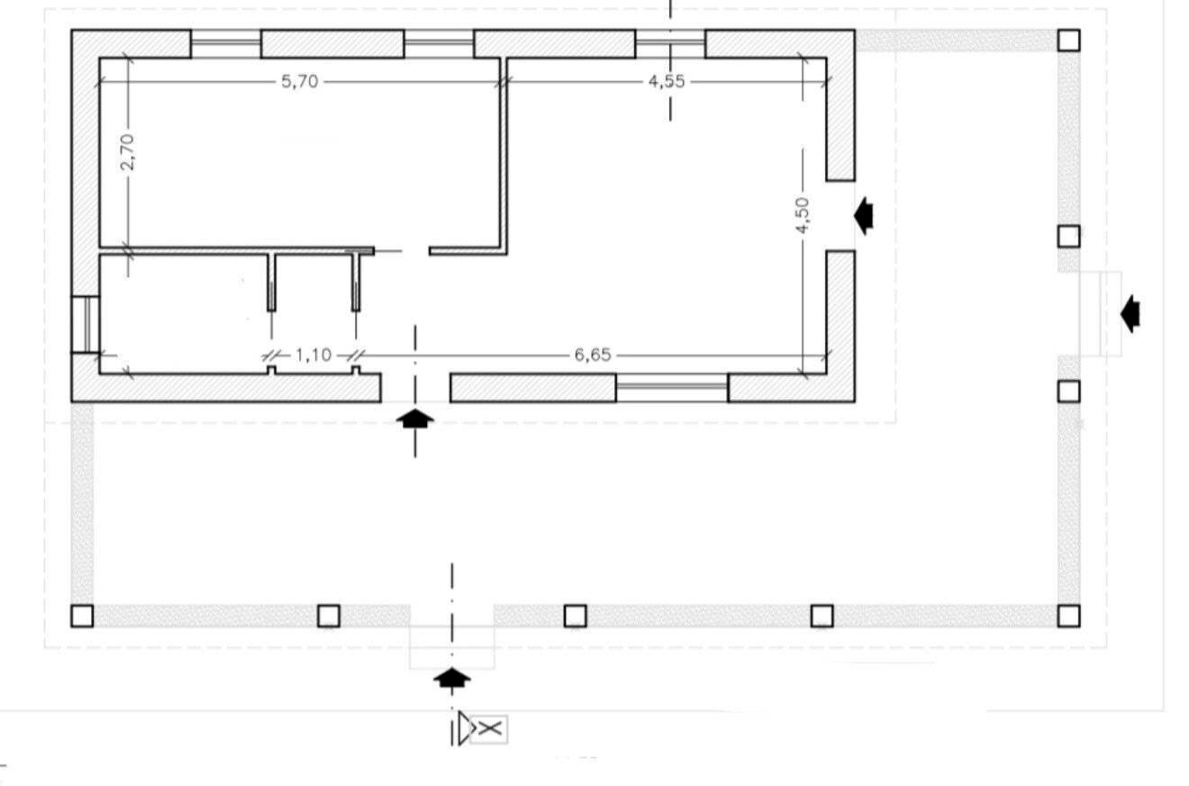
Proponiamo in vendita terreno edificabile di circa 4.000 mq, situato in zona tranquilla e immersa nel verde, a pochi minuti dalla città di Sassari, più esattamente in sv Tignoni, Monti Minuddu. Il lotto è dotato di progetto approvato per la realizzazione di un fabbricato categoria C2 (non abitativo), con la seguente composizione: Circa 110 mq edificabili, suddivisi in due locali Pergola/Veranda di circa 60 mq Soluzione perfetta come deposito, magazzino agricolo o struttura di supporto per attività rurali, ideale anche come punto d’appoggio per vivere e trascorrere il tempo in campagna, nel pieno rispetto della destinazione d’uso vigente. Il terreno presenta uliveto e alberi da frutto ed è caratterizzato da accesso comodo, in prossimità della strada principale. Contesto riservato ma facilmente raggiungibile, ideale per chi cerca un terreno già pronto per edificare in un’area verde e vicina alla città. Punti di forza dell'immobile: - terreno - nuova costruzione - pressi sassari Le linee autobus più vicine sono TIGNONE (130 m) e TIGNONE SP 18 CIVICO 61A- ATP (360 m). Stai pensando di vendere o affittare casa? Con RockAgent puoi vendere o affittare il tuo immobile assicurandoti un servizio eccellente, garantito da agenti immobiliari selezionati supportati da un team tecnico, marketing e legale di altissimo livello. Visita il sito RockAgent.it e ottieni una valutazione gratuita del tuo immobile.
Dati principali
| Riferimento | 160432 - 20/04/2026 |
| Data annuncio | 20/04/2026 |
| Contratto | Vendita |
| Tipologia | Terreno edificabile |
| Superficie | 4000 m2 |
Costi
| Prezzo | 63.000 € |
| Prezzo al m2 | 16 €/m2 |
Efficienza energetica
| Classe energetica | Immobile esente da certificazione energetica |
Planimetrie
Indirizzo e mappa
strada Provinciale Sassari - Argentiera, 77, Sassari
Calcolo mutuo
Prezzo di vendita:
Anticipo
20,00
Mutuo
80,00
Tasso: -+
Rata: 180 al mese
I risultati sono una stima indicativa basata sui dati inseriti e non costituiscono un’offerta finanziaria.
Inserzionista

RockAgent
Via di Santa Costanza 21, Roma
Mostra Telefono
Chiama
CONTATTA

