Villa via Dante Alighieri, 8A, Vergiate
€ 340.000Villa Indipendente Ristrutturata
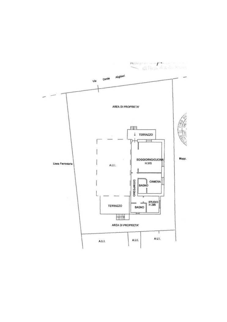
Se cerchi una casa pronta da vivere, luminosa e completamente indipendente, questa elegante villa ristrutturata è la soluzione ideale. Situata su un lotto di circa 520 mq, la proprietà si sviluppa interamente su un unico piano, offrendo massima comodità e funzionalità degli spazi. L’ingresso conduce a un ampio e luminoso soggiorno, perfettamente collegato a una cucina moderna, pensata per vivere momenti conviviali in famiglia o con amici. Uno dei punti di forza è il locale hobby con ampie porte finestre che si aprono sul giardino privato: uno spazio versatile, ideale come area relax, studio o zona svago. La zona notte è composta da: una spaziosa camera matrimoniale con bagno en-suite una seconda camera un ulteriore bagno finestrato. All’esterno, un accogliente portico affacciato sul verde invita a godersi pranzi all’aperto e momenti di relax, mentre i due posti auto scoperti garantiscono praticità quotidiana. La ristrutturazione ha interessato completamente l’immobile: impianti elettrico e idraulico nuovi pavimentazioni rifatte infissi in PVC con doppio vetro per un eccellente isolamento termico e acustico Completano la proprietà una cantina e un’ottima esposizione su tutti i lati, che assicura luce naturale durante tutta la giornata. Una soluzione perfetta per chi desidera indipendenza, comfort moderno e spazi esterni vivibili. Contattaci per maggiori informazioni o per fissare una visita: questa potrebbe essere la casa che stavi aspettando.
Dati principali
| Riferimento | Vergiate 340 |
| Data annuncio | 21/04/2026 |
| Contratto | Vendita |
| Tipologia | Villa |
| Superficie | 187 m2 |
| Locali | 5 (2 camere da letto, 3 altro), 2 bagni, cucina a vista |
| Piano | 1 totali |
| Tipo di costruzione | Signorile |
| Numero posti auto | 2 |
| Arredamento | Assente |
Caratteristiche
Costi
| Prezzo | 340.000 € |
| Prezzo al m2 | 1.818 €/m2 |
Efficienza energetica
| Anno costruzione | 1960 |
| Stato | Ottimo |
| Riscaldamento | Autonomo |
| Classe energetica | F |
| Indice di prestazione energetica (IPE) | 175.37 kWh/m2 anno |
Planimetrie
Indirizzo e mappa
via Dante Alighieri, 8A, Vergiate
Calcolo mutuo
Prezzo di vendita:
Anticipo
20,00
Mutuo
80,00
Tasso: -+
Rata: 972 al mese
I risultati sono una stima indicativa basata sui dati inseriti e non costituiscono un’offerta finanziaria.
Inserzionista

Antares sas
Viale Milano 2, Gallarate
Mostra Telefono
Chiama
CONTATTA

