Bilocale Via Mario Giannini 1, Bari
€ 220.000
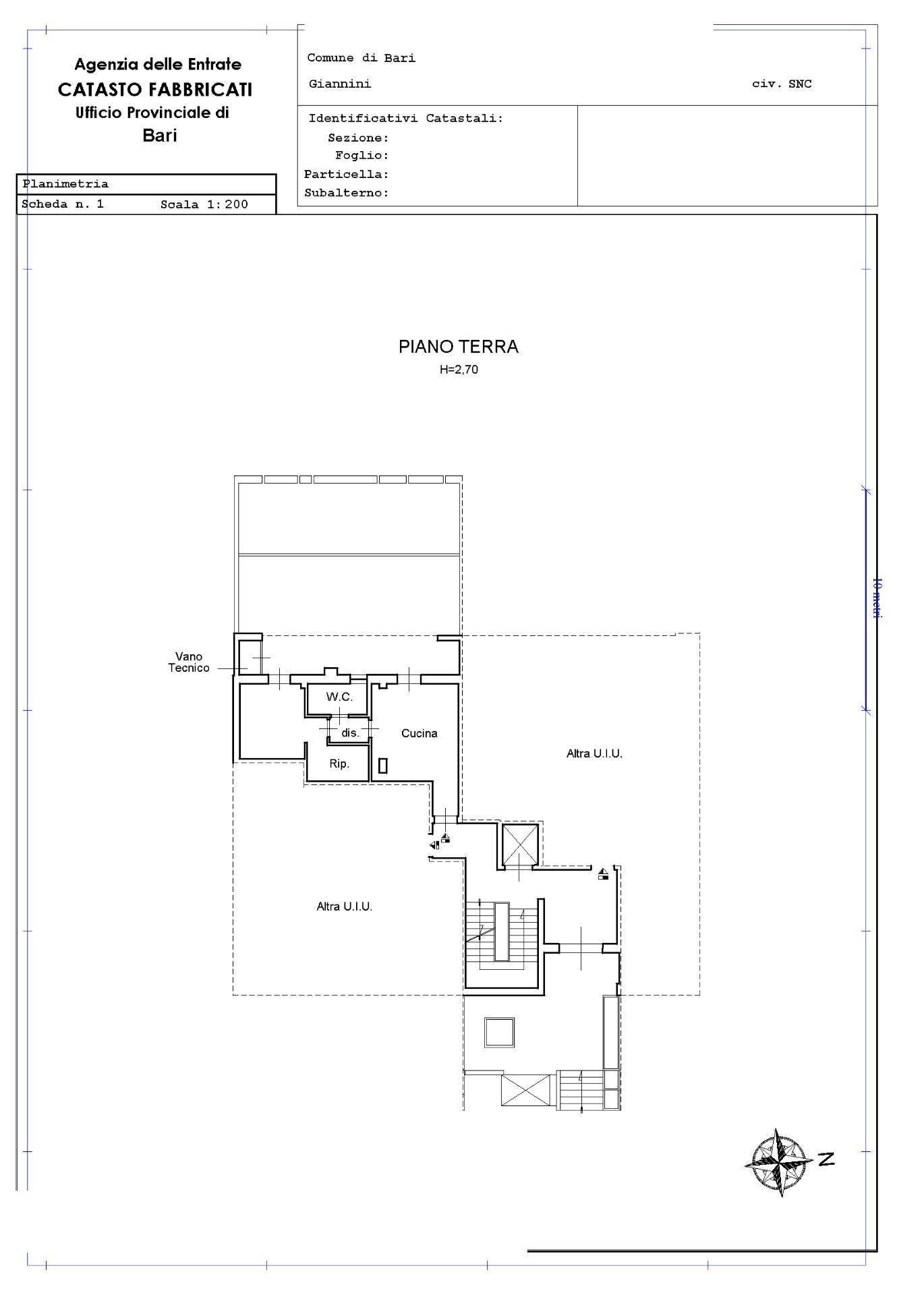
Bivani di nuova costruzione con cantina e posto auto. LIBERO SUBITO. Si vende completo di arredi. Contattaci per visionare l'immobile. INTERNO: Appartamento di 50 mq composto da ingresso in zona giorno con angolo cottura; disimpegno; camera da letto; ampio ripostiglio/cabina armadio; bagno con doccia extrasize, sanitari sospesi e aerazione naturale. Pavimentazione in gres porcellanato effetto parquet. Infissi in pvc con doppio vetro. Tapparelle in pvc ad apertura elettrica. Raffrescamento e riscaldamento ad aria con fan coil ultraslim. Impianti certificati. APE A4. Si vende completo si arredi, soluzione ideale per investimento. Libero subito. ESTERNO: Appartamento al piano terra in uno stabile di quattro piani, dotato di ascensore. 80 mq di superficie esterna (patio di 50 mq e giardino di 30 mq). Completano la proprietà un posto auto coperto e una cantina di 20 mq. POSIZIONE: A 190 mt dal multisala Showville, a 250 mt dal nuovo ipermercato Famila e a 700 mt dagli ingressi alla tangenziale e alla statale 16. Principali servizi nel raggio di 1 km. PUNTI DI FORZA: Nuova costruzione. Ideale per uso investimento. Ampia superficie esterna.
Dati principali
| Riferimento | Bivani_Via_Giannini_Complesso_Sant'Antonio |
| Data annuncio | 23/04/2026 |
| Contratto | Vendita |
| Tipologia | Appartamento |
| Superficie | 65 m2 |
| Locali | 2 (1 camera da letto, 1 altro), 1 bagno, cucina angolo cottura |
| Piano | Terra, 4 totali |
| Tipo di costruzione | Signorile |
| Occupato | Libero |
| Box auto | Assente |
| Numero posti auto | 1 |
| Arredamento | Assente |
Caratteristiche
Costi
| Prezzo | 220.000 € |
| Prezzo al m2 | 3.385 €/m2 |
Efficienza energetica
| Stato | Ottimo |
| Riscaldamento | Autonomo |
| Tipo Impianto Di Riscaldamento | ad aria |
| Tipo Alimentazione Riscaldamento | Elettrico |
| Classe energetica | A4 |
Planimetrie
Indirizzo e mappa
Via Mario Giannini
1, Bari
Annuncio senza mappa,
prova a chiedere la posizione all'inserzionista
prova a chiedere la posizione all'inserzionista
Calcolo mutuo
Prezzo di vendita:
Anticipo
20,00
Mutuo
80,00
Tasso: -+
Rata: 629 al mese
I risultati sono una stima indicativa basata sui dati inseriti e non costituiscono un’offerta finanziaria.
Inserzionista

Areachiara Immobiliare s.r.l.
Via Sparano da Bari 103, Bari
Mostra Telefono
Mostra Cellulare
Chiama
CONTATTA

