Attività Commerciale Via Occimiano, Conzano
€ 500 al meseAttività in affitto
Il ristorante si trova all’interno del Centro Ippico Le Calle ssd a Conzano Monferrato, posto a circa 15 minuti da Casale Monferrato.
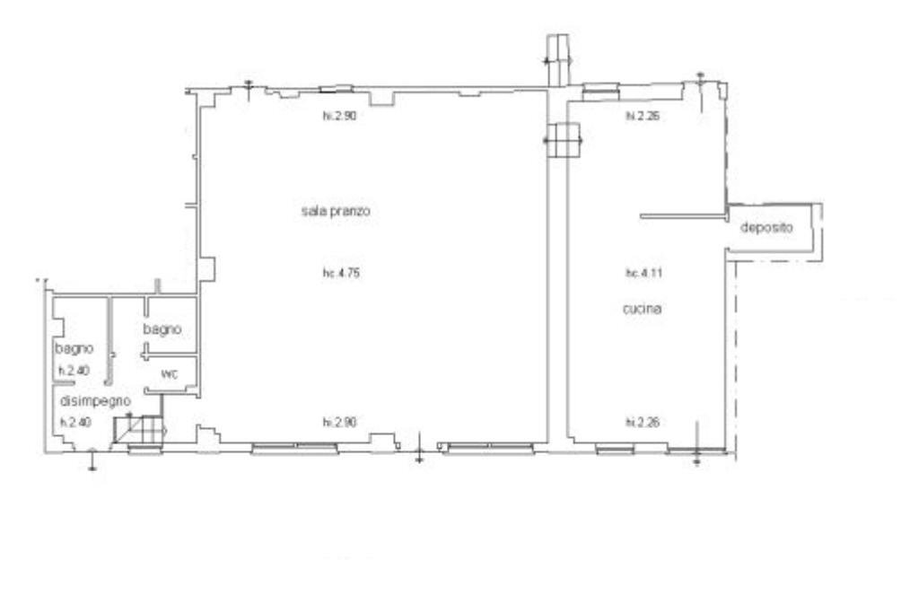
Il locale è composto da un grande spazio molto accogliente grazie alla pietra da cantone a vista, dal pavimento e dalle travi del soffitto in legno, dotato di angolo bar, illuminato da ampie vetrate con affaccio sul giardino antistante la struttura.
Il ristorante dispone di un accesso indipendente al centro ippico, rendendo così la possibilità di aperture serali al di fuori degli orari del maneggio.
Questo spazio esterno, di circa 600 mq, risulta essere un importante valore aggiunto alla struttura in quanto è ideale per la sua fruizione nelle belle giornate essendo presenti alberi ad alto fusto, aree verdi e viali e piazzole formate con sanpietrini.
Il ristorante dispone di un’ampia cucina professionale dove troviamo un piccolo ripostiglio. Infine sono presenti i bagni sia per la clientela sia per il personale a norma di legge.
Va ad ultimare la proprietà un ampio parcheggio.
Viene richiesta precedente esperienza nella gestione di un locale di ristorazione.
Per agevolare il conduttore, il canone di affitto sarà ripartito con le seguenti modalità:
1° anno: 500€ + IVA mensili (annui 6.000€ + IVA)
2° anno: 600€ + IVA mensili (annui 7.200€ + IVA)
3° anno: 700€ + IVA mensili (annui 8.400€ + IVA)
4° anno: 900€ + IVA mensili (annui 10.800€ + IVA)
5° anno: 1.500€ + IVA mensili (annui 18.000€ + IVA)
6° anno: 2.000€ + IVA mensili (annui 24.000€ + IVA)
Il locale è composto da un grande spazio molto accogliente grazie alla pietra da cantone a vista, dal pavimento e dalle travi del soffitto in legno, dotato di angolo bar, illuminato da ampie vetrate con affaccio sul giardino antistante la struttura.
Il ristorante dispone di un accesso indipendente al centro ippico, rendendo così la possibilità di aperture serali al di fuori degli orari del maneggio.
Questo spazio esterno, di circa 600 mq, risulta essere un importante valore aggiunto alla struttura in quanto è ideale per la sua fruizione nelle belle giornate essendo presenti alberi ad alto fusto, aree verdi e viali e piazzole formate con sanpietrini.
Il ristorante dispone di un’ampia cucina professionale dove troviamo un piccolo ripostiglio. Infine sono presenti i bagni sia per la clientela sia per il personale a norma di legge.
Va ad ultimare la proprietà un ampio parcheggio.
Viene richiesta precedente esperienza nella gestione di un locale di ristorazione.
Per agevolare il conduttore, il canone di affitto sarà ripartito con le seguenti modalità:
1° anno: 500€ + IVA mensili (annui 6.000€ + IVA)
2° anno: 600€ + IVA mensili (annui 7.200€ + IVA)
3° anno: 700€ + IVA mensili (annui 8.400€ + IVA)
4° anno: 900€ + IVA mensili (annui 10.800€ + IVA)
5° anno: 1.500€ + IVA mensili (annui 18.000€ + IVA)
6° anno: 2.000€ + IVA mensili (annui 24.000€ + IVA)
Dati principali
| Riferimento | 61210459 |
| Data annuncio | 22/04/2026 |
| Contratto | Affitto |
| Tipologia | Attività Commerciale |
| Superficie | 150 m2 |
| Locali | 3 (3 altro), 3 bagni |
| Piano | 1 di 1 totali |
Costi
| Prezzo | 500 € al mese |
Efficienza energetica
| Anno costruzione | 1990 |
| Classe energetica | D |
| Indice di prestazione energetica (EP GL, REN) | 9.32 kWh/m3 anno |
| Indice di prestazione energetica (EP GL, NREN) | 776.63 kWh/m3 anno |
Planimetrie
Indirizzo e mappa
Via Occimiano, Conzano
Inserzionista
Chiama
CONTATTA

