Quadrilocale Piazza XXV Aprile, Parma (zona Cittadella)
€ 650.000Quadrilocale in vendita
Cittadella, appartamento ristrutturato con tre camere e balconi al piano alto
Nel quartiere Cittadella, tra i più apprezzati della città per equilibrio tra servizi e tranquillità, l’appartamento si inserisce al quarto piano di una palazzina servita da ascensore, ben mantenuta e ordinata nelle parti comuni.
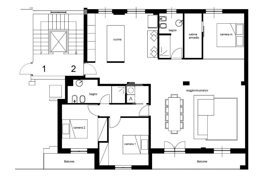
L’ingresso introduce a una zona giorno ampia e continua di circa 70 mq, che si articola in cucina a vista con isola, area pranzo e living. L’ambiente si apre su un balcone esposto a sud, che garantisce luce naturale durante l’intero arco della giornata. La distribuzione interna prosegue con tre camere matrimoniali di dimensioni regolari, una delle quali arricchita da cabina armadi ed un’altra dotata di balcone privato. Completano la casa due bagni, entrambi spaziosi, ed un locale lavanderia separato.
La ristrutturazione ha interessato in modo completo gli impianti elettrico e idrico-sanitario, accompagnata da interventi mirati al miglioramento dell’isolamento termico e acustico. Le finiture alternano pavimenti in resina a parquet in legno posato a lisca italiana, mentre i serramenti in alluminio ad alta efficienza e le tapparelle motorizzate con gestione da remoto contribuiscono al comfort quotidiano.
La presenza di balconi, la generosità degli spazi interni e la qualità degli interventi eseguiti rendono questa abitazione adatta a una vita domestica equilibrata, in un quartiere comodo e ben servito.
Possibilità di box auto.
Per ulteriori informazioni o fissare una appuntamento contattare Silvia al 338/4682302 o allo 0521/481514
Nel quartiere Cittadella, tra i più apprezzati della città per equilibrio tra servizi e tranquillità, l’appartamento si inserisce al quarto piano di una palazzina servita da ascensore, ben mantenuta e ordinata nelle parti comuni.
L’ingresso introduce a una zona giorno ampia e continua di circa 70 mq, che si articola in cucina a vista con isola, area pranzo e living. L’ambiente si apre su un balcone esposto a sud, che garantisce luce naturale durante l’intero arco della giornata. La distribuzione interna prosegue con tre camere matrimoniali di dimensioni regolari, una delle quali arricchita da cabina armadi ed un’altra dotata di balcone privato. Completano la casa due bagni, entrambi spaziosi, ed un locale lavanderia separato.
La ristrutturazione ha interessato in modo completo gli impianti elettrico e idrico-sanitario, accompagnata da interventi mirati al miglioramento dell’isolamento termico e acustico. Le finiture alternano pavimenti in resina a parquet in legno posato a lisca italiana, mentre i serramenti in alluminio ad alta efficienza e le tapparelle motorizzate con gestione da remoto contribuiscono al comfort quotidiano.
La presenza di balconi, la generosità degli spazi interni e la qualità degli interventi eseguiti rendono questa abitazione adatta a una vita domestica equilibrata, in un quartiere comodo e ben servito.
Possibilità di box auto.
Per ulteriori informazioni o fissare una appuntamento contattare Silvia al 338/4682302 o allo 0521/481514
Dati principali
| Riferimento | 61209530 |
| Data annuncio | 22/04/2026 |
| Contratto | Vendita |
| Tipologia | Appartamento |
| Superficie | 150 m2 |
| Locali | 4 (4 altro), 2 bagni |
| Piano | 4 di 6 totali |
Costi
| Prezzo | 650.000 € |
| Prezzo al m2 | 4.333 €/m2 |
| Spese condominiali | € 108,00/mese |
Efficienza energetica
| Anno costruzione | 1970 |
| Riscaldamento | Centralizzato |
| Tipo Alimentazione Riscaldamento | Altro |
| Classe energetica | Immobile esente da certificazione energetica |
Planimetrie
Indirizzo e mappa
Piazza XXV Aprile, Parma - quartiere Cittadella
Calcolo mutuo
Prezzo di vendita:
Anticipo
20,00
Mutuo
80,00
Tasso: -+
Rata: 1.859 al mese
I risultati sono una stima indicativa basata sui dati inseriti e non costituiscono un’offerta finanziaria.
Inserzionista
Chiama
CONTATTA

