Locale Commerciale Viale dell' Industria, Rubano
€ 9.000 al meseCapannone - Industriale a Rubano
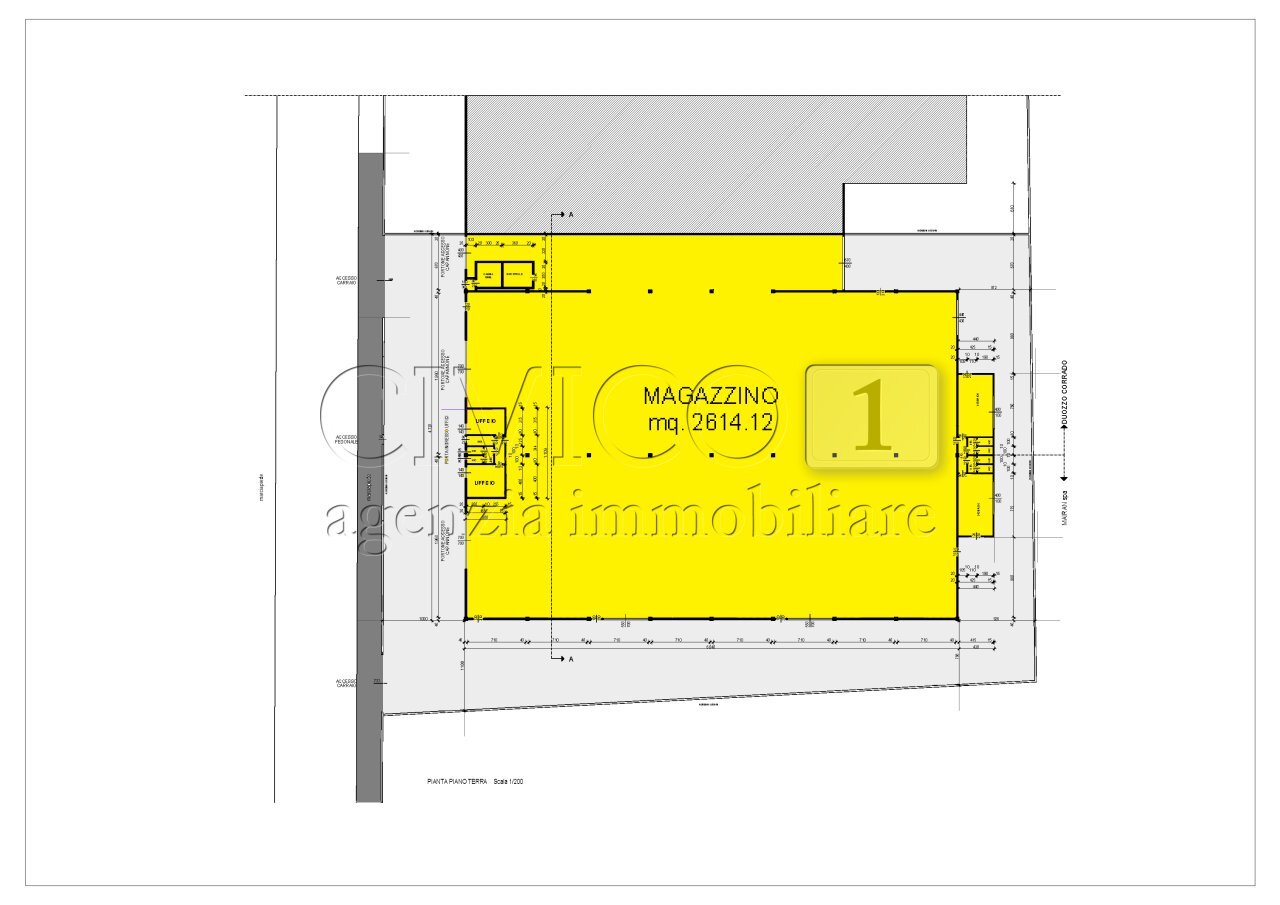
MAY9000 Capannone industriale – RUBANO (PD) – 2.300 mq Proponiamo in locazione capannone industriale di 2.800 mq situato nella zona produttiva di Rubano, in posizione strategica e comoda ai principali collegamenti viari. Caratteristiche principali - Superficie totale: 2.874 di cui 100mq di uffici e 90 mq di spogliatoi. - Destinazione d’uso: industriale / artigianale / logistica leggera - Altezza interna: idonea per stoccaggio e attività produttive - Struttura: prefabbricato industriale, spazi regolari e facilmente adattabili - Accessi: portoni carrabili per mezzi pesanti - Petrinenza esterna: area di manovra e carico/scarico che consente la possibilità di giro a 360°. - Impiantistica: dotazioni base presenti, cabina enel interna, - Area esterna esclusiva di 1750mq dedicata al carico/scarico dei muletti, per operazioni sicure e veloci. - Carroponte presente . - Cabina Enel dedicata per garantire una potenza elettrica adeguata alle esigenze della tua attività. - Altezza utile fino a 9 metri, perfetta per ottimizzare lo stoccaggio e la movimentazione di merci, anche ingombranti. - Sistema di rete antincendio ad anello lungo il perimetro esterno, per la massima sicurezza dell'immobile e delle merci. Punti di forza - Posizione strategica vicino a tangenziale e A4 - Spazio flessibile, adatto a molteplici attività - Contesto produttivo consolidato con servizi e infrastrutture - Ottimo rapporto superficie/prezzo Ideale per - Logistica leggera - Deposito e magazzino - Produzione artigianale/industriale - Laboratori con area operativa estesa Classe energetica: G – IPE 100.62 kWh/m³ anno Canone di locazione: € 9.000,00 al mese + imposte. Posizione ideale per aziende che operano nelle aree strategiche di Padova, Vicenza e Venezia, con facile accesso alle principali vie di comunicazione. Per maggiori informazioni e per prenotare una visita, contattaci al 338.1588333 o invia una mail all'indirizzo [email protected]
Dati principali
| Riferimento | MAY9000 |
| Data annuncio | 18/04/2026 |
| Contratto | Affitto |
| Tipologia | Locale Commerciale |
| Superficie | 2800 m2 |
| Locali | più di 5 (10 altro) |
| Piano | 1 totali |
| Numero posti auto | 1 |
Costi
| Prezzo | 9.000 € al mese |
Efficienza energetica
| Anno costruzione | 1985 |
| Classe energetica | G |
Planimetrie
Indirizzo e mappa
Viale dell' Industria, Rubano
Inserzionista

CIVICO1 Agenzia Immobiliare
Via della Provvidenza, 83, Rubano
Mostra Telefono
Chiama
CONTATTA

