Casa indipendente Via Ambiente 19, Ozzano dell'Emilia
€ 630.000Altre tipologie - Casa Villa Ind. a Ozzano dell'Emilia
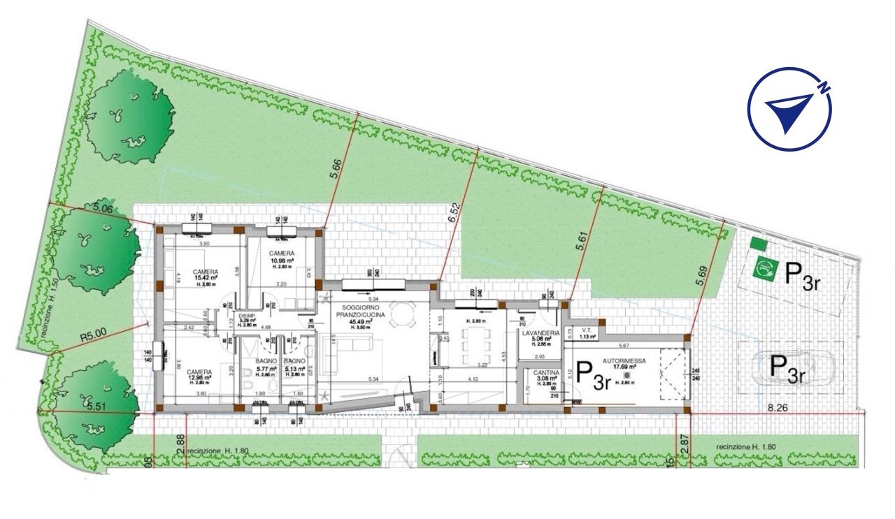
OZZANO CENTRO | "Le Dimore" di Via Dell'Ambiente | ULTIMA VILLA DISPONIBILE Villa unifamiliare tutta su un unico piano e completamente indipendente, con giardino privato sui quattro lati |Classe Energetica A4 - Fotovoltaico Autonomo 8.5 kW - Piacevolmente immerse nel verde, in un contesto residenziale esclusivo a pochi metri da tutte le comodità del centro di Ozzano, "Le Dimore" nascono da un progetto abitativo ambizioso che coniuga con armonia la sobrietà di un design architettonico moderno e funzionale con prestazioni antisismiche ed energetiche elevatissime, nel pieno rispetto dell'ambiente e del territorio. La villa unifamiliare che qui proponiamo in vendita - SENZA ALCUN ONERE DI PROVVIGIONE A CARICO DELL'ACQUIRENTE - è completamente indipendente, si estende tutta unicamente al pian terreno e spicca per il suo stile contemporaneo e pulito, caratterizzato dall'accostamento dinamico dei volumi e dai materiali piacevolmente integrati in facciata. L'ampio spazio living di oltre 45 mq (!), dai volumi sfalsati e con la grande vetrata scorrevole aperta sul giardino privato, qualifica pregevolmente la dimora. Una particolare quinta d'arredo separa la grande cucina dal living (possibilità di realizzare anche una chiusura completa). La cucina prevede poi l'accesso ad un utilissimo vano ad uso lavanderia/stireria di oltre 5 mq. Tutti gli ambienti si contraddistinguono per l'ampio respiro e la luminosità e sono progettati per offrire appagamento e benessere agli occupanti. La zona notte si compone di tre camere da letto spaziose e due confortevoli sale da bagno - entrambe finestrate, una con vasca e una con doccia. Una comoda cantina, l'autorimessa privata - adatta ad automobili di qualunque dimensione - due posti auto esterni esclusivi e circa 400 mq di giardino privato completano la dotazione di questa esclusiva villa unifamiliare. La distribuzione degli spazi interni ed i ricchi materiali di finitura sono ancora completamente personalizzabili, così da poter confezionare un prodotto di alto livello perfettamente tagliato su misura sulla base delle esigenze dell'acquirente. La dotazione tecnologica ed energetica non ha eguali: oltre agli 8.5 kW di fotovoltaico autonomo, con predisposizioni per la ricarica auto, ci sono il riscaldamento autonomo a pavimento e la predisposizione per il raffrescamento mediante idrosplit, la predisposizione per il sistema di ventilazione meccanica controllata (VMC) ed il saliscendi delle tapparelle automatizzati. Euro 630'000.00 + IVA. Immobiliare LA COMMERCIALE Srl, l'agenzia immobiliare più vecchia di Ozzano. Tutti i pagamenti sono garantiti da fideiussione. Della GESTIONE DELL'USATO per un acquisto senza preoccupazioni ce ne occupiamo noi. Rif. COM554
Dati principali
| Riferimento | COM554 |
| Data annuncio | 17/04/2026 |
| Contratto | Vendita |
| Tipologia | Casa indipendente |
| Superficie | 195 m2 |
| Locali | 5 (3 camere da letto, 2 altro), 2 bagni |
| Piano | 1 totali |
| Numero posti auto | 1 |
Caratteristiche
Costi
| Prezzo | 630.000 € |
| Prezzo al m2 | 3.231 €/m2 |
Efficienza energetica
| Anno costruzione | 2026 |
| Classe energetica | A+ |
| Indice di prestazione energetica (IPE) | 18.18 kWh/m2 anno |
Planimetrie
Indirizzo e mappa
Via Ambiente 19, Ozzano dell'Emilia
Calcolo mutuo
Prezzo di vendita:
Anticipo
20,00
Mutuo
80,00
Tasso: -+
Rata: 1.802 al mese
I risultati sono una stima indicativa basata sui dati inseriti e non costituiscono un’offerta finanziaria.
Inserzionista

Immobiliare La Commerciale S.r.l.
Via Emilia, 210, Ozzano dell'Emilia
Mostra Telefono
Mostra Cellulare
Chiama
CONTATTA

