Rustico via Cadelè Bricollo, 68, Serra Riccò
€ 12.000SERRA RICCO' ALTURE (LOC. VALLEREGIA) RUSTICO 12.000
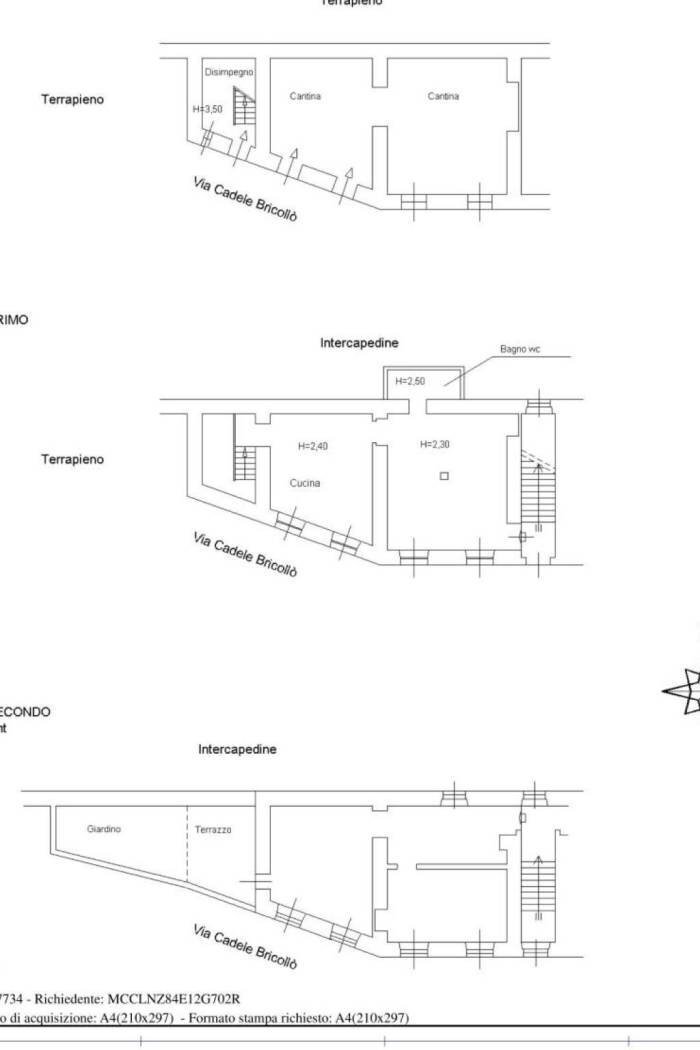
SERRA RICCO' ALTURE (LOCALITA' VALLEREGIA) RUSTICO TRIPIANO 12.000 EURO In Via Cadenè Bricollo, proponiamo rustico a schiera edificato su tre piani di 186 Mq. catastali al piano terreno abbiamo due ampie cantine, al primo piano una cucina un bagno e sala al secondo piano due stanze ed un terrazzo con bellissima vista sulla vallata . Internamente l'immobile è da ristrutturare completamente. l'esposizione è particolarmente suggestiva orientata sulla campagna e i boschi circostanti. Per raggiungere la casa bisogna percorrere una cinquantina di metri a piedi. All'interno dell'inserzione, oltre alle foto, un breve video della casa e della strada da percorrere a piedi. La richiesta per la casa è particolarmente allettante 12.000 euro Per maggiori informazioni telefonare SITIM allo 010 564039, oppure contatto diretto Daniele Brunialti al 3482390069 SITIM in Albaro Via Zara 20 rosso Agenti Immobilari dal 1982 Consulenti Tecnici del tribunale di Genova Mail [email protected]
Dati principali
| Riferimento | ID3029280 |
| Data annuncio | 20/04/2026 |
| Contratto | Vendita |
| Tipologia | Rustico |
| Superficie | 186 m2 |
| Locali | 4 (2 camere da letto, 2 altro), 1 bagno, cucina abitabile |
| Piano | 3 totali |
| Tipo di costruzione | Media |
| Numero di terrazzi | 1 |
| Box auto | Assente |
| Arredamento | Assente |
Caratteristiche
Costi
| Prezzo | 12.000 € |
| Prezzo al m2 | 65 €/m2 |
Efficienza energetica
| Anno costruzione | 1900 |
| Stato | Da ristrutturare |
| Riscaldamento | Assente |
| Classe energetica | G |
| Indice di prestazione energetica (IPE) | 175 kWh/m2 anno |
Planimetrie
Indirizzo e mappa
via Cadelè Bricollo, 68, Serra Riccò
Calcolo mutuo
Prezzo di vendita:
Anticipo
20,00
Mutuo
80,00
Tasso: -+
Rata: 34 al mese
I risultati sono una stima indicativa basata sui dati inseriti e non costituiscono un’offerta finanziaria.
Inserzionista

SITIM di Daniele Brunialti
Via Zara 20 Rosso, Genova
Mostra Telefono
Chiama
CONTATTA

