Quadrilocale via Monte Rondinara, Sestola
€ 189.000APPARTAMENTO SESTOLA - RONCOSCAGLIA
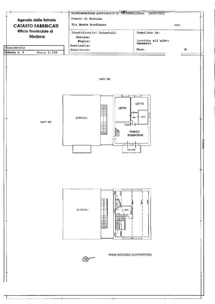
SESTOLA - RONCOSCAGLIA - MONTE RONDINARA in piccolo complesso edificato nel 2010 di sole 4 unità immobiliari lontano dal caos cittadino e immerse in un ambiente naturale che richiama serenità, armonia e una vita a contatto con la natura proponiamo appartamento su due livelli di circa 65 mq. per piano in ottimo stato d'uso luminosissimo e panoramico composto al piano primo da Soggiorno-pranzo con camino, cucina a vista, terrazzo - due camere e bagno e al livello superiore grande loft mansardato totalmente fruibile e bagno - autorimessa di 29 mq. con piccola area cortiliva antistante volendo usabile a posto auto esterno (angolo cottura e camera grande complete di arredo). L'unità è perfetta sia per residenza continuativa che per casa vacanza -Risc. Aut. - Classe D Ipe 107,05 Rif. 231 € 189.000, 00.
Dati principali
| Riferimento | 231 |
| Data annuncio | 20/04/2026 |
| Contratto | Vendita |
| Tipologia | Appartamento |
| Superficie | 113 m2 |
| Locali | 4 (2 camere da letto, 2 altro), 2 bagni, cucina a vista |
| Piano | 2 totali |
| Tipo di costruzione | Media |
| Numero di terrazzi | 1 |
| Box auto | Doppio |
| Numero posti auto | 1 |
| Arredamento | Parziale |
Caratteristiche
Costi
| Prezzo | 189.000 € |
| Prezzo al m2 | 1.673 €/m2 |
| Spese condominiali | € 35,00/mese |
Efficienza energetica
| Anno costruzione | 2010 |
| Stato | Ottimo |
| Riscaldamento | Autonomo |
| Classe energetica | D |
| Indice di prestazione energetica (IPE) | 107.05 kWh/m2 anno |
Planimetrie
Indirizzo e mappa
via Monte Rondinara, Sestola
Calcolo mutuo
Prezzo di vendita:
Anticipo
20,00
Mutuo
80,00
Tasso: -+
Rata: 541 al mese
I risultati sono una stima indicativa basata sui dati inseriti e non costituiscono un’offerta finanziaria.
Inserzionista

Immobiliare Bologna Centro
Galleria del Toro 3, Bologna
Mostra Telefono
Chiama
CONTATTA

