Casa indipendente Strada Ghiaro Superiore, Castellamonte
€ 59.000Casa indipendente in vendita
In posizione tranquilla e soleggiata nel Comune di Castellamonte, casa indipendente con area verde esterna di proprietà.
Il giardino è interamente recintato ed ha una metratura di circa ottocento metri quadri.
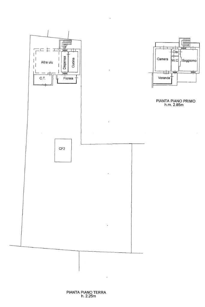
Al piano terreno sono presenti un garage di generosa metratura e una cantina.
Il primo piano ospita la zona abitativa che si compone di due ambienti da poter sfuttare a proprio uso e piacimento, una veranda ed un bagno finestrato dotato di doccia.
A corredo della proprietà, di fronte all'immobile precedentemente descritto, vi è un terratetto composto da un ambiente al piano terreno ed uno al primo con collegamento esterno da poter personalizzare e utilizzare.
Questa soluzione è ideale per coloro che sono alla ricerca di due unità abitative con giardino privato e comode ai principali servizi.
Il giardino è interamente recintato ed ha una metratura di circa ottocento metri quadri.
Al piano terreno sono presenti un garage di generosa metratura e una cantina.
Il primo piano ospita la zona abitativa che si compone di due ambienti da poter sfuttare a proprio uso e piacimento, una veranda ed un bagno finestrato dotato di doccia.
A corredo della proprietà, di fronte all'immobile precedentemente descritto, vi è un terratetto composto da un ambiente al piano terreno ed uno al primo con collegamento esterno da poter personalizzare e utilizzare.
Questa soluzione è ideale per coloro che sono alla ricerca di due unità abitative con giardino privato e comode ai principali servizi.
Dati principali
| Riferimento | 61121680 |
| Data annuncio | 08/10/2025 |
| Contratto | Vendita |
| Tipologia | Casa indipendente |
| Superficie | 115 m2 |
| Locali | 5 (5 altro), 1 bagno |
| Piano | 2 di 2 totali |
| Numero posti auto | 1 |
Costi
| Prezzo | 59.000 € |
| Prezzo al m2 | 513 €/m2 |
Efficienza energetica
| Anno costruzione | 1960 |
| Riscaldamento | Autonomo |
| Tipo Alimentazione Riscaldamento | Altro |
| Classe energetica | G |
| Indice di prestazione energetica (EP GL, NREN) | 396.31 kWh/m3 anno |
Planimetrie
Indirizzo e mappa
Strada Ghiaro Superiore, Castellamonte
Calcolo mutuo
Prezzo di vendita:
Anticipo
20,00
Mutuo
80,00
Tasso: -+
Rata: 169 al mese
I risultati sono una stima indicativa basata sui dati inseriti e non costituiscono un’offerta finanziaria.
Inserzionista
Chiama
CONTATTA

