Appartamento Piazza Dante Alighieri, Gavi
€ 550 al mese5 locali in affitto
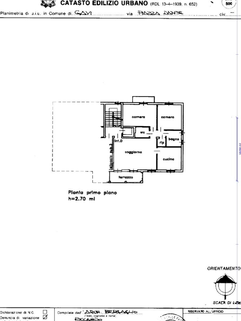
Nella piazza centrale di Gavi, proponiamo in locazione un appartamento di 109 mq circa, situato al piano medio di un edificio costruito e ristrutturato nel 2000. L'immobile offre un ambiente accogliente e funzionale, completamente arredato per garantire il massimo comfort. La disposizione interna comprende cinque locali: due camere da letto di cui una con accesso al balcone , due bagni, una cucina abitabile e un soggiorno ampio con accesso al balcone, ideali per adattarsi alle diverse esigenze abitative. La presenza di due balconi assicura una piacevole luminosità naturale in tutto l'alloggio. Un ulteriore vantaggio è rappresentato dal box auto, facilmente accessibile grazie all'ascensore che collega direttamente ai garage. La posizione centrale dell'appartamento permette di godere appieno delle comodità e dei servizi offerti dalla zona, rendendolo una scelta ideale per chi cerca praticità e comfort in un contesto urbano.
RICHIESTE PERSONE REFERENZIATE E CON DOPPIO REDDITO. ANIMALI NON AMMESSI
RICHIESTE PERSONE REFERENZIATE E CON DOPPIO REDDITO. ANIMALI NON AMMESSI
Dati principali
| Riferimento | 61206426 |
| Data annuncio | 21/04/2026 |
| Contratto | Affitto |
| Tipologia | Appartamento |
| Superficie | 109 m2 |
| Locali | 5 (5 altro), 2 bagni |
| Piano | 2 di 3 totali |
Costi
| Prezzo | 550 € al mese |
| Spese condominiali | € 100,00/mese |
Efficienza energetica
| Anno costruzione | 2000 |
| Riscaldamento | Autonomo |
| Tipo Alimentazione Riscaldamento | Metano |
| Classe energetica | E |
| Indice di prestazione energetica (EP GL, NREN) | 99.44 kWh/m3 anno |
Planimetrie
Indirizzo e mappa
Piazza Dante Alighieri, Gavi
Inserzionista
Chiama
CONTATTA

